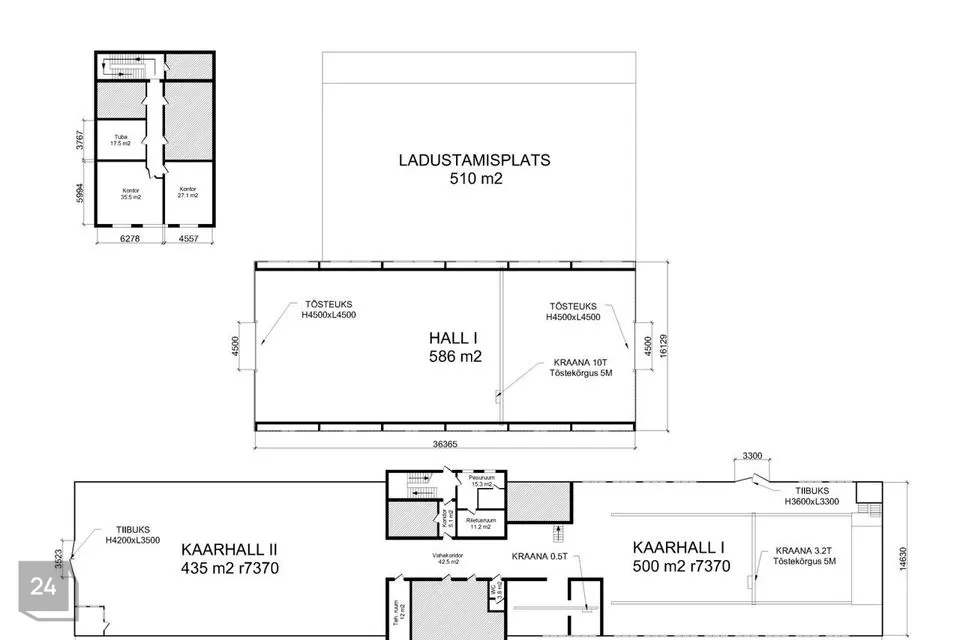
Kaubasadama territooriumil on anda pikaaegsele üürile tootmis ja laokompleks. Kompleks koosneb kahest hoonest ehk kolmest angaarist ja kontoriruumidest. Viilkatusega angaari kõrval paikneb 510 m2 suurune betoneeritud laoplats materjali ja valmistoodangu ladustamiseks. Kogu sadama territoorium on videovalve all ja ümbritsetud piirdeaiaga. Pääs territooriumile on tõkkepuuga Emajõe tänava pealt.
Viilkatusega angaar on 6m laekõrgusega ja betoonpõrandaga. Angaari mõlemast otsast pääseb sisse läbi 4,5x4,5 tõsteukse. Terve hoone pikkuses on 10T telfer kraana, kasuliku töökõrgusega 5m. Angaar on varustatud 160A peakaitsmega. Hoone kütab ära tahke küttega ahi.
Kompleksi teine hoone koosneb kahest kaarhallist, mis on eraldatud kontoriosaga. Kogu tootmispind on betoonpõrandaga. Kaarhall I on varustatud 3,2t telfer kraanaga mille kasulik töökõrgus on 5m ja 0,5T kraanaga mis paikneb tööruumides. Sissepääs on kontorikompleksist ja territooriumi poolsest H3,5 L3,5 laadimisuksest. Kaarhall II sissepääs on kontorikompleksist ja Emajõe tn poolsest H4,2m L3,5m laadimisuksest. Hoone on varustatud 200A peakaitsmega.
Kontoriosa ühendab omavahel koridoriga kahte kaarhalli löövi. Esimesel korrusel asub riietusruum koos pesuruumiga, vannituba ja tehnoruum. Teisel korrusel on kaks kontorit ja ilma akendeta panipaik/tuba. Kontoripinda kütab õhk/vesi kütteseade.
Üürihinnale lisandub 22% käibemaks ja kõrvalkulud
Viilkatusega angaar on 6m laekõrgusega ja betoonpõrandaga. Angaari mõlemast otsast pääseb sisse läbi 4,5x4,5 tõsteukse. Terve hoone pikkuses on 10T telfer kraana, kasuliku töökõrgusega 5m. Angaar on varustatud 160A peakaitsmega. Hoone kütab ära tahke küttega ahi.
Kompleksi teine hoone koosneb kahest kaarhallist, mis on eraldatud kontoriosaga. Kogu tootmispind on betoonpõrandaga. Kaarhall I on varustatud 3,2t telfer kraanaga mille kasulik töökõrgus on 5m ja 0,5T kraanaga mis paikneb tööruumides. Sissepääs on kontorikompleksist ja territooriumi poolsest H3,5 L3,5 laadimisuksest. Kaarhall II sissepääs on kontorikompleksist ja Emajõe tn poolsest H4,2m L3,5m laadimisuksest. Hoone on varustatud 200A peakaitsmega.
Kontoriosa ühendab omavahel koridoriga kahte kaarhalli löövi. Esimesel korrusel asub riietusruum koos pesuruumiga, vannituba ja tehnoruum. Teisel korrusel on kaks kontorit ja ilma akendeta panipaik/tuba. Kontoripinda kütab õhk/vesi kütteseade.
Üürihinnale lisandub 22% käibemaks ja kõrvalkulud
KOSK KINNISVARABÜROO – 15+ aastat usaldusväärset kinnisvarateenust Pärnus, Tallinnas ja üle Eesti!
Eesti Kinnisvaramaaklerite Koja liige
Suhtluskeeled: EST • ENG • FIN • RUS • GER
Kosk Kinnisvara – Pärnu kontor: Pikk 11, Pärnu (De Lange Ärimaja, II korrus)





































