Üürile anda büroopind Pärnu kesklinnas Akadeemia tänaval.
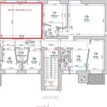
Üüritav pind paikneb III korrusel ja koosneb: 1 suurest ruumist ja on sisustatud, lisaks saab kasutada ühiskasutavat kööki ja 2 Wc-d.
Hoone kesksed tehnosüsteemid (küte, ventilatsioon, elekter, üldvalvesüsteemid) on kaetud eraldi hoolduslepingutega ja nende hoolduskulud lisanduvad proportsionaalselt rendihinnale.Hoonet köetakse keskküttebaasil, ruumides radiaatorid.
Rentniku jaoks on alati kättesaadav hoone haldusjuht, kes tagab haldusküsimuste, pisiremonditööde ja koristustööde jooksva lahendamise.
Rendihinnale lisanduvad rentniku poolt tarbitud kommunaalteenuste kulud ja ühekordne tagatisraha.
Üürihinnale lisandub käibemaks 24%.
Helista ja Küsi lisa!
JAGA MINU KONTAKTI KÕIGILE, KES VAJAVAD KINNISVARANÕU!
- - - - - - - - - -
Telli hindamine UUS MAA Kinnisvarabüroolt https://uusmaa.ee/teenused/hindamine/
UUS MAA KINNISVARABÜROO EKSPERTHINNANGUID AKTSEPTEERIVAD KÕIK FINANTSASUTUSED.
- - - - - - - - - -
Liitu Uus Maa uudiskirjaga ja saa homset kinnisvarainfot juba täna!
https://www.uusmaa.ee/uudiskirjagaliitumine/
- - - - - - - - - -
Kodu aitab osta Swedbank.
Pakkumise saamiseks kasuta koodi UUSMAA ja Sind teenindatakse eelisjärjekorras.
Võtame ühendust 1 tööpäeva jooksul.
Uus Maa kliendile soodsam lepingutasu. Küsi täpsemat infot maaklerilt.
Finantsteenuseid pakub Swedbank AS. Tutvu tingimustega, pea nõu.
Üüritav pind paikneb III korrusel ja koosneb: 1 suurest ruumist ja on sisustatud, lisaks saab kasutada ühiskasutavat kööki ja 2 Wc-d.
Hoone kesksed tehnosüsteemid (küte, ventilatsioon, elekter, üldvalvesüsteemid) on kaetud eraldi hoolduslepingutega ja nende hoolduskulud lisanduvad proportsionaalselt rendihinnale.Hoonet köetakse keskküttebaasil, ruumides radiaatorid.
Rentniku jaoks on alati kättesaadav hoone haldusjuht, kes tagab haldusküsimuste, pisiremonditööde ja koristustööde jooksva lahendamise.
Rendihinnale lisanduvad rentniku poolt tarbitud kommunaalteenuste kulud ja ühekordne tagatisraha.
Üürihinnale lisandub käibemaks 24%.
Helista ja Küsi lisa!
JAGA MINU KONTAKTI KÕIGILE, KES VAJAVAD KINNISVARANÕU!
- - - - - - - - - -
Telli hindamine UUS MAA Kinnisvarabüroolt https://uusmaa.ee/teenused/hindamine/
UUS MAA KINNISVARABÜROO EKSPERTHINNANGUID AKTSEPTEERIVAD KÕIK FINANTSASUTUSED.
- - - - - - - - - -
Liitu Uus Maa uudiskirjaga ja saa homset kinnisvarainfot juba täna!
https://www.uusmaa.ee/uudiskirjagaliitumine/
- - - - - - - - - -
Kodu aitab osta Swedbank.
Pakkumise saamiseks kasuta koodi UUSMAA ja Sind teenindatakse eelisjärjekorras.
Võtame ühendust 1 tööpäeva jooksul.
Uus Maa kliendile soodsam lepingutasu. Küsi täpsemat infot maaklerilt.
Finantsteenuseid pakub Swedbank AS. Tutvu tingimustega, pea nõu.
























