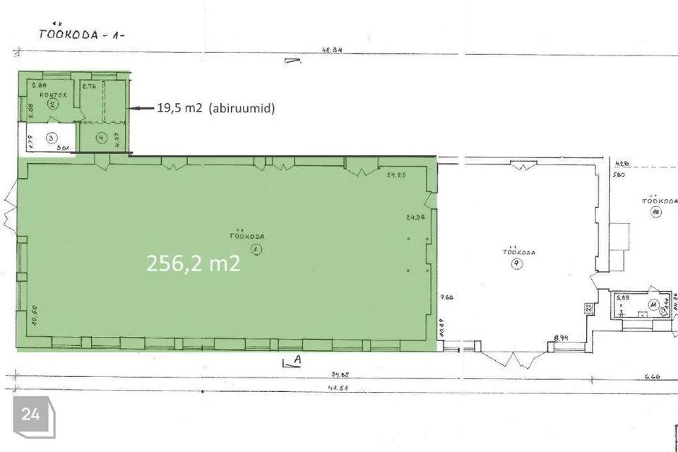
Kuni kaheks aastaks antakse Audrus üürile suuremast tootmis/laopinnast 250m2 suurune osa. Tegemist on sovhoosiaegse töökoja hoonega. Hoonesse sissepääs kõrgete transportustest 3x3,m, Hoone on ühest otsast kokku ehitatud teise kõrvalkinnistul paikneva tööstushoonega. Juurdepääs hea, teenindusala avar. Hoones sees sildkraana tõstevõimsusega 2 t aga see vajab tehnohooldust. Võimalus üürida ka väiksem u 20m2 eraldisissepääsuga kontoriruum. Naabrid asjalikud nt Valgeranna Veinitall. Asukoht on Pärnu äri- tootmisotstarbelise kinnisvara turul keskmisest kõrgemalt hinnatud.
Elekter: 80A peakaitse. Lagi on 4,1m kõrge.
Hind: 625€ kuus
Lepingu sõlmimisel tuleb tasuda kolmekordne tasu ( 1 kuu jooksev, 1 kuu deposiit ja ühekordne maaklertasu)
Jaga minu kontakti kõigile, kes vajavad kinnisvaranõu!
Liitu meie uudiskirjaga ja saa homset kinnisvarainfot juba täna! Vaata https://arikinnisvara.uusmaa.ee
UUS MAA ÄRIKINNISVARA - aastakümned kogemust ja klientide usaldust, läbimõeldud täisteenus ja suurim arv eksperte: vahendamine, hindamine, haldamine, nõustamine ja investeerimine.
JAGA MINU KONTAKTI KÕIGILE, KES VAJAVAD KINNISVARANÕU!
- - - - - - - - - -
Telli hindamine UUS MAA Kinnisvarabüroolt https://uusmaa.ee/teenused/hindamine/
UUS MAA KINNISVARABÜROO EKSPERTHINNANGUID AKTSEPTEERIVAD KÕIK FINANTSASUTUSED.
- - - - - - - - - -
Liitu Uus Maa uudiskirjaga ja saa homset kinnisvarainfot juba täna!
https://www.uusmaa.ee/uudiskirjagaliitumine/
- - - - - - - - - -
Kodu aitab osta Swedbank.
Pakkumise saamiseks kasuta koodi UUSMAA ja Sind teenindatakse eelisjärjekorras.
Võtame ühendust 1 tööpäeva jooksul.
Uus Maa kliendile soodsam lepingutasu. Küsi täpsemat infot maaklerilt.
Finantsteenuseid pakub Swedbank AS. Tutvu tingimustega, pea nõu.
Elekter: 80A peakaitse. Lagi on 4,1m kõrge.
Hind: 625€ kuus
Lepingu sõlmimisel tuleb tasuda kolmekordne tasu ( 1 kuu jooksev, 1 kuu deposiit ja ühekordne maaklertasu)
Jaga minu kontakti kõigile, kes vajavad kinnisvaranõu!
Liitu meie uudiskirjaga ja saa homset kinnisvarainfot juba täna! Vaata https://arikinnisvara.uusmaa.ee
UUS MAA ÄRIKINNISVARA - aastakümned kogemust ja klientide usaldust, läbimõeldud täisteenus ja suurim arv eksperte: vahendamine, hindamine, haldamine, nõustamine ja investeerimine.
JAGA MINU KONTAKTI KÕIGILE, KES VAJAVAD KINNISVARANÕU!
- - - - - - - - - -
Telli hindamine UUS MAA Kinnisvarabüroolt https://uusmaa.ee/teenused/hindamine/
UUS MAA KINNISVARABÜROO EKSPERTHINNANGUID AKTSEPTEERIVAD KÕIK FINANTSASUTUSED.
- - - - - - - - - -
Liitu Uus Maa uudiskirjaga ja saa homset kinnisvarainfot juba täna!
https://www.uusmaa.ee/uudiskirjagaliitumine/
- - - - - - - - - -
Kodu aitab osta Swedbank.
Pakkumise saamiseks kasuta koodi UUSMAA ja Sind teenindatakse eelisjärjekorras.
Võtame ühendust 1 tööpäeva jooksul.
Uus Maa kliendile soodsam lepingutasu. Küsi täpsemat infot maaklerilt.
Finantsteenuseid pakub Swedbank AS. Tutvu tingimustega, pea nõu.




















