Üürile anda Muhu Maja II korrusel avar stuudio / äripind päikselise hoovi suunas äripind.
ÄRIPIND
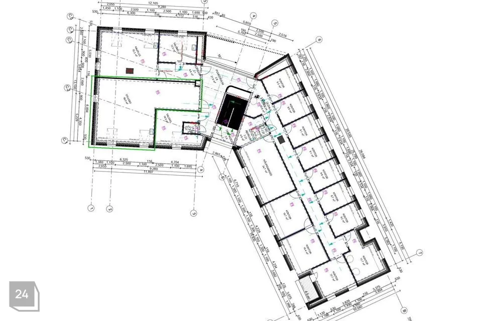
Ruumi suurus on 58m².
Ruumis on vee ja kanalisatsiooni ühendus.
Juurdepääs 24/7.
Plaanil tähistatud roheliste piirjoontega.
SIDETEENUS
Muhu Majas on Telia optiline kaabliühendus.
ÜÜRITINGIMUSED
Lepingu sõlmides tasuda esimese kuu üür ja kahe kuu üüri ulatuses tagatisraha.
Üürisummale lisandub käibemaks ja igakuised kõrvalkulud (aasta keskmine ca 5 eur /m² + km).
MUHU MAJA
Uus moderne ärimaja Muhu saare keskuses sai valmis 2022.a lõpus ning on pärjatud ka Muhu valla Aasta Tegu 2022.a Tänukirjaga ning Saare maakonna aasta investeering 2023 tunnustusega!
Üks parimaid kohti oma äri pidamiseks Muhu saarel!
Hoones on täna püsivalt toimetamas suure terrassiga kohvik, Muhu Vallavalitsus, loomakliinik, juuksur, raamatupidajad, Adrem Kinnisvara Muhu kontor.
HELISTA ja tule tutvuma oma uue äripinnaga!
ÄRIPIND
Ruumi suurus on 58m².
Ruumis on vee ja kanalisatsiooni ühendus.
Juurdepääs 24/7.
Plaanil tähistatud roheliste piirjoontega.
SIDETEENUS
Muhu Majas on Telia optiline kaabliühendus.
ÜÜRITINGIMUSED
Lepingu sõlmides tasuda esimese kuu üür ja kahe kuu üüri ulatuses tagatisraha.
Üürisummale lisandub käibemaks ja igakuised kõrvalkulud (aasta keskmine ca 5 eur /m² + km).
MUHU MAJA
Uus moderne ärimaja Muhu saare keskuses sai valmis 2022.a lõpus ning on pärjatud ka Muhu valla Aasta Tegu 2022.a Tänukirjaga ning Saare maakonna aasta investeering 2023 tunnustusega!
Üks parimaid kohti oma äri pidamiseks Muhu saarel!
Hoones on täna püsivalt toimetamas suure terrassiga kohvik, Muhu Vallavalitsus, loomakliinik, juuksur, raamatupidajad, Adrem Kinnisvara Muhu kontor.
HELISTA ja tule tutvuma oma uue äripinnaga!
































