Üürile anda Muhu Maja II korrusel kahest toast koosnev kontoripind.
ÄRIPIND
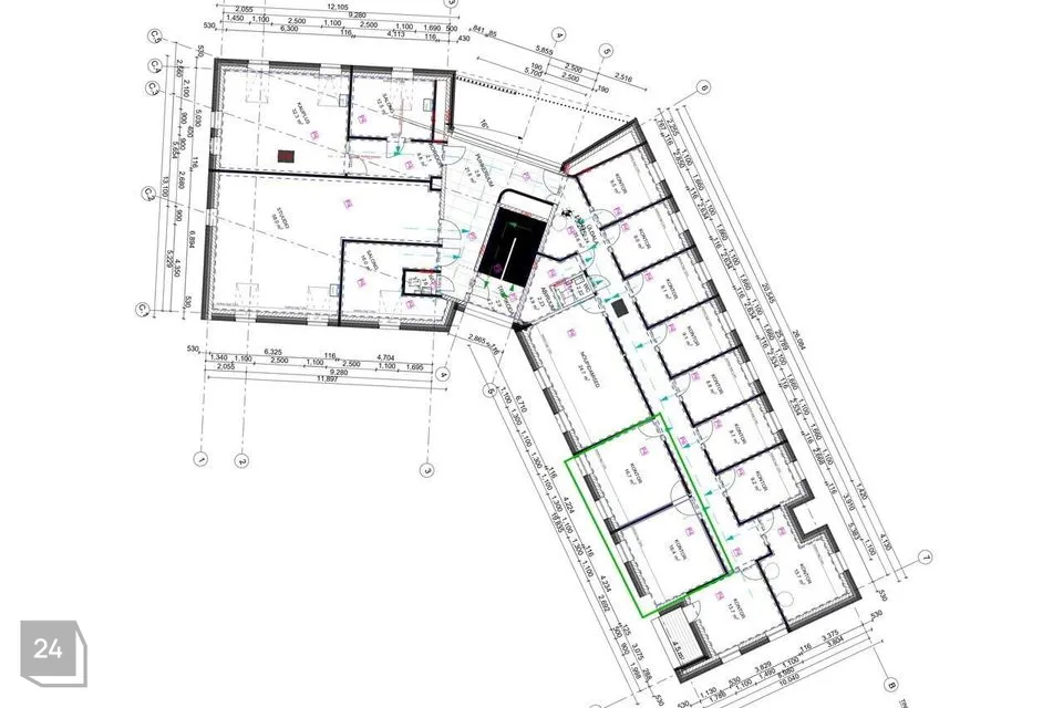
Kontori suurus kokku on 33,1m² ja see koosneb kahest toast (16,7 ja 16,4m²). Kahe toa vahel on uks ning kummalegi on ka eraldi juurdepääs koridorist. Vaated Muhu Maja hoovi suunas.
Juurdepääs 24/7.
Plaanil tähistatud roheliste piirjoontega.
SIDETEENUS
Muhu Majas on Telia optiline kaabliühendus.
ÜÜRITINGIMUSED
Lepingu sõlmides tasuda esimese kuu üür ja kahe kuu üüri ulatuses tagatisraha.
Üürisummale lisandub käibemaks ja igakuised kõrvalkulud (aasta keskmine ca 5 eur /m² + km).
MUHU MAJA
Uus moderne ärimaja Muhu saare keskuses sai valmis 2022.a lõpus ning on pärjatud ka Muhu valla Aasta Tegu 2022.a Tänukirjaga ning Saare maakonna aasta investeering 2023 tunnustusega!
Üks parimaid kohti oma äri pidamiseks Muhu saarel!
Hoones on täna püsivalt toimetamas suure terrassiga kohvik, Muhu Vallavalitsus, loomakliinik, juuksur, raamatupidajad, Adrem Kinnisvara Muhu kontor.
HELISTA ja tule tutvuma oma uue äripinnaga!
ÄRIPIND
Kontori suurus kokku on 33,1m² ja see koosneb kahest toast (16,7 ja 16,4m²). Kahe toa vahel on uks ning kummalegi on ka eraldi juurdepääs koridorist. Vaated Muhu Maja hoovi suunas.
Juurdepääs 24/7.
Plaanil tähistatud roheliste piirjoontega.
SIDETEENUS
Muhu Majas on Telia optiline kaabliühendus.
ÜÜRITINGIMUSED
Lepingu sõlmides tasuda esimese kuu üür ja kahe kuu üüri ulatuses tagatisraha.
Üürisummale lisandub käibemaks ja igakuised kõrvalkulud (aasta keskmine ca 5 eur /m² + km).
MUHU MAJA
Uus moderne ärimaja Muhu saare keskuses sai valmis 2022.a lõpus ning on pärjatud ka Muhu valla Aasta Tegu 2022.a Tänukirjaga ning Saare maakonna aasta investeering 2023 tunnustusega!
Üks parimaid kohti oma äri pidamiseks Muhu saarel!
Hoones on täna püsivalt toimetamas suure terrassiga kohvik, Muhu Vallavalitsus, loomakliinik, juuksur, raamatupidajad, Adrem Kinnisvara Muhu kontor.
HELISTA ja tule tutvuma oma uue äripinnaga!


































