Üürile anda uued laopinnad, mis valmivad 2026. aasta alguses Lohkvas, aadressil Soojuse tee 21, Tartu linna piiril.
Pinna suurus ja hind:
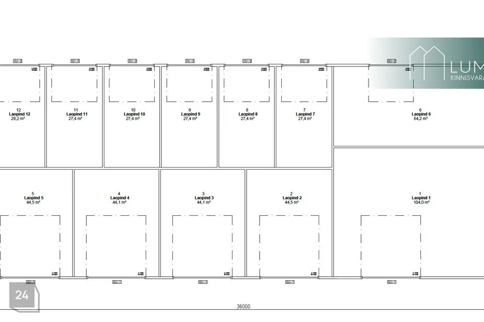
Pindade suurus 27.4 - 104m² (ruumide suurused on võimalik muuta vastavalt üürniku soovile)
Üürihinnad 6.5 – 9,5 €/m² (olenevalt pindade suurusest ja erilahendustest)
Eelis: Võimalus ruume kohandada vastavalt Teie ettevõtte vajadustele!
Hetkel oleme hoone projekteerimisfaasis – see tähendab, et Teil on ainulaadne võimalus kujundada pind täpselt oma vajadustele vastavaks. Sobib hästi logistika-, tootmis- või laotegevuseks.
Asukoht:
Hea ligipääs.
Asub kiiresti arenevas piirkonnas.
Mugav ühendus Tartu linnaga.
Valmimisaeg:
Planeeritud valmimine: 2026. aasta algus
Kui olete otsimas uut, kaasaegset ja paindlikku äripinda, võtke julgelt ühendust! Räägime läbi Teie vajadused ja leiame parima lahenduse.
Lumen Kinnisvarabüroo - tahame, et inimesel oleks kinnisvara müües õigus läbipaistvale teenusele, kiirele teenindusele ja personaalsele lähenemisele tema kõige kallima vara müümisel.
Vaata ka meie teisi pakkumisi kodulehelt Lumen Kinnisvarabüroo
Kinnisvara müük ja klientide nõustamine on meie kirg!
Hoia meie tegemistel silma peal Lumen Kinnisvarabüroo Facebook lehel
Pinna suurus ja hind:
Pindade suurus 27.4 - 104m² (ruumide suurused on võimalik muuta vastavalt üürniku soovile)
Üürihinnad 6.5 – 9,5 €/m² (olenevalt pindade suurusest ja erilahendustest)
Eelis: Võimalus ruume kohandada vastavalt Teie ettevõtte vajadustele!
Hetkel oleme hoone projekteerimisfaasis – see tähendab, et Teil on ainulaadne võimalus kujundada pind täpselt oma vajadustele vastavaks. Sobib hästi logistika-, tootmis- või laotegevuseks.
Asukoht:
Hea ligipääs.
Asub kiiresti arenevas piirkonnas.
Mugav ühendus Tartu linnaga.
Valmimisaeg:
Planeeritud valmimine: 2026. aasta algus
Kui olete otsimas uut, kaasaegset ja paindlikku äripinda, võtke julgelt ühendust! Räägime läbi Teie vajadused ja leiame parima lahenduse.
Lumen Kinnisvarabüroo - tahame, et inimesel oleks kinnisvara müües õigus läbipaistvale teenusele, kiirele teenindusele ja personaalsele lähenemisele tema kõige kallima vara müümisel.
Vaata ka meie teisi pakkumisi kodulehelt Lumen Kinnisvarabüroo
Kinnisvara müük ja klientide nõustamine on meie kirg!
Hoia meie tegemistel silma peal Lumen Kinnisvarabüroo Facebook lehel










