ASUKOHT JA ÜMBRUS
Kinnistu asub Reola tehnopargis Tartu linnapiirist ca 4 km kaugusel Tallinn-Tartu-Võru-Luhamaa tee ääres. Juurdepääsetav suurte masinatega. Lähinaabruses tööstushooned.
JUURDEPÄÄS
Piirkonnas on heas korras kõvakattega teed, juurdepääs on avalikult kasutatavatelt teedelt.
KRUNT
Krunt suurusega ca 1 ha on tootmismaa sihtotstarbega.
Hoonet ümbritseb kõikidelt külgedelt asfaltkatendiga plats.
Hoone taga ca 3000 m² suurune asfalteeritud ala (jagatakse proportsionaalselt vastavalt hoones renditavale pinnale).
Kuju ja reljeef: kinnistu on korrapärase kujuga ristkülik ja reljeefilt tasane.
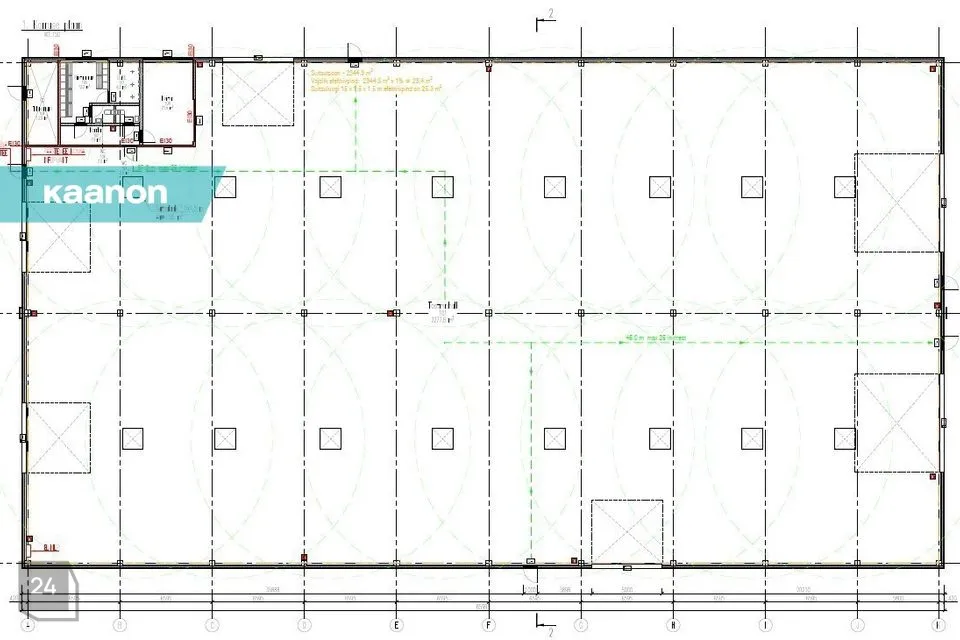
HOONE
Lihtne ristküliku kujuline maht jaotub kontoriplokiks ja tootmis(lao)plokiks. Kontoriplokis on olmeruumid, köök ja kaks WC-d.
Kandvateks konstruktsioonielementideks on raudbetoon postid ja neile toetuvad terasfermid ning kandev profiilplekk. Raudbetoonist postide konsooli külge kinnitub kraanatee talastik. Hoones on kaks telfrit kandevõimega 5 tonni.
Seinu katavad alaosas betoonsokkel ning selle kohal sandwich paneelid. Tootmis(lao)plokis on lagede kõrgus ca 9 m.
AVATÄITED:
Aknad on PVC profiilist kolmekordse pakettklaasiga. Tootmis(lao)plokis on 6 tõstväravat ning olmeplokis spoon- ja metalluksed.
TEHNOVÕRGUD
Veevarustus, kanalisatsioon ja gaas on tsentraalsest võrgust.
Elektrivõrk 220/380 V, peakaitse 3x25 A.
Hinnale lisandub käibemaks.
---
SUPERSOODUSTUSED PANKADELT
Ostes endale kodu Kaanoni vahendusel, pakuvad pangad meie maakleri poolt panka saadetud vihje alusel kodulaenu lepingutasudele mitmeid soodustusi. Uuri lähemalt meie maaklerilt.
Tegu on finantsteenustega. Tutvu tingimustega ja pea nõu asjatundjatega.
---
KAANON KINNISVARABÜROO
30-aastase kogemusega kinnisvarabüroo. Meie kogenud maaklerid aitavad sind kinnisvaraalastes küsimustes.
Meie hindajad koostavad hindamisi pankadele ja teistele krediidiasutustele, kohtutele, finantsaruandluseks, müügihinna määramiseks, varalisteks vaidlusteks ning konsulteerivad vara väärtusega seotud küsimustes.
Kui soovid kinnisvara müüa või hinnata siis võta palun ühendust meie meeskonnaga: www.kaanon.ee/kontakt
Kinnistu asub Reola tehnopargis Tartu linnapiirist ca 4 km kaugusel Tallinn-Tartu-Võru-Luhamaa tee ääres. Juurdepääsetav suurte masinatega. Lähinaabruses tööstushooned.
JUURDEPÄÄS
Piirkonnas on heas korras kõvakattega teed, juurdepääs on avalikult kasutatavatelt teedelt.
KRUNT
Krunt suurusega ca 1 ha on tootmismaa sihtotstarbega.
Hoonet ümbritseb kõikidelt külgedelt asfaltkatendiga plats.
Hoone taga ca 3000 m² suurune asfalteeritud ala (jagatakse proportsionaalselt vastavalt hoones renditavale pinnale).
Kuju ja reljeef: kinnistu on korrapärase kujuga ristkülik ja reljeefilt tasane.
HOONE
Lihtne ristküliku kujuline maht jaotub kontoriplokiks ja tootmis(lao)plokiks. Kontoriplokis on olmeruumid, köök ja kaks WC-d.
Kandvateks konstruktsioonielementideks on raudbetoon postid ja neile toetuvad terasfermid ning kandev profiilplekk. Raudbetoonist postide konsooli külge kinnitub kraanatee talastik. Hoones on kaks telfrit kandevõimega 5 tonni.
Seinu katavad alaosas betoonsokkel ning selle kohal sandwich paneelid. Tootmis(lao)plokis on lagede kõrgus ca 9 m.
AVATÄITED:
Aknad on PVC profiilist kolmekordse pakettklaasiga. Tootmis(lao)plokis on 6 tõstväravat ning olmeplokis spoon- ja metalluksed.
TEHNOVÕRGUD
Veevarustus, kanalisatsioon ja gaas on tsentraalsest võrgust.
Elektrivõrk 220/380 V, peakaitse 3x25 A.
Hinnale lisandub käibemaks.
---
SUPERSOODUSTUSED PANKADELT
Ostes endale kodu Kaanoni vahendusel, pakuvad pangad meie maakleri poolt panka saadetud vihje alusel kodulaenu lepingutasudele mitmeid soodustusi. Uuri lähemalt meie maaklerilt.
Tegu on finantsteenustega. Tutvu tingimustega ja pea nõu asjatundjatega.
---
KAANON KINNISVARABÜROO
30-aastase kogemusega kinnisvarabüroo. Meie kogenud maaklerid aitavad sind kinnisvaraalastes küsimustes.
Meie hindajad koostavad hindamisi pankadele ja teistele krediidiasutustele, kohtutele, finantsaruandluseks, müügihinna määramiseks, varalisteks vaidlusteks ning konsulteerivad vara väärtusega seotud küsimustes.
Kui soovid kinnisvara müüa või hinnata siis võta palun ühendust meie meeskonnaga: www.kaanon.ee/kontakt
























