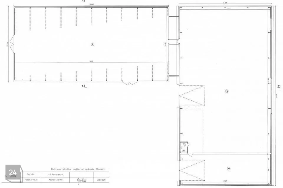
Anda üürile suurepärase asukohaga lao- ja toomisruumid. Kõik tehnosüsteemid (vesi, kanalisatsioon, side, elekter 3x400A, küte) on olemas. Paigaldatud telfrid (5T).
Ruumid paiknevad tänavatasapinnal, mis annab võimaluse hoonetesse soovi korral sisse sõita. Kinnistu asfalteeritud.
Hoone on suurepärase asukohaga Ropka Tööstuse linnaosas, Tähe-Ringtee ja Turu tänava läheduses. Ropka Tööstuse linnaosa on aktiivne äripiirkond, kus on peamiselt kaubandus-, tootmis- ja laohooned ning kuhu on lähiaastatel planeeritud rohkelt arengut uute hoonete ja erinevate ettevõtete näol.
Kilentidele ja kaubaautodele on mugav ja kiire ligipääs Ringtee, Võru ja Tähe tänavate kaudu, sh on ühendus mugav ka Tartu kesklinnaga. Kinnistu vahetus lähedusse jääb linna läbiv suur magistraal (Ringtee), mis algab Tallinna maanteelt ja läheb üle Idaringteeks. Idaringtee ühendab omakorda Ropka Tööstusrajooni Ihaste ja Annelinnaga. Tulevikus ühendatakse Idaringtee Tartu põhjapoolse ümbersõidu ja uue sillaga üle Emajõe Tallinna-Tartu-Võru-Luhamaa maanteega.
Soovi korral võimalik üürida hooneid eraldi!
JAGA MINU KONTAKTI KÕIGILE, KES VAJAVAD KINNISVARANÕU!
- - - - - - - - - -
Telli hindamine UUS MAA Kinnisvarabüroolt https://uusmaa.ee/teenused/hindamine/
UUS MAA KINNISVARABÜROO EKSPERTHINNANGUID AKTSEPTEERIVAD KÕIK FINANTSASUTUSED.
- - - - - - - - - -
Liitu Uus Maa uudiskirjaga ja saa homset kinnisvarainfot juba täna!
https://www.uusmaa.ee/uudiskirjagaliitumine/
- - - - - - - - - -
Kodu aitab osta Swedbank.
Pakkumise saamiseks kasuta koodi UUSMAA ja Sind teenindatakse eelisjärjekorras.
Võtame ühendust 1 tööpäeva jooksul.
Uus Maa kliendile soodsam lepingutasu. Küsi täpsemat infot maaklerilt.
Finantsteenuseid pakub Swedbank AS. Tutvu tingimustega, pea nõu.
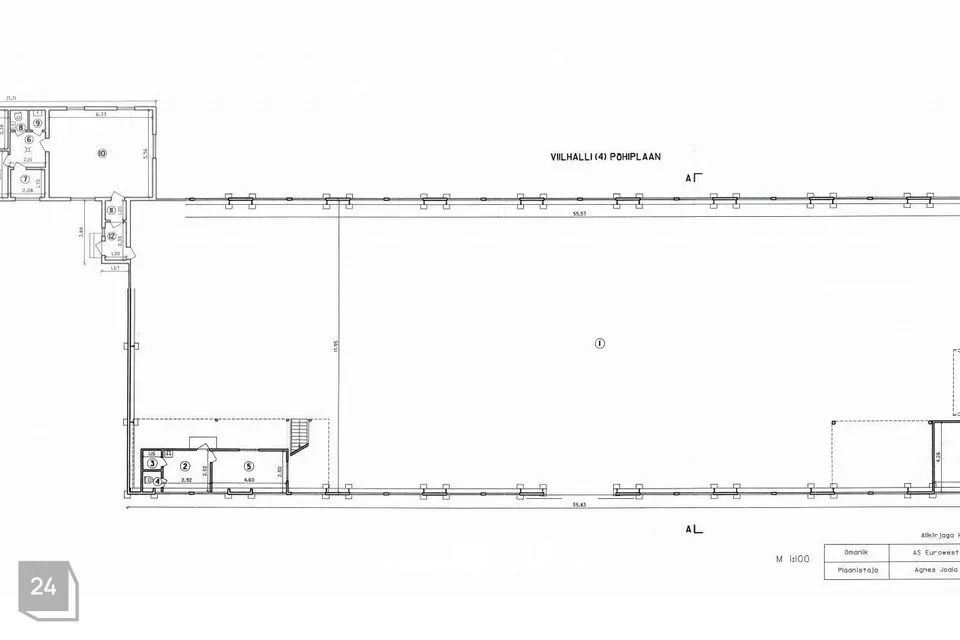
Ruumid paiknevad tänavatasapinnal, mis annab võimaluse hoonetesse soovi korral sisse sõita. Kinnistu asfalteeritud.
Hoone on suurepärase asukohaga Ropka Tööstuse linnaosas, Tähe-Ringtee ja Turu tänava läheduses. Ropka Tööstuse linnaosa on aktiivne äripiirkond, kus on peamiselt kaubandus-, tootmis- ja laohooned ning kuhu on lähiaastatel planeeritud rohkelt arengut uute hoonete ja erinevate ettevõtete näol.
Kilentidele ja kaubaautodele on mugav ja kiire ligipääs Ringtee, Võru ja Tähe tänavate kaudu, sh on ühendus mugav ka Tartu kesklinnaga. Kinnistu vahetus lähedusse jääb linna läbiv suur magistraal (Ringtee), mis algab Tallinna maanteelt ja läheb üle Idaringteeks. Idaringtee ühendab omakorda Ropka Tööstusrajooni Ihaste ja Annelinnaga. Tulevikus ühendatakse Idaringtee Tartu põhjapoolse ümbersõidu ja uue sillaga üle Emajõe Tallinna-Tartu-Võru-Luhamaa maanteega.
Soovi korral võimalik üürida hooneid eraldi!
JAGA MINU KONTAKTI KÕIGILE, KES VAJAVAD KINNISVARANÕU!
- - - - - - - - - -
Telli hindamine UUS MAA Kinnisvarabüroolt https://uusmaa.ee/teenused/hindamine/
UUS MAA KINNISVARABÜROO EKSPERTHINNANGUID AKTSEPTEERIVAD KÕIK FINANTSASUTUSED.
- - - - - - - - - -
Liitu Uus Maa uudiskirjaga ja saa homset kinnisvarainfot juba täna!
https://www.uusmaa.ee/uudiskirjagaliitumine/
- - - - - - - - - -
Kodu aitab osta Swedbank.
Pakkumise saamiseks kasuta koodi UUSMAA ja Sind teenindatakse eelisjärjekorras.
Võtame ühendust 1 tööpäeva jooksul.
Uus Maa kliendile soodsam lepingutasu. Küsi täpsemat infot maaklerilt.
Finantsteenuseid pakub Swedbank AS. Tutvu tingimustega, pea nõu.




























