Linda keskuses korralik stock-office'i tüüpi lao-tootmispind. Vabaneb 1. novembrist 2026.
Üüripinna kirjeldus:
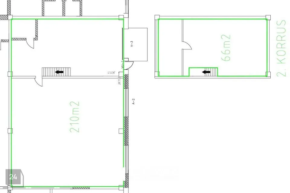
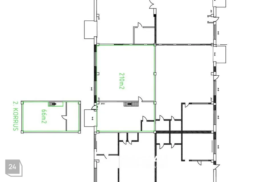
Üldpindala 276 m2. Alumisel tasapinnal (210 m2) on 3 ruumi - endine kauplus-tellimuste vastuvõtt, laoruum ja pesuruum-wc. Ülemisel tasapinnal (66 m2) on kontor ja puhkeruum, mille eest eraldi üüritasu ei pea maksma!
Tõstukse laius 3 m x kõrgus 3,6 m.
Lao lae kõrgus madalamast kohast 4,03 m.
Gaasiküte, elektriküte (õhk-õhk soojuspump), tööstusvool.
KÕRVALKULUDE suurus jääb vahemikku 1,2-1,4 EUR/m2.
Asukoha kirjeldus:
Jõhvi äärelinnas Tallinn-Narva mnt ääres. Juurdepääs on mugav nii maanteelt kui linna poolt.
Populaarne Linda keskus Jõhvis kus naabriteks tuntud tegijad nagu Onninen, Omniva, Farmi Piimatööstus, Esvika Elekter, Ronin, Baltic Bolt jt. Kõrvalkinnistul Linda 15e asub populaarne toitlustuskoht.
Üürihinna soov: 3,70 € /m2 lao ja büroopinna (210 m2) eest, aga teise tasapinna büroo ja puhkenurk (66 m2) on TASUTA!
Hinnas sisaldub ruumide valvesignalisatsiooni tehniline valmidus ja interneti valmidus.
Hinnale lisanduvad kõrvalkulud:
haldus-ja hoolduskulud, prügivedu ja elekter, vesi, gaas.
JAGA MINU KONTAKTI KÕIGILE, KES VAJAVAD KINNISVARANÕU!
- - - - - - - - - -
Telli hindamine UUS MAA Kinnisvarabüroolt https://uusmaa.ee/teenused/hindamine/
UUS MAA KINNISVARABÜROO EKSPERTHINNANGUID AKTSEPTEERIVAD KÕIK FINANTSASUTUSED.
- - - - - - - - - -
Liitu Uus Maa uudiskirjaga ja saa homset kinnisvarainfot juba täna!
https://www.uusmaa.ee/uudiskirjagaliitumine/
- - - - - - - - - -
Kodu aitab osta Swedbank.
Pakkumise saamiseks kasuta koodi UUSMAA ja Sind teenindatakse eelisjärjekorras.
Võtame ühendust 1 tööpäeva jooksul.
Uus Maa kliendile soodsam lepingutasu. Küsi täpsemat infot maaklerilt.
Finantsteenuseid pakub Swedbank AS. Tutvu tingimustega, pea nõu.
Üüripinna kirjeldus:
Üldpindala 276 m2. Alumisel tasapinnal (210 m2) on 3 ruumi - endine kauplus-tellimuste vastuvõtt, laoruum ja pesuruum-wc. Ülemisel tasapinnal (66 m2) on kontor ja puhkeruum, mille eest eraldi üüritasu ei pea maksma!
Tõstukse laius 3 m x kõrgus 3,6 m.
Lao lae kõrgus madalamast kohast 4,03 m.
Gaasiküte, elektriküte (õhk-õhk soojuspump), tööstusvool.
KÕRVALKULUDE suurus jääb vahemikku 1,2-1,4 EUR/m2.
Asukoha kirjeldus:
Jõhvi äärelinnas Tallinn-Narva mnt ääres. Juurdepääs on mugav nii maanteelt kui linna poolt.
Populaarne Linda keskus Jõhvis kus naabriteks tuntud tegijad nagu Onninen, Omniva, Farmi Piimatööstus, Esvika Elekter, Ronin, Baltic Bolt jt. Kõrvalkinnistul Linda 15e asub populaarne toitlustuskoht.
Üürihinna soov: 3,70 € /m2 lao ja büroopinna (210 m2) eest, aga teise tasapinna büroo ja puhkenurk (66 m2) on TASUTA!
Hinnas sisaldub ruumide valvesignalisatsiooni tehniline valmidus ja interneti valmidus.
Hinnale lisanduvad kõrvalkulud:
haldus-ja hoolduskulud, prügivedu ja elekter, vesi, gaas.
JAGA MINU KONTAKTI KÕIGILE, KES VAJAVAD KINNISVARANÕU!
- - - - - - - - - -
Telli hindamine UUS MAA Kinnisvarabüroolt https://uusmaa.ee/teenused/hindamine/
UUS MAA KINNISVARABÜROO EKSPERTHINNANGUID AKTSEPTEERIVAD KÕIK FINANTSASUTUSED.
- - - - - - - - - -
Liitu Uus Maa uudiskirjaga ja saa homset kinnisvarainfot juba täna!
https://www.uusmaa.ee/uudiskirjagaliitumine/
- - - - - - - - - -
Kodu aitab osta Swedbank.
Pakkumise saamiseks kasuta koodi UUSMAA ja Sind teenindatakse eelisjärjekorras.
Võtame ühendust 1 tööpäeva jooksul.
Uus Maa kliendile soodsam lepingutasu. Küsi täpsemat infot maaklerilt.
Finantsteenuseid pakub Swedbank AS. Tutvu tingimustega, pea nõu.













