Üürile anda A-klassi laopind Nehatu Logistikapargis.
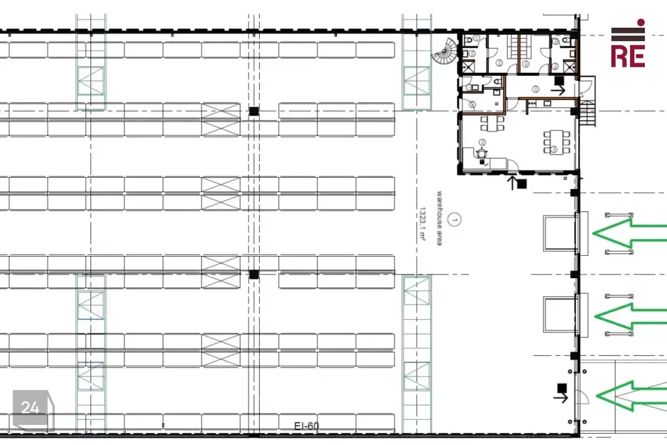
Pakkuda on üüripind suurusega 1426 m². Lao- või tootmispinna suurus on 1335 m² ja laopinna üürihind on 6 eur/m². Pinnale on ehitatud büroo- ja olmeruumide blokk (sh tualetid, riietusruumid ja dušid) suurusega 91 m², mille üürihind on 8,5 eur/m².
- Ruumi mõõtmed - 47 m x 29 m
- Laopinna vabakõrgus on 10 meetrit.
- Laadimine toimub kas kahelt laadimisillalt, lisaks on võimalik kasutada ka sissesõidetavat rampi, mille ukse mõõtmed on 4,5 (k) x 3,5 m (l).
- Tolmuvaba põranda kandevõime 5 t/m² kohta.
- Ruume köetakse ökonoomsete gaasikalorifeeridega.
- Ruumide joonis on leitav pakkumise galeriist. Galeriis toodud fotod on illustratiivsed ja kirjeldavad sarnast pinda samas hoones.
Nehatu Logistikapark asub vahetult Peterburi maantee ääres.
Logistikapargis on kokku rohkem kui 70 000 m² A-klassi äripinda tootmiseks, ladustamiseks kui ka muu äritegevuse osutamiseks.
Nehatu Logistikapark on kergesti ligipääsetav nii ühissõidukite kui ka autotranspordiga.
Kesklinn, Tallinna Lennujaam ja Tallinna Sadam jäävad kuni 13 kilomeetrilise autosõidu kaugusele.
Hoone fassaadile saab paigaldada ka välireklaami.
Ruumidesse ning territooriumile on tagatud 24h ligipääs.
Logistikapargis on pakkuda veel pindasid, nendega tutvumiseks külastage veebilehte: https://www.re.ee/projektid/aripinnad/ladu-ja-tootmine/nehatu-logistikapark/
Üürihinnale lisanduvad soodsad kõrvalkulud ja käibemaks.
Pakkumine on vahendustasuta.
Huvi korral annan meeleldi lisainfot ja korraldan objekti külastuse.
Kui antud objekt ei ole see mida otsite, siis andke oma soovist teada ja leiame just Teile sobiva lahenduse.
RE Kinnisvara AS on tegutsenud 1995. aastast, olles üks vanimaid Eesti kinnisvaraettevõtteid.
Pakume kinnisvaraga seotud täisteenust:
- äri- ja elamispindade maaklerteenus
- kinnisvara hindamine laenu tagatiseks, sh kohtutele, finantsaruandluseks jne.
- äri- ja elukondlike arendusprojektide müügikorraldus
- kinnisvaraturu ja -projektide analüüs ja konsultatsioon
- kinnisvara seadustamine
Teeme koostööd kõigi Eesti pankade ja finantsasutustega. Meie eksperthinnangud on aktsepteeritud kõigi Eestis tegutsevate krediidiasutuste poolt.
Tutvu lähemalt re.ee.
RE Kinnisvara AS – PARIM OSA KINNISVARAST
Helista 66 88 666 või saada e-mail ***@***.ee
https://facebook.com/re.kinnisvara
https://www.instagram.com/rekinnisvara/
https://ee.linkedin.com/company/re-kinnisvara
Pakkuda on üüripind suurusega 1426 m². Lao- või tootmispinna suurus on 1335 m² ja laopinna üürihind on 6 eur/m². Pinnale on ehitatud büroo- ja olmeruumide blokk (sh tualetid, riietusruumid ja dušid) suurusega 91 m², mille üürihind on 8,5 eur/m².
- Ruumi mõõtmed - 47 m x 29 m
- Laopinna vabakõrgus on 10 meetrit.
- Laadimine toimub kas kahelt laadimisillalt, lisaks on võimalik kasutada ka sissesõidetavat rampi, mille ukse mõõtmed on 4,5 (k) x 3,5 m (l).
- Tolmuvaba põranda kandevõime 5 t/m² kohta.
- Ruume köetakse ökonoomsete gaasikalorifeeridega.
- Ruumide joonis on leitav pakkumise galeriist. Galeriis toodud fotod on illustratiivsed ja kirjeldavad sarnast pinda samas hoones.
Nehatu Logistikapark asub vahetult Peterburi maantee ääres.
Logistikapargis on kokku rohkem kui 70 000 m² A-klassi äripinda tootmiseks, ladustamiseks kui ka muu äritegevuse osutamiseks.
Nehatu Logistikapark on kergesti ligipääsetav nii ühissõidukite kui ka autotranspordiga.
Kesklinn, Tallinna Lennujaam ja Tallinna Sadam jäävad kuni 13 kilomeetrilise autosõidu kaugusele.
Hoone fassaadile saab paigaldada ka välireklaami.
Ruumidesse ning territooriumile on tagatud 24h ligipääs.
Logistikapargis on pakkuda veel pindasid, nendega tutvumiseks külastage veebilehte: https://www.re.ee/projektid/aripinnad/ladu-ja-tootmine/nehatu-logistikapark/
Üürihinnale lisanduvad soodsad kõrvalkulud ja käibemaks.
Pakkumine on vahendustasuta.
Huvi korral annan meeleldi lisainfot ja korraldan objekti külastuse.
Kui antud objekt ei ole see mida otsite, siis andke oma soovist teada ja leiame just Teile sobiva lahenduse.
RE Kinnisvara AS on tegutsenud 1995. aastast, olles üks vanimaid Eesti kinnisvaraettevõtteid.
Pakume kinnisvaraga seotud täisteenust:
- äri- ja elamispindade maaklerteenus
- kinnisvara hindamine laenu tagatiseks, sh kohtutele, finantsaruandluseks jne.
- äri- ja elukondlike arendusprojektide müügikorraldus
- kinnisvaraturu ja -projektide analüüs ja konsultatsioon
- kinnisvara seadustamine
Teeme koostööd kõigi Eesti pankade ja finantsasutustega. Meie eksperthinnangud on aktsepteeritud kõigi Eestis tegutsevate krediidiasutuste poolt.
Tutvu lähemalt re.ee.
RE Kinnisvara AS – PARIM OSA KINNISVARAST
Helista 66 88 666 või saada e-mail ***@***.ee
https://facebook.com/re.kinnisvara
https://www.instagram.com/rekinnisvara/
https://ee.linkedin.com/company/re-kinnisvara























