Ligi 13 000 m2 suurune Tabasalu Keskus koondab ühe katuse alla erinevad teenused ja kauplused. Lisaks büroo- ja teeninduspindadele on uues kolmekorruselises keskuses erinevad toitlustuskohad ja väiketootjatele suunatud väliturg.
RUUM
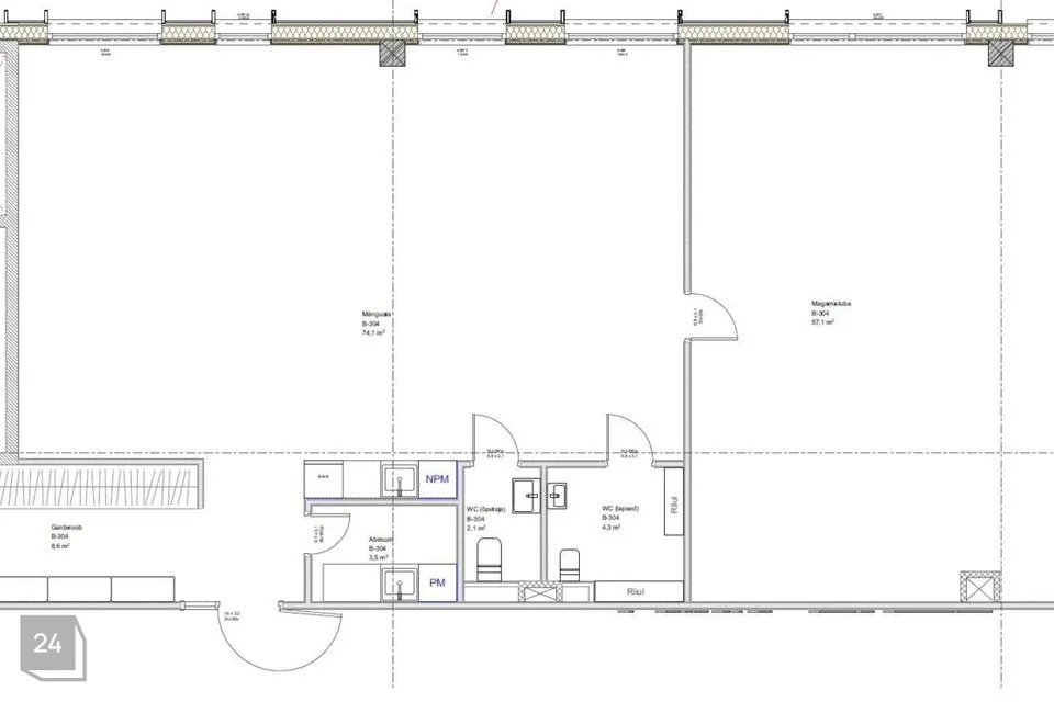
Avar ruum kalasaba parketi ning suurte valgusküllaste akendega paikneb maja põhjapoolsel küljel, kust on vaade metsa ning Klooga maantee poole. Ruumi suurus on 57,1 m2. Kaasaegne ventilatsioonisüsteem tagab suurepärase õhuringluse ning läbimõeldud valgustuse paiknemine meeldiva töökeskkonna. Ruumi saab kasutada nii büroona kui ka teeninduspinnana. Ruumi juurde on võimalik väiksema ümberehituse tulemusel lisada privaatne tualettruum.
ASUKOHT
Tabasalu Keskus asub aadressil Kallaste tn. 7. Paiknemine Klooga maantee ääres tagab mugava ligipääsetavuse ja väga hea nähtavuse. Tegemist on Tabasalu ja ümbruskonna peamise tõmbekeskusega, koondades kõik vajaliku alates toidupoest ja söögikohtadest kuni jõusaali ning iluteenusteni, mugavalt ühte kohta. Klooga maanteed läbib ööpäevas üle 17 000 sõiduki (2024. aasta andmed)
Tabasalu on kiiresti arenev Harku valla keskus, mis muutumas aina populaarsemaks elamupiirkonnaks. Täna elab Tabasalus ligi 4,000 ja Harku Vallas ligi 19,000 inimest. Elanike arv on pidevas kasvutrendis, mistõttu on piirkonnas ka mitmeid uusarendusi, mis keskuse külastatavust ajas suurendavad ja toovad juurde potentsiaalseid uusi kliente.
KONTSEPTSIOON
Tabasalu Keskuse 1. korrusel asub ankurrentnik Selver pea 2,000 m2 suuruse toidupoega. Selver on piirkonna üks suuremaid toidupoode. Lisaks leiab 1. korruselt Benu apteegi ja Flores lillepoe.
2. korrusel on erinevad kaubandus-, teenindus- ja toitlustuspinnad. Samuti leiab 2. korruselt 24/7 fitness jõusaali. Kahe hoonemahu vahel on suur terrassiala.
Keskuse 3. korrusel on privaatsemad teenindus- ja büroopinnad. Vabade rendipindade täpsed suurused, ruumilahendused ning siseviimistluse kujundame üürnike vajadustest lähtuvalt. Pakutav ruum on juba täielikult viimistletud.
PARKIMINE
Parkimine on lahendatud nii maapealsete parkimiskohtadega kui ka maa-aluse parklaga. Ruumikas maa-aluses parklas on keskuse üürnikel võimalik rentida vajalikus mahus parkimiskohtasid. Maa-alusest parklast pääseb mugavalt liftiga keskuse 2. ja 3. korrusele. Lisaks leiab maa-alusest parklast ka Taskulaod.
Tabasalu keskuse arendaja on Reterra Estate OÜ.
Kui tekkis huvi või vajad teistsugust lahendust, võta minuga julgelt ühendust - leiame just sinu vajadustele sobiva äripinna!
RUUM
Avar ruum kalasaba parketi ning suurte valgusküllaste akendega paikneb maja põhjapoolsel küljel, kust on vaade metsa ning Klooga maantee poole. Ruumi suurus on 57,1 m2. Kaasaegne ventilatsioonisüsteem tagab suurepärase õhuringluse ning läbimõeldud valgustuse paiknemine meeldiva töökeskkonna. Ruumi saab kasutada nii büroona kui ka teeninduspinnana. Ruumi juurde on võimalik väiksema ümberehituse tulemusel lisada privaatne tualettruum.
ASUKOHT
Tabasalu Keskus asub aadressil Kallaste tn. 7. Paiknemine Klooga maantee ääres tagab mugava ligipääsetavuse ja väga hea nähtavuse. Tegemist on Tabasalu ja ümbruskonna peamise tõmbekeskusega, koondades kõik vajaliku alates toidupoest ja söögikohtadest kuni jõusaali ning iluteenusteni, mugavalt ühte kohta. Klooga maanteed läbib ööpäevas üle 17 000 sõiduki (2024. aasta andmed)
Tabasalu on kiiresti arenev Harku valla keskus, mis muutumas aina populaarsemaks elamupiirkonnaks. Täna elab Tabasalus ligi 4,000 ja Harku Vallas ligi 19,000 inimest. Elanike arv on pidevas kasvutrendis, mistõttu on piirkonnas ka mitmeid uusarendusi, mis keskuse külastatavust ajas suurendavad ja toovad juurde potentsiaalseid uusi kliente.
KONTSEPTSIOON
Tabasalu Keskuse 1. korrusel asub ankurrentnik Selver pea 2,000 m2 suuruse toidupoega. Selver on piirkonna üks suuremaid toidupoode. Lisaks leiab 1. korruselt Benu apteegi ja Flores lillepoe.
2. korrusel on erinevad kaubandus-, teenindus- ja toitlustuspinnad. Samuti leiab 2. korruselt 24/7 fitness jõusaali. Kahe hoonemahu vahel on suur terrassiala.
Keskuse 3. korrusel on privaatsemad teenindus- ja büroopinnad. Vabade rendipindade täpsed suurused, ruumilahendused ning siseviimistluse kujundame üürnike vajadustest lähtuvalt. Pakutav ruum on juba täielikult viimistletud.
PARKIMINE
Parkimine on lahendatud nii maapealsete parkimiskohtadega kui ka maa-aluse parklaga. Ruumikas maa-aluses parklas on keskuse üürnikel võimalik rentida vajalikus mahus parkimiskohtasid. Maa-alusest parklast pääseb mugavalt liftiga keskuse 2. ja 3. korrusele. Lisaks leiab maa-alusest parklast ka Taskulaod.
Tabasalu keskuse arendaja on Reterra Estate OÜ.
Kui tekkis huvi või vajad teistsugust lahendust, võta minuga julgelt ühendust - leiame just sinu vajadustele sobiva äripinna!























