Üürile anda bürooruumid Rocca Ärimajas aadressil Paldiski mnt 96.
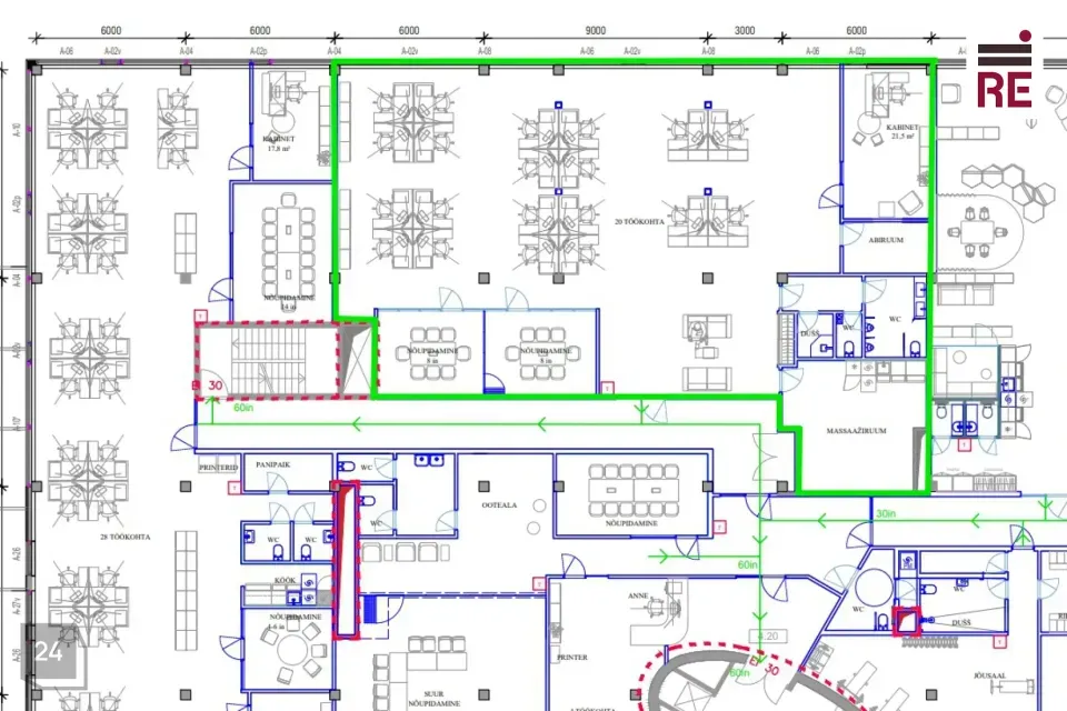
Pakutav büroo asub hoone II korrusel ja selle akendest avanevad vaated Kopli lahele. Ruumide pindala on 322m2. Ruumides on avatud tööala ca 20-24 töökoha mahtuvusega, lisaks üks kabinet ja kaks nõupidamisruumi, mida on võimalik liigutatava vaheseinaga ühendada. Ruumides on kööginurga valmidus. Bürooruumide põrandatel on vaipkate.
Ruumide plaan on leitav pildigaleriist.
Pinnaga kaasneb ühiskasutuses katusealusega väliterrass hoone 3.korrusel.
Tegemist on 3-korruselise hoonega, kus meeldiva sisekliima tagavad efektiivne sundventilatsioon ja automaatsed kliimaseadmed.
Hoone esimestel korrustel asuvad kaubanduspinnad ning teisel ja kolmandal korrustel bürood. Parkimine on korraldatud hoone aluses ja selle ümber asuvas parklas, kus on piisavalt kohti, kuutasu 35Eur + KM.
Miks valida Rocca Ärimaja?
Esinduslik asukoht ja ligipääs:
* hoone paikneb Paldiski maantee ääres, pakkudes suurepärast nähtavust ja mugavat ligipääsu nii auto, jalgratta kui ka ühistranspordiga. Kiire ühendus Tallinna kesklinnaga ja lähedal asuv kergliiklustee muudavad liikumise eriti mugavaks. Klientidele ja töötajatele on tagatud rohkelt parkimiskohti.
Kaasaegsed ja paindlikud lahendused:
* hoone II ja III korrusel asuvad büroopinnad on muudetavad vastavalt üürniku vajadustele. Bürood on võimalik kujundada alates 200–300 m² kuni tervet korrust hõlmava 2400 m² suuruseks terviklikuks lahenduseks.
Mugav ja inspireeriv töökeskkond:
* 2020.a. täielikult renoveeritud Rocca Ärimaja on loodud kaasaegset tööinimest silmas pidades. Moodne sisekujundus, rohke loomulik päevavalgus ja merevaated loovad inspireeriva atmosfääri. Töökeskkonna mugavuse tagavad kaasaegsed sisekliimasüsteemid ja lift.
Lisaväärtus iga päev:
* vaid mõnesaja meetri kaugusel asub Rocca al Mare kaubanduskeskus, pakkudes laialdasi kohtumis- ja lõunastamisvõimalusi. Lisaks on büroohoones olemas ühiskasutatav terrass, kus on mõnus puhkepausidel aega veeta ja päikest nautida.
Professionaalne tugi:
* üürnike igapäevase mugavuse eest hoolitseb kogenud haldusmeeskond.
Üürihinnale lisanduvad kõrvalkulud ja käibemaks!
Huvi korral annan meeleldi lisainfot ja korraldan objekti külastuse.
Hoones on pakkuda veel ka teisi erineva suurusega äripindasid. Tutvuge pakkumistega:
197 m2, 2. korrus - https://re.ee/object/75694
84.3 m2, 3. korrus - https://re.ee/object/75696
642 m2, 2. korrus - https://re.ee/object/75701
2499 m2, kogu 2. korrus - https://re.ee/object/75702
RE Kinnisvara AS on tegutsenud 1995. aastast, olles üks vanimaid Eesti kinnisvaraettevõtteid.
Pakume kinnisvaraga seotud täisteenust:
- äri- ja elamispindade maaklerteenus
- kinnisvara hindamine laenu tagatiseks, sh kohtutele, finantsaruandluseks jne.
- äri- ja elukondlike arendusprojektide müügikorraldus
- kinnisvaraturu ja -projektide analüüs ja konsultatsioon
- kinnisvara seadustamine
Teeme koostööd kõigi Eesti pankade ja finantsasutustega. Meie eksperthinnangud on aktsepteeritud kõigi Eestis tegutsevate krediidiasutuste poolt.
Tutvu lähemalt re.ee.
RE Kinnisvara AS – PARIM OSA KINNISVARAST
Helista 66 88 666 või saada e-mail ***@***.ee
https://facebook.com/re.kinnisvara
https://www.instagram.com/rekinnisvara/
https://ee.linkedin.com/company/re-kinnisvara
Pakutav büroo asub hoone II korrusel ja selle akendest avanevad vaated Kopli lahele. Ruumide pindala on 322m2. Ruumides on avatud tööala ca 20-24 töökoha mahtuvusega, lisaks üks kabinet ja kaks nõupidamisruumi, mida on võimalik liigutatava vaheseinaga ühendada. Ruumides on kööginurga valmidus. Bürooruumide põrandatel on vaipkate.
Ruumide plaan on leitav pildigaleriist.
Pinnaga kaasneb ühiskasutuses katusealusega väliterrass hoone 3.korrusel.
Tegemist on 3-korruselise hoonega, kus meeldiva sisekliima tagavad efektiivne sundventilatsioon ja automaatsed kliimaseadmed.
Hoone esimestel korrustel asuvad kaubanduspinnad ning teisel ja kolmandal korrustel bürood. Parkimine on korraldatud hoone aluses ja selle ümber asuvas parklas, kus on piisavalt kohti, kuutasu 35Eur + KM.
Miks valida Rocca Ärimaja?
Esinduslik asukoht ja ligipääs:
* hoone paikneb Paldiski maantee ääres, pakkudes suurepärast nähtavust ja mugavat ligipääsu nii auto, jalgratta kui ka ühistranspordiga. Kiire ühendus Tallinna kesklinnaga ja lähedal asuv kergliiklustee muudavad liikumise eriti mugavaks. Klientidele ja töötajatele on tagatud rohkelt parkimiskohti.
Kaasaegsed ja paindlikud lahendused:
* hoone II ja III korrusel asuvad büroopinnad on muudetavad vastavalt üürniku vajadustele. Bürood on võimalik kujundada alates 200–300 m² kuni tervet korrust hõlmava 2400 m² suuruseks terviklikuks lahenduseks.
Mugav ja inspireeriv töökeskkond:
* 2020.a. täielikult renoveeritud Rocca Ärimaja on loodud kaasaegset tööinimest silmas pidades. Moodne sisekujundus, rohke loomulik päevavalgus ja merevaated loovad inspireeriva atmosfääri. Töökeskkonna mugavuse tagavad kaasaegsed sisekliimasüsteemid ja lift.
Lisaväärtus iga päev:
* vaid mõnesaja meetri kaugusel asub Rocca al Mare kaubanduskeskus, pakkudes laialdasi kohtumis- ja lõunastamisvõimalusi. Lisaks on büroohoones olemas ühiskasutatav terrass, kus on mõnus puhkepausidel aega veeta ja päikest nautida.
Professionaalne tugi:
* üürnike igapäevase mugavuse eest hoolitseb kogenud haldusmeeskond.
Üürihinnale lisanduvad kõrvalkulud ja käibemaks!
Huvi korral annan meeleldi lisainfot ja korraldan objekti külastuse.
Hoones on pakkuda veel ka teisi erineva suurusega äripindasid. Tutvuge pakkumistega:
197 m2, 2. korrus - https://re.ee/object/75694
84.3 m2, 3. korrus - https://re.ee/object/75696
642 m2, 2. korrus - https://re.ee/object/75701
2499 m2, kogu 2. korrus - https://re.ee/object/75702
RE Kinnisvara AS on tegutsenud 1995. aastast, olles üks vanimaid Eesti kinnisvaraettevõtteid.
Pakume kinnisvaraga seotud täisteenust:
- äri- ja elamispindade maaklerteenus
- kinnisvara hindamine laenu tagatiseks, sh kohtutele, finantsaruandluseks jne.
- äri- ja elukondlike arendusprojektide müügikorraldus
- kinnisvaraturu ja -projektide analüüs ja konsultatsioon
- kinnisvara seadustamine
Teeme koostööd kõigi Eesti pankade ja finantsasutustega. Meie eksperthinnangud on aktsepteeritud kõigi Eestis tegutsevate krediidiasutuste poolt.
Tutvu lähemalt re.ee.
RE Kinnisvara AS – PARIM OSA KINNISVARAST
Helista 66 88 666 või saada e-mail ***@***.ee
https://facebook.com/re.kinnisvara
https://www.instagram.com/rekinnisvara/
https://ee.linkedin.com/company/re-kinnisvara





















