Anda üürile laopind koos büroopinnaga aadressil Laki 28, mis asub Kadaka tee ja Tammsaare tee vahelises aktiivses ärikvartalis.
Hea ligipääs veoautodega ning kauba laadimine estakaadilt, kus on olemas ka kaldtee. Parkimisvõimalused kaameratega valvatavas turvalises hoovis. Üüripind on valvestatav.
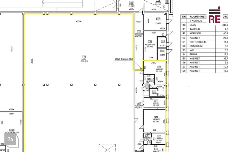
* Laoruumi pindala on 996 m2
* Laoruumi laekõrgus talani on 4,7 m, ülejäänud kõrgus ca 6 m.
* Bürooruumide hulka kuuluvad 5 kabinetti, abiruum, pesuruum ja tualett).
* Laoruum on kütteta, bürooruumides on elektriküte.
* Pinda on võimalik üürida ka väiksemas mahus, kas 430 m2 või 566 m2.
Ärihoonel on hea logistiline asukoht ning läheduses asuvad mitmed toitlustuskohad ja kaubanduskeskused. Hoonele on ligipääs nii Kadaka teelt kui ka Laki tänavalt.
Hinnale lisanduvad soodsad kõrvalkulud ja käibemaks. Vahendustasu ei lisandu.
Huvi korral annan meeleldi lisainfot ning korraldan objekti külastuse.
RE Kinnisvara AS on tegutsenud 1995. aastast, olles üks vanimaid Eesti kinnisvaraettevõtteid.
Pakume kinnisvaraga seotud täisteenust:
- äri- ja elamispindade maaklerteenus
- kinnisvara hindamine laenu tagatiseks, sh kohtutele, finantsaruandluseks jne.
- äri- ja elukondlike arendusprojektide müügikorraldus
- kinnisvaraturu ja -projektide analüüs ja konsultatsioon
- kinnisvara seadustamine
Teeme koostööd kõigi Eesti pankade ja finantsasutustega. Meie eksperthinnangud on aktsepteeritud kõigi Eestis tegutsevate krediidiasutuste poolt.
Tutvu lähemalt re.ee.
RE Kinnisvara AS – PARIM OSA KINNISVARAST
Helista 66 88 666 või saada e-mail ***@***.ee
https://facebook.com/re.kinnisvara
https://www.instagram.com/rekinnisvara/
https://ee.linkedin.com/company/re-kinnisvara
Hea ligipääs veoautodega ning kauba laadimine estakaadilt, kus on olemas ka kaldtee. Parkimisvõimalused kaameratega valvatavas turvalises hoovis. Üüripind on valvestatav.
* Laoruumi pindala on 996 m2
* Laoruumi laekõrgus talani on 4,7 m, ülejäänud kõrgus ca 6 m.
* Bürooruumide hulka kuuluvad 5 kabinetti, abiruum, pesuruum ja tualett).
* Laoruum on kütteta, bürooruumides on elektriküte.
* Pinda on võimalik üürida ka väiksemas mahus, kas 430 m2 või 566 m2.
Ärihoonel on hea logistiline asukoht ning läheduses asuvad mitmed toitlustuskohad ja kaubanduskeskused. Hoonele on ligipääs nii Kadaka teelt kui ka Laki tänavalt.
Hinnale lisanduvad soodsad kõrvalkulud ja käibemaks. Vahendustasu ei lisandu.
Huvi korral annan meeleldi lisainfot ning korraldan objekti külastuse.
RE Kinnisvara AS on tegutsenud 1995. aastast, olles üks vanimaid Eesti kinnisvaraettevõtteid.
Pakume kinnisvaraga seotud täisteenust:
- äri- ja elamispindade maaklerteenus
- kinnisvara hindamine laenu tagatiseks, sh kohtutele, finantsaruandluseks jne.
- äri- ja elukondlike arendusprojektide müügikorraldus
- kinnisvaraturu ja -projektide analüüs ja konsultatsioon
- kinnisvara seadustamine
Teeme koostööd kõigi Eesti pankade ja finantsasutustega. Meie eksperthinnangud on aktsepteeritud kõigi Eestis tegutsevate krediidiasutuste poolt.
Tutvu lähemalt re.ee.
RE Kinnisvara AS – PARIM OSA KINNISVARAST
Helista 66 88 666 või saada e-mail ***@***.ee
https://facebook.com/re.kinnisvara
https://www.instagram.com/rekinnisvara/
https://ee.linkedin.com/company/re-kinnisvara














