Müüa suur 1,4 ha suurune 100% tootmismaa kinnistu, millel multifunktsionaalne tootmis- ja tööstuskompleks.
Kinnistule on tagatud tohutu elektrivõimsus!
Kokku 640 amprit, 3 faasi.
Väga hea juurdepääs asfalteeritud Iva teelt kui ka Farmi teelt.
Kompleks asub Viljandi linna vahetusläheduses Viiratsi aleviku serval Mäeltküla tööstuspargis.
KEHTIV DETAILPLANEERING
Lubatud ehitusalune pind - 7000m2
Hetkel olemasolevate hoonete ehitusalune pind kokku ca 4000m2.
Lubatud hoonete arv - 8
Hetkel olemasolevaid hooneid kokku 4
HOONESTUS
1) KAKS UUT SANDWICH HOONET - külmkuivatuseks ja kiirkülmutuseks, jahutuseks sobilike seadmete ja ruumidega
2) H-KUJULISE PLANEERINGUGA TOOTMISE-JA LAOHOONE
3) VARJUALUNE
***************************************************************
*****SANDWICH HOONED*****
Mõlemad hooned on kahekaldelise viilkatusega (sandwich-paneelidest) kolme tõstvärava, sandwich-paneelidest seinte ning betoonpõrandatega ehitised.
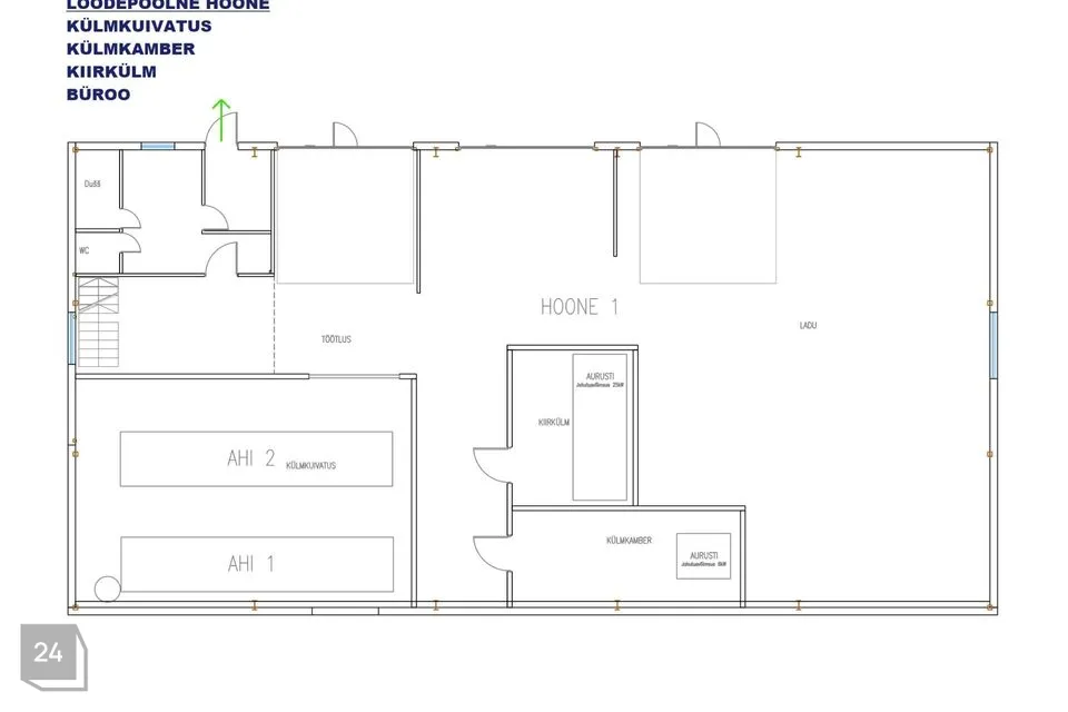
Loodepoolse kuivatihoone netopind on 493,5 m².
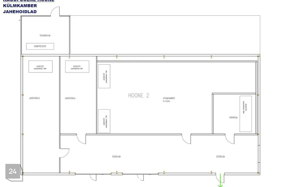
Kagupoolse laohoone netopind on 521,7 m².
Loodepoolse kuivatihoone ja kagupoolse laohoone vaheline maa-ala on betoneeritud.
See ala ja kagupoolse laohoone varjualuse alune ala kokku on ~ 400 m².
Varjualune ulatub hoonest eemale ca 5m.
Kummalgi hoonel on kolm käiguuksega tõstväravat mõõtudega 4,5x4,5 m ja uks kõrgusega 2,1 m, laiusega 1,1 m.
Hoonete kasutusotstarve on toiduainetetööstuse hoone ja toiduainete laohoone.
Loodepoolses külmkuivatushoones:
KÜLMKUIVATUSSEADE Sublimator 1000-90 EKS-R, 89,6m² toote kandikute ala, 1000kg toorme jahutusvõimsus
AURUSTI SÜGAVKÜLMKAMBRIS (35m²), jahutusvõimsus 6kW, -18...-20°C
AURUSTI KIIRKÜLMUTIS, JAHUTUSVÕIMSUS 25Kw, -32°C (tootlikkus: 2tonni marju, temp sisse 20/välja -20°C, külmutamise aeg 12h)
Kagupoolses laohoones:
erinevad AURUSTID jahekambrites, kiirkülmutuskambris ning sügavkülmkambris.
Lisaks külmutussüsteemidele/seadmetele on hooned varustatud SOOJUSTAGASTUS/ SULATUSSÜSTEEMIGA (sügavkülmkambrite ja kiirkülmutite aurustite jääst sulatamiseks kasutada)
Säilituskambrites kohtventilatsioonisüsteem.
Nendes kahes hoones alusta või laienda oma toiduainete äri kaasaegsel moel täiesti uute Saksa kvaliteediga seadmetega!
Sandwich hoonetes on tsentraalne vee- ja kanalisatsiooniühendus, tagatud 480amprine elektrivõimsus.
Valguskaabel.
Külmaseadmete töötamisel tekkiva jääksoojus kasutatakse ära hoonete kütmiseks.
Üldventilatsioon välja ehitamata.
*****H-KUJULISE PLANEERINGUGA TOOTMISE-JA LAOHOONE*****
Hoone netopind on 2360,6 m².
Kivikonstruktsioonist viilkatuse ning H-kujulise planeeringuga tootmiskompleks on ühekorruseline ja osalise sokli,-keldrikorrusega.
Hoone on kasutusel tootmis-, laohoonena. Osaliselt on kasutusel remonditöökojana, sepikojana ning toiduainetetööstusena ning selle tarbeks on ka tegevusluba väljastatud.
Osaliselt on ruumid välja üüritud.
Hoones on mitu erineva kasutusega tsooni:
- suuremad toiduainetööstuse ruumid, kus on lisaks tootmis-, pakendamis-, säilitus- ning abiruumid
- kontoriruumid, riietusruumid puhkeruumid ja sanitaarruumid
- hoone idatiivas asuvad tootmisruumid
- läänetiivas metallitööstusruumid, garaaž, laoruumid
Keldri-soklikorrusel asub kõrge garaažiruum, garaaž-ladu, katlaruum, ladu.
Muud ruumid asuvad hoone põhikorrusel.
Hoones on teostatud aastate jooksul mitmeid parendustöid (osaline soojustamine, katusekatte vahetus, akende vahetus, tõstuste paigaldamine, osaliselt teostatud siseviimistlustöid, asendatud küttekehasid, lisaks tahkekütte katlale paigaldatud graanulkütte katel, torustike ning elektrisüsteemi osade uuendamised jmt)
*****VARJUALUNE*****
Kinnistu lõunapoolsesse osasse on ehitatud ligikaudu 700m2 suuruse ehitusaluse pinnaga varjualune.
KINNISTU on osaliselt kaetud betoonkattega, enamuses killustik-(kruus-)kattega ning vähesel määral ka haljastusega.
AEROVIDEO: https://youtu.be/xSU4FPEVLpg
Müügihinnale lisandub käibemaks.
Täpsemat infot jagab Kinnisvarabüroo Uus Maa kutseline maakler
Li Otsing
https://uusmaa.ee/li-otsing/
JAGA MINU KONTAKTI KÕIGILE, KES VAJAVAD KINNISVARANÕU!
- - - - - - - - - -
Telli hindamine UUS MAA Kinnisvarabüroolt https://uusmaa.ee/teenused/hindamine/
UUS MAA KINNISVARABÜROO EKSPERTHINNANGUID AKTSEPTEERIVAD KÕIK FINANTSASUTUSED.
- - - - - - - - - -
Liitu Uus Maa uudiskirjaga ja saa homset kinnisvarainfot juba täna!
https://www.uusmaa.ee/uudiskirjagaliitumine/
- - - - - - - - - -
Kodu aitab osta Swedbank.
Pakkumise saamiseks kasuta koodi UUSMAA ja Sind teenindatakse eelisjärjekorras.
Võtame ühendust 1 tööpäeva jooksul.
Uus Maa kliendile soodsam lepingutasu. Küsi täpsemat infot maaklerilt.
Finantsteenuseid pakub Swedbank AS. Tutvu tingimustega, pea nõu.
Kinnistule on tagatud tohutu elektrivõimsus!
Kokku 640 amprit, 3 faasi.
Väga hea juurdepääs asfalteeritud Iva teelt kui ka Farmi teelt.
Kompleks asub Viljandi linna vahetusläheduses Viiratsi aleviku serval Mäeltküla tööstuspargis.
KEHTIV DETAILPLANEERING
Lubatud ehitusalune pind - 7000m2
Hetkel olemasolevate hoonete ehitusalune pind kokku ca 4000m2.
Lubatud hoonete arv - 8
Hetkel olemasolevaid hooneid kokku 4
HOONESTUS
1) KAKS UUT SANDWICH HOONET - külmkuivatuseks ja kiirkülmutuseks, jahutuseks sobilike seadmete ja ruumidega
2) H-KUJULISE PLANEERINGUGA TOOTMISE-JA LAOHOONE
3) VARJUALUNE
***************************************************************
*****SANDWICH HOONED*****
Mõlemad hooned on kahekaldelise viilkatusega (sandwich-paneelidest) kolme tõstvärava, sandwich-paneelidest seinte ning betoonpõrandatega ehitised.
Loodepoolse kuivatihoone netopind on 493,5 m².
Kagupoolse laohoone netopind on 521,7 m².
Loodepoolse kuivatihoone ja kagupoolse laohoone vaheline maa-ala on betoneeritud.
See ala ja kagupoolse laohoone varjualuse alune ala kokku on ~ 400 m².
Varjualune ulatub hoonest eemale ca 5m.
Kummalgi hoonel on kolm käiguuksega tõstväravat mõõtudega 4,5x4,5 m ja uks kõrgusega 2,1 m, laiusega 1,1 m.
Hoonete kasutusotstarve on toiduainetetööstuse hoone ja toiduainete laohoone.
Loodepoolses külmkuivatushoones:
KÜLMKUIVATUSSEADE Sublimator 1000-90 EKS-R, 89,6m² toote kandikute ala, 1000kg toorme jahutusvõimsus
AURUSTI SÜGAVKÜLMKAMBRIS (35m²), jahutusvõimsus 6kW, -18...-20°C
AURUSTI KIIRKÜLMUTIS, JAHUTUSVÕIMSUS 25Kw, -32°C (tootlikkus: 2tonni marju, temp sisse 20/välja -20°C, külmutamise aeg 12h)
Kagupoolses laohoones:
erinevad AURUSTID jahekambrites, kiirkülmutuskambris ning sügavkülmkambris.
Lisaks külmutussüsteemidele/seadmetele on hooned varustatud SOOJUSTAGASTUS/ SULATUSSÜSTEEMIGA (sügavkülmkambrite ja kiirkülmutite aurustite jääst sulatamiseks kasutada)
Säilituskambrites kohtventilatsioonisüsteem.
Nendes kahes hoones alusta või laienda oma toiduainete äri kaasaegsel moel täiesti uute Saksa kvaliteediga seadmetega!
Sandwich hoonetes on tsentraalne vee- ja kanalisatsiooniühendus, tagatud 480amprine elektrivõimsus.
Valguskaabel.
Külmaseadmete töötamisel tekkiva jääksoojus kasutatakse ära hoonete kütmiseks.
Üldventilatsioon välja ehitamata.
*****H-KUJULISE PLANEERINGUGA TOOTMISE-JA LAOHOONE*****
Hoone netopind on 2360,6 m².
Kivikonstruktsioonist viilkatuse ning H-kujulise planeeringuga tootmiskompleks on ühekorruseline ja osalise sokli,-keldrikorrusega.
Hoone on kasutusel tootmis-, laohoonena. Osaliselt on kasutusel remonditöökojana, sepikojana ning toiduainetetööstusena ning selle tarbeks on ka tegevusluba väljastatud.
Osaliselt on ruumid välja üüritud.
Hoones on mitu erineva kasutusega tsooni:
- suuremad toiduainetööstuse ruumid, kus on lisaks tootmis-, pakendamis-, säilitus- ning abiruumid
- kontoriruumid, riietusruumid puhkeruumid ja sanitaarruumid
- hoone idatiivas asuvad tootmisruumid
- läänetiivas metallitööstusruumid, garaaž, laoruumid
Keldri-soklikorrusel asub kõrge garaažiruum, garaaž-ladu, katlaruum, ladu.
Muud ruumid asuvad hoone põhikorrusel.
Hoones on teostatud aastate jooksul mitmeid parendustöid (osaline soojustamine, katusekatte vahetus, akende vahetus, tõstuste paigaldamine, osaliselt teostatud siseviimistlustöid, asendatud küttekehasid, lisaks tahkekütte katlale paigaldatud graanulkütte katel, torustike ning elektrisüsteemi osade uuendamised jmt)
*****VARJUALUNE*****
Kinnistu lõunapoolsesse osasse on ehitatud ligikaudu 700m2 suuruse ehitusaluse pinnaga varjualune.
KINNISTU on osaliselt kaetud betoonkattega, enamuses killustik-(kruus-)kattega ning vähesel määral ka haljastusega.
AEROVIDEO: https://youtu.be/xSU4FPEVLpg
Müügihinnale lisandub käibemaks.
Täpsemat infot jagab Kinnisvarabüroo Uus Maa kutseline maakler
Li Otsing
https://uusmaa.ee/li-otsing/
JAGA MINU KONTAKTI KÕIGILE, KES VAJAVAD KINNISVARANÕU!
- - - - - - - - - -
Telli hindamine UUS MAA Kinnisvarabüroolt https://uusmaa.ee/teenused/hindamine/
UUS MAA KINNISVARABÜROO EKSPERTHINNANGUID AKTSEPTEERIVAD KÕIK FINANTSASUTUSED.
- - - - - - - - - -
Liitu Uus Maa uudiskirjaga ja saa homset kinnisvarainfot juba täna!
https://www.uusmaa.ee/uudiskirjagaliitumine/
- - - - - - - - - -
Kodu aitab osta Swedbank.
Pakkumise saamiseks kasuta koodi UUSMAA ja Sind teenindatakse eelisjärjekorras.
Võtame ühendust 1 tööpäeva jooksul.
Uus Maa kliendile soodsam lepingutasu. Küsi täpsemat infot maaklerilt.
Finantsteenuseid pakub Swedbank AS. Tutvu tingimustega, pea nõu.






























































































