MÜÜA TAMMISTE KAUPLUS
Kui oled Pärnu inimene, siis kindlasti tuttav koht või oled isegi mõne ostu sealt sooritanud.
SISSETÖÖTATUD KOHT!
LOO ENDALE ISE TÖÖKOHT!
Ära maga maha seda suurepärast pakkumist!
ASUKOHT:
Kinnistu asub Tammiste suvilate ja uuseelamute piirkonnas, igati logistiliselt väga heas asukohas.
Kui ei viitsi suurde poodi minna, siis vajaliku saab sellest poest kiiresti kätte.
Asub kohe bussipeatuse kõrval.
SIHTOTSTARVE:
85% ärimaa ja 15% transpordimaa
KINNISTU:
Maatüki suurus: 863 m²
Kinnistul asub 1 hoone ja oma puurkaev.
Puurkaevu sügavus 80 meetrit. Olemas projekt ja pass.
SEISUKORD:
Majal on vana katus ja uued aknad.
Vundament on soojustatud,
Maja 2 külge on soojustatud v.a maja tagumine külg.
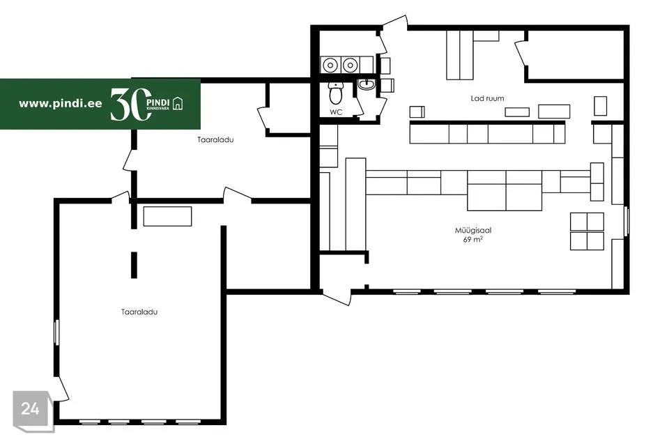
PLANEERING:
Teenindusruum, laoruum, väike kööginurk, wc
VESI:
Oma puurkaev
Võimalus liituda ka tsentraalse veega.
KÜTE:
Hoonetes on küttena õhksoojuspump.
ELEKTER:
Võrgulepingu järgne peakaitse on 32A, 3-faasiline ühendus.
OLULINE LISAINFO:
Hinna sees kaupluse inventar.
TÄPSEM INFO: 56******, Mai Kõvatomas
.
-------------------------------------------------------------------------------------------------------------------------------------------------------
PANGA SOODUSTUSED Teeme koostööd kõikide suuremate pankadega! Meie kliendina teenindatakse Sind eelisjärjekorras ning kodulaenu lepingutasule kehtivad soodustused.
VAHENDAMINE Pindi Kinnisvara on pakkunud esindusteenust kinnisvaraturul alates 1995. aastast. Suurima Eesti kinnisvarabüroona oleme esindatud 18 linnas.
HINDAMINE Meie 30 kutselise hindaja eksperthinnanguid aktsepteerivad kõik finantsasutused! Hindame nii elukondlikku kui ärikinnisvara.
JURIIDILINE NÕUSTAMINE Pindi Kinnisvara tütarettevõtte Realia Õigusbüroo spetsialistid on Sulle abiks kõigis kinnisvara puudutavates juriidilistes küsimustes.
Täpsemalt loe ja võta ühendust: https://www.pindi.ee/ või konsulteeri oma maakleriga.
Kui oled Pärnu inimene, siis kindlasti tuttav koht või oled isegi mõne ostu sealt sooritanud.
SISSETÖÖTATUD KOHT!
LOO ENDALE ISE TÖÖKOHT!
Ära maga maha seda suurepärast pakkumist!
ASUKOHT:
Kinnistu asub Tammiste suvilate ja uuseelamute piirkonnas, igati logistiliselt väga heas asukohas.
Kui ei viitsi suurde poodi minna, siis vajaliku saab sellest poest kiiresti kätte.
Asub kohe bussipeatuse kõrval.
SIHTOTSTARVE:
85% ärimaa ja 15% transpordimaa
KINNISTU:
Maatüki suurus: 863 m²
Kinnistul asub 1 hoone ja oma puurkaev.
Puurkaevu sügavus 80 meetrit. Olemas projekt ja pass.
SEISUKORD:
Majal on vana katus ja uued aknad.
Vundament on soojustatud,
Maja 2 külge on soojustatud v.a maja tagumine külg.
PLANEERING:
Teenindusruum, laoruum, väike kööginurk, wc
VESI:
Oma puurkaev
Võimalus liituda ka tsentraalse veega.
KÜTE:
Hoonetes on küttena õhksoojuspump.
ELEKTER:
Võrgulepingu järgne peakaitse on 32A, 3-faasiline ühendus.
OLULINE LISAINFO:
Hinna sees kaupluse inventar.
TÄPSEM INFO: 56******, Mai Kõvatomas
.
-------------------------------------------------------------------------------------------------------------------------------------------------------
PANGA SOODUSTUSED Teeme koostööd kõikide suuremate pankadega! Meie kliendina teenindatakse Sind eelisjärjekorras ning kodulaenu lepingutasule kehtivad soodustused.
VAHENDAMINE Pindi Kinnisvara on pakkunud esindusteenust kinnisvaraturul alates 1995. aastast. Suurima Eesti kinnisvarabüroona oleme esindatud 18 linnas.
HINDAMINE Meie 30 kutselise hindaja eksperthinnanguid aktsepteerivad kõik finantsasutused! Hindame nii elukondlikku kui ärikinnisvara.
JURIIDILINE NÕUSTAMINE Pindi Kinnisvara tütarettevõtte Realia Õigusbüroo spetsialistid on Sulle abiks kõigis kinnisvara puudutavates juriidilistes küsimustes.
Täpsemalt loe ja võta ühendust: https://www.pindi.ee/ või konsulteeri oma maakleriga.










