Pakkumisel on toimiv ärihoone, kus I korruse laopinnad on välja ehitatud miniladudeks ja II korrusel asuvad büroo-ja teenindusruumid.
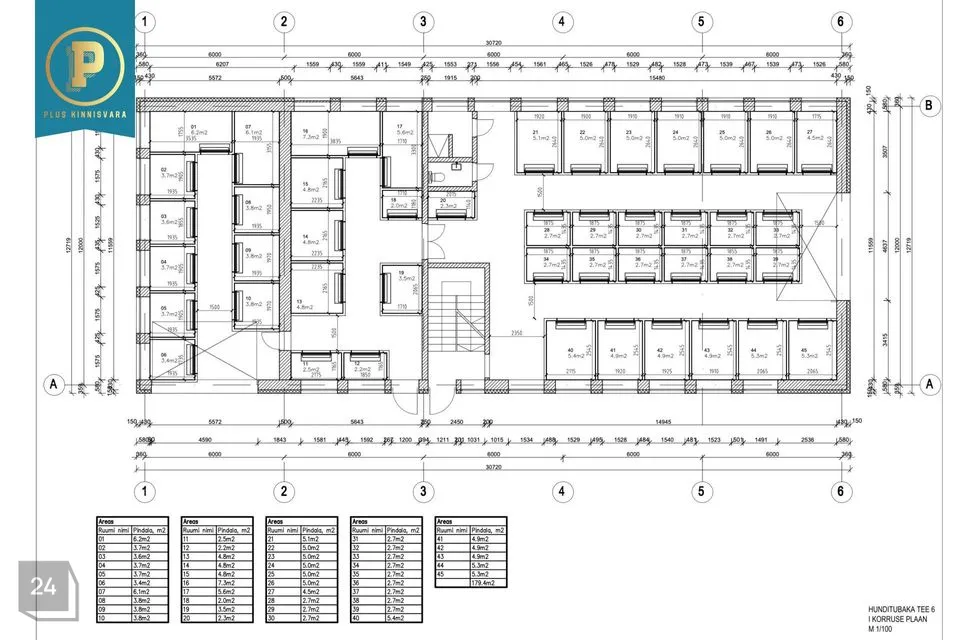
I korrusel on 44 erineva suurusega minilaoboksi, millest osad on juba välja üüritud.
II korrusel on 4 erineva suurusega büroopinda, millest paar on juba välja üüritud ja mõnele veel otsime üürnikku.
Katusel asub päikesepark, kuhu on investeeritud ca 125 000€. 75 kW päikesepaneelid, 215 kW akud ja 150 kW inverter. Elektri võrku müügiluba on olemas — mahus 50 kWh.
Lisaks on kinnistul Telia, Elisa ja Tele2 mastid, kes maksavad samuti igakuist tasu + kasutavad suures mahus elektrit.
Müügihinnale lisandub käibemaks!
Pakutava äriprojektiga tutvumiseks ja lisainformatsioon saamiseks palun võtke minuga ühendust!
Plus Kinnisvarabüroo on butiikstiilis kinnisvarabüroo neile, kes hindavad personaalset lähenemist.
Plus Kinnisvarabüroo keskendub kvaliteedile, mitte kvantiteedile. Iga klient on meie jaoks tähtis ning töötame oma kliendi maksimaalse heaolu nimel!
I korrusel on 44 erineva suurusega minilaoboksi, millest osad on juba välja üüritud.
II korrusel on 4 erineva suurusega büroopinda, millest paar on juba välja üüritud ja mõnele veel otsime üürnikku.
Katusel asub päikesepark, kuhu on investeeritud ca 125 000€. 75 kW päikesepaneelid, 215 kW akud ja 150 kW inverter. Elektri võrku müügiluba on olemas — mahus 50 kWh.
Lisaks on kinnistul Telia, Elisa ja Tele2 mastid, kes maksavad samuti igakuist tasu + kasutavad suures mahus elektrit.
Müügihinnale lisandub käibemaks!
Pakutava äriprojektiga tutvumiseks ja lisainformatsioon saamiseks palun võtke minuga ühendust!
Plus Kinnisvarabüroo on butiikstiilis kinnisvarabüroo neile, kes hindavad personaalset lähenemist.
Plus Kinnisvarabüroo keskendub kvaliteedile, mitte kvantiteedile. Iga klient on meie jaoks tähtis ning töötame oma kliendi maksimaalse heaolu nimel!


















































