Unikaalse asukohaga 1. korruse äripind / restoranipind - asudes Tallinna ühe peamise sissepääsu juures, lennujaama ja kesklinna vahel, tõmbab hoone endale pea kõigi möödujate tähelepanu.
Äripind on vaatega Tartu maanteele, vitriinide ees suur ja mugav avalik parkla.
Hoone rekonstrueeriti aastatel 2004–2007 (KOKO arhitektid).
ÄRIPIND
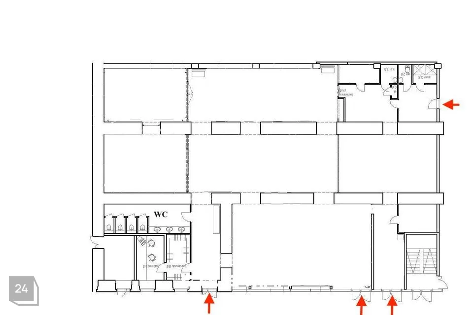
• Üldpind 460 m² – kolm saali ja köök, lisaks laste mängutuba.
• Kolm sissepääsu – kaks eest klaasfassaadi suunalt ja üks trepikotta.
• Laekõrgus 3000 mm.
• Võimas eriventilatsioon toitlustuse jaoks.
• Maast laeni vitriinaknad Tartu maantee suunas.
• Avarad ja mugavad WC-ruumid.
• Välireklaami paigaldamise õigus fassaadil.
• Parim nähtavus ja leitavus kvartalis.
• Pick-up kohad kulleritele.
• Personaalsed parkimiskohad vitriinide ees.
Roheline büroolinnak kesklinna parimas asukohas! Madalad kõrvalkulud, mugavad ligipääsud ning piiramatu parkimine otse südalinnas.
ASUKOHT
• Tallinna kesklinn
• Suurimate magistraaltänavate – Tartu mnt, Peterburi tee ja Järvevana tee – ristumispunkt
• Mõne minutiga vanalinna, südalinna, lennujaama või sadamasse
• Asukoht Ülemiste ristmiku kõrval tagab mobiilse ligipääsu kõikidesse linnaosadesse
• Parimad ühendused ühistranspordivõrguga – 200 meetri raadiuses on mitmed trammi- ja bussipeatused
• Fahle kõrval asuvad Tallinna bussijaam, lennujaam ja uus rajatav Rail Balticu peaterminal
• Läheduses mitmed kaubanduskeskused: Ülemiste keskus, Sikupilli keskus, Stockmanni kaubamaja, T1 meelelahutus- ja kaubanduskeskus
Fahle linnak on üks kiiremini arenevaid äri- ja elukondlikke piirkondi, mis koosneb mitmest hoonest:
Fahle maja
Meediamaja
Hoovimaja
Galeriitänav
Terrassid (hoone on ehitamisel)
Portaal (hoonel on olemas ehitusluba)
Vasepada (hoonel on olemas ehitusluba)
JAGA MINU KONTAKTI KÕIGILE, KES VAJAVAD KINNISVARANÕU!
- - - - - - - - - -
Telli hindamine UUS MAA Kinnisvarabüroolt https://uusmaa.ee/teenused/hindamine/
UUS MAA KINNISVARABÜROO EKSPERTHINNANGUID AKTSEPTEERIVAD KÕIK FINANTSASUTUSED.
- - - - - - - - - -
Liitu Uus Maa uudiskirjaga ja saa homset kinnisvarainfot juba täna!
https://www.uusmaa.ee/uudiskirjagaliitumine/
- - - - - - - - - -
Kodu aitab osta Swedbank.
Pakkumise saamiseks kasuta koodi UUSMAA ja Sind teenindatakse eelisjärjekorras.
Võtame ühendust 1 tööpäeva jooksul.
Uus Maa kliendile soodsam lepingutasu. Küsi täpsemat infot maaklerilt.
Finantsteenuseid pakub Swedbank AS. Tutvu tingimustega, pea nõu.
Äripind on vaatega Tartu maanteele, vitriinide ees suur ja mugav avalik parkla.
Hoone rekonstrueeriti aastatel 2004–2007 (KOKO arhitektid).
ÄRIPIND
• Üldpind 460 m² – kolm saali ja köök, lisaks laste mängutuba.
• Kolm sissepääsu – kaks eest klaasfassaadi suunalt ja üks trepikotta.
• Laekõrgus 3000 mm.
• Võimas eriventilatsioon toitlustuse jaoks.
• Maast laeni vitriinaknad Tartu maantee suunas.
• Avarad ja mugavad WC-ruumid.
• Välireklaami paigaldamise õigus fassaadil.
• Parim nähtavus ja leitavus kvartalis.
• Pick-up kohad kulleritele.
• Personaalsed parkimiskohad vitriinide ees.
Roheline büroolinnak kesklinna parimas asukohas! Madalad kõrvalkulud, mugavad ligipääsud ning piiramatu parkimine otse südalinnas.
ASUKOHT
• Tallinna kesklinn
• Suurimate magistraaltänavate – Tartu mnt, Peterburi tee ja Järvevana tee – ristumispunkt
• Mõne minutiga vanalinna, südalinna, lennujaama või sadamasse
• Asukoht Ülemiste ristmiku kõrval tagab mobiilse ligipääsu kõikidesse linnaosadesse
• Parimad ühendused ühistranspordivõrguga – 200 meetri raadiuses on mitmed trammi- ja bussipeatused
• Fahle kõrval asuvad Tallinna bussijaam, lennujaam ja uus rajatav Rail Balticu peaterminal
• Läheduses mitmed kaubanduskeskused: Ülemiste keskus, Sikupilli keskus, Stockmanni kaubamaja, T1 meelelahutus- ja kaubanduskeskus
Fahle linnak on üks kiiremini arenevaid äri- ja elukondlikke piirkondi, mis koosneb mitmest hoonest:
Fahle maja
Meediamaja
Hoovimaja
Galeriitänav
Terrassid (hoone on ehitamisel)
Portaal (hoonel on olemas ehitusluba)
Vasepada (hoonel on olemas ehitusluba)
JAGA MINU KONTAKTI KÕIGILE, KES VAJAVAD KINNISVARANÕU!
- - - - - - - - - -
Telli hindamine UUS MAA Kinnisvarabüroolt https://uusmaa.ee/teenused/hindamine/
UUS MAA KINNISVARABÜROO EKSPERTHINNANGUID AKTSEPTEERIVAD KÕIK FINANTSASUTUSED.
- - - - - - - - - -
Liitu Uus Maa uudiskirjaga ja saa homset kinnisvarainfot juba täna!
https://www.uusmaa.ee/uudiskirjagaliitumine/
- - - - - - - - - -
Kodu aitab osta Swedbank.
Pakkumise saamiseks kasuta koodi UUSMAA ja Sind teenindatakse eelisjärjekorras.
Võtame ühendust 1 tööpäeva jooksul.
Uus Maa kliendile soodsam lepingutasu. Küsi täpsemat infot maaklerilt.
Finantsteenuseid pakub Swedbank AS. Tutvu tingimustega, pea nõu.





























