Müüa väike omaette sissepääsu ja vitriinakendega äripind Pärnu maanteel, uue eluhoone 1. korrusel. Ideaalne ilu- või muude teenuste pakkumiseks, showroomiks või bürooks, ei sobi toitlustuseks. Pinnal on seni tegutsenud ilusalong, kes üürnikuna ei jätka.
Pind on suurepäraselt nähtav, sest asub tiheda liiklusega Pärnu maantee ääres. Hoonel on ka valgusreklaami võimalus.
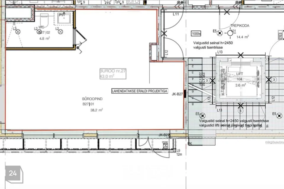
Üle 3m kõrguse laega pind on avar ja esinduslik. Olemas on tualett ja duširuum ning kööginurga valmidus.
Pinna juurde kuulub parkimiskoht (erikasutuskorraga) hoone all garaažis, kuhu on ligipääs trepikojast otse ka liftiga. Klientidel on võimalik parkida ümbruse tänavatel.
Pärnu maantee on väljakujunenud populaarne äripiirkond, kus suur hulk kauplusi ja esindussalonge. Südalinna lähedus, mugav ligipääs autoga ja ühistranspordiga ning suurepärane nähtavus on selle piirkonna olulisimad märksõnad. Ümbruses on ka palju eluhooneid.
Müügihind 159 500 eurot (sisaldab ka parkimiskohta), lisandub käibemaks.
Kui otsid oma pinda, mis Sinu ettevõtet suurepäraselt turundaks, siis see pakkumine on Sulle!
Jaga minu kontakti kõigile, kes vajavad kinnisvaranõu!
Liitu meie uudiskirjaga ja saa homset kinnisvarainfot juba täna! Vaata https://arikinnisvara.uusmaa.ee
UUS MAA ÄRIKINNISVARA - aastakümned kogemust ja klientide usaldust, läbimõeldud täisteenus ja suurim arv eksperte: vahendamine, hindamine, haldamine, nõustamine ja investeerimine.
Pind on suurepäraselt nähtav, sest asub tiheda liiklusega Pärnu maantee ääres. Hoonel on ka valgusreklaami võimalus.
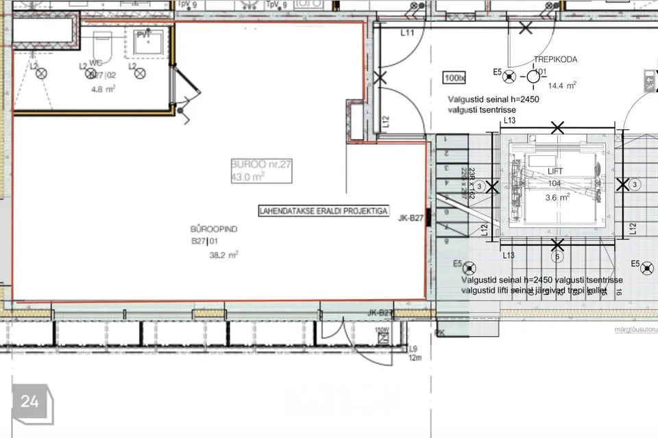
Üle 3m kõrguse laega pind on avar ja esinduslik. Olemas on tualett ja duširuum ning kööginurga valmidus.
Pinna juurde kuulub parkimiskoht (erikasutuskorraga) hoone all garaažis, kuhu on ligipääs trepikojast otse ka liftiga. Klientidel on võimalik parkida ümbruse tänavatel.
Pärnu maantee on väljakujunenud populaarne äripiirkond, kus suur hulk kauplusi ja esindussalonge. Südalinna lähedus, mugav ligipääs autoga ja ühistranspordiga ning suurepärane nähtavus on selle piirkonna olulisimad märksõnad. Ümbruses on ka palju eluhooneid.
Müügihind 159 500 eurot (sisaldab ka parkimiskohta), lisandub käibemaks.
Kui otsid oma pinda, mis Sinu ettevõtet suurepäraselt turundaks, siis see pakkumine on Sulle!
Jaga minu kontakti kõigile, kes vajavad kinnisvaranõu!
Liitu meie uudiskirjaga ja saa homset kinnisvarainfot juba täna! Vaata https://arikinnisvara.uusmaa.ee
UUS MAA ÄRIKINNISVARA - aastakümned kogemust ja klientide usaldust, läbimõeldud täisteenus ja suurim arv eksperte: vahendamine, hindamine, haldamine, nõustamine ja investeerimine.
















