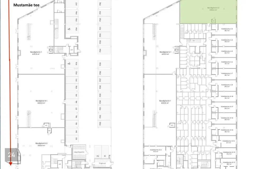
Müüa vitriinakende ja kõrge laega äripind Mustamäe tee ääres uues elu - ja ärihoones. Äripind paikneb 1. ja 2. korrusel ning sobib seetõttu nii kaupluseks, showroomiks kui ka bürooks. Pind on väga avar ja valgusküllane, sest 2. korrus paikneb tagasiastega, mis jätab hoone fassaadi poole kahe korruse kõrguse suurte akendega ruumi. Pind on ideaalne ettevõttele, kes vajab bürood ja tänavalt sissepääsuga esindussalongi. Samas saab sellisele sisetrepiga ühendatud ja avarale pinnale ka silmapaistvalt ägeda sisedisainiga büroo. Hetkel on pind välja ehitamata, et ostjal oleks võimalik pind oma soovida järgi kujundada.
Pinnale on kolm sissepääsu tänavalt ja üks sissepääs hoone tagaküljel asuvast parklast, kust mahub sisse ka euroalusega. Parkla lae kõrgus on 2,4 meetrit, suurem kaubaauto saab peatude hoone taga, kust läbi parkla ligipääs pinnale. Lisaks on pinnale sissepääs 2. korruselt läbi eluhoone koridori.
Maja on varustatud kaasaegsete ja energiatõhusate tehnosüsteemidega (soojustagastusega ventilatsioon, integreeritud küte ja jahutus - st ruumipõhine temperatuuri reguleerimine).
Silmapaistvalt ilusa arhitektuuriga hoone on suurepäraselt nähtav ja mugavas asukohas Mustamäe tee ääres, kuhu on hea ligipääs nii auto, jalgratta kui ühistranspordiga. Ümbruses on suured elurajoonid. Hoone parklas maja ees saab üürida parkimiskohti, eraldi parkimiskohad on klientidele. Hoones on ka jalgrattaparkla.
Vesipapi 6 elu- ja ärihoone on osa Mustamäe tee ja Linnu tee nurgal endise trollidepoo alal toimuvast arendusest. Astlanda Ehitus alustas arendusega 2019. aastal Lõvirahu Pargikodudega ning mitmes etapis on tänaseks valminud 14 kortermaja.
Hind 700 000 eurot. Lisandub käibemaks.
Pind on võimalik ka üürida - küsi lisainfot.
Kui otsid esinduslikku äripinda mugavas asukohas ning soovid oma pinna valmimisel ise kaasa rääkida, võta ühendust ja läheme vaatama!
P.S. Hoones on pakkuda ka 619m² pind.
Jaga minu kontakti kõigile, kes vajavad kinnisvaranõu!
Liitu meie uudiskirjaga ja saa homset kinnisvarainfot juba täna! Vaata https://arikinnisvara.uusmaa.ee
UUS MAA ÄRIKINNISVARA - aastakümned kogemust ja klientide usaldust, läbimõeldud täisteenus ja suurim arv eksperte: vahendamine, hindamine, haldamine, nõustamine ja investeerimine.
Pinnale on kolm sissepääsu tänavalt ja üks sissepääs hoone tagaküljel asuvast parklast, kust mahub sisse ka euroalusega. Parkla lae kõrgus on 2,4 meetrit, suurem kaubaauto saab peatude hoone taga, kust läbi parkla ligipääs pinnale. Lisaks on pinnale sissepääs 2. korruselt läbi eluhoone koridori.
Maja on varustatud kaasaegsete ja energiatõhusate tehnosüsteemidega (soojustagastusega ventilatsioon, integreeritud küte ja jahutus - st ruumipõhine temperatuuri reguleerimine).
Silmapaistvalt ilusa arhitektuuriga hoone on suurepäraselt nähtav ja mugavas asukohas Mustamäe tee ääres, kuhu on hea ligipääs nii auto, jalgratta kui ühistranspordiga. Ümbruses on suured elurajoonid. Hoone parklas maja ees saab üürida parkimiskohti, eraldi parkimiskohad on klientidele. Hoones on ka jalgrattaparkla.
Vesipapi 6 elu- ja ärihoone on osa Mustamäe tee ja Linnu tee nurgal endise trollidepoo alal toimuvast arendusest. Astlanda Ehitus alustas arendusega 2019. aastal Lõvirahu Pargikodudega ning mitmes etapis on tänaseks valminud 14 kortermaja.
Hind 700 000 eurot. Lisandub käibemaks.
Pind on võimalik ka üürida - küsi lisainfot.
Kui otsid esinduslikku äripinda mugavas asukohas ning soovid oma pinna valmimisel ise kaasa rääkida, võta ühendust ja läheme vaatama!
P.S. Hoones on pakkuda ka 619m² pind.
Jaga minu kontakti kõigile, kes vajavad kinnisvaranõu!
Liitu meie uudiskirjaga ja saa homset kinnisvarainfot juba täna! Vaata https://arikinnisvara.uusmaa.ee
UUS MAA ÄRIKINNISVARA - aastakümned kogemust ja klientide usaldust, läbimõeldud täisteenus ja suurim arv eksperte: vahendamine, hindamine, haldamine, nõustamine ja investeerimine.


















