Kasuta suurepärast võimalust OSTA isiklik äripind 2026. aastal valmivas Radari 7 ärimajas! - www.radari7.ee
Radari tee 7 maja ehitus algab novembris 2025 ja maja valmib mai/juuni 2026.
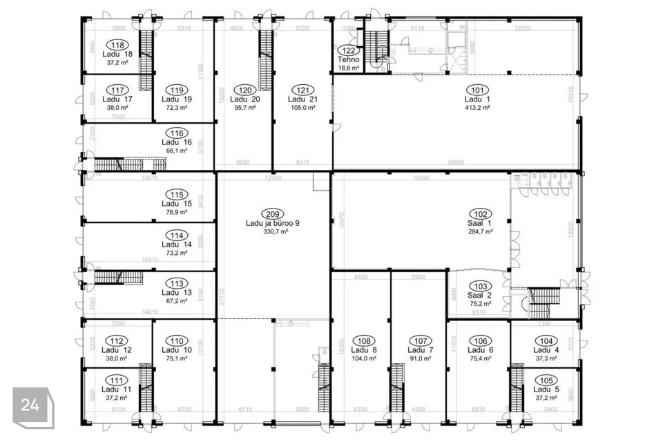
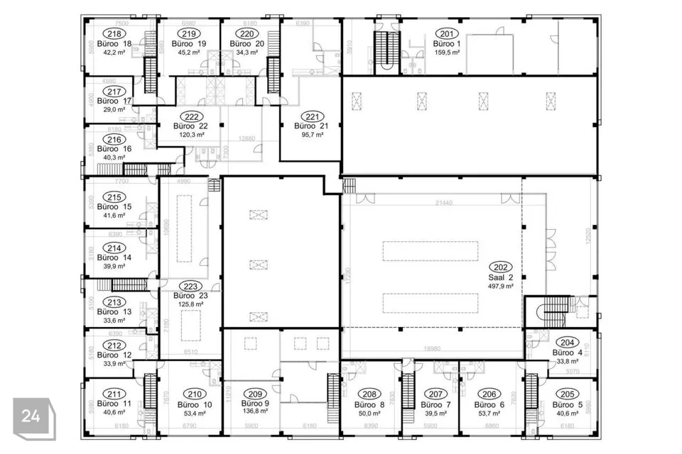
Müüdav äripind koosneb:
Büroo nr. 8 (2. korrusel ruum nr. 208) 50,0m², lae kõrgus 2,7m hind: 74 000.- € + km
Asukoht
Radari 7 ärimaja asub suurepärases asukohas – Mõigu Tehnopargis – logistilisel tuiksoonel, Tartu maantee ja Tallinna linna piiril.
Tallinna lennujaam: 5 min
Tallinna ringtee: 7 min
Tallinna kesklinn: 10 min
Maja
Maja on r/b konstruktsiooniga : rb/ postid-talad-vahelae paneelid.
Välisfassaadi materjal on 160 mm SW paneel, majas on hübriidküte (gaas + õhk-vesi soojuspumbad), kõik ruumid on varustatud soojustagastusega ventilatsiooniga, see tagab madalad kasutuskulud.
Hoone projekteerimisel on silmas peetud kõiki olulisi ehituslikke kriteeriume ja nõudeid, mis tagavad korrektse ehitusprotsessi ning läbimõeldud lahendustega kvaliteetse hoone valmimise.
Hoonekompleksis on:
21 laoboksi suurusega 30m² … 300m²
18 büroopinda suurusega 30m²… 160m²
3 multifunktsionaalset ruumi (saalid) erinevateks tegevusteks
Hoone kogupindala on ca 4330m².
Meie hoonet iseloomustavad:
Logistiline mugavus nii siseruumides kui ka kinnistul. Ruumide planeering on funktsionaalne, kinnistul on piisav manööverdamisruum igas gabariidis sõidukitega liiklemiseks ja vajalik kogus parkimiskohti.
Optimaalse suurusega lao- ja büroopinnad ning läbimõeldud ruumilahendused võimaldavad mahutada maksimaalse koguse kaupa, töökohti või seadmeid.
Kaasaegsed tehnoloogilised lahendused ja kvaliteetsed materjalid/seadmed tagavad hoone tehnosüsteemide töökindluse ning madalad kasutuskulud.
Hoone tehniline info
LIGIPÄÄS hoonesse on tagatud 24/7. Uste lukustussüsteem toimib elektrooniliste puutevõtmetega. Uksed on avatavad ka distantsilt läbi fonosüsteemi.
Kõik lao- ja bürooruumid on varustatud SIGNALISATSIOONIGA. Igas boksis on sisekaamera ja lisaks on kinnistul VALVEKAAMERAD hoone parklas ja perimeetril.
Majas on HÜBRIIDKÜTE (gaasikatel ja õhk-vesi soojuspumbad). Laobokside küte on lahendatud reguleeritavate soojavee kalorifeeridega, büroodes radiaatoritega.
Hoone on varustatud PÄIKESEPANEELIDEGA ning arvestuslik energiklass on A
SOOJUSTAGASTUSEGA VENTILATSIOON kõikides ruumides.
Igal äripinnal on oma elektrikilp ja -mõõdik.
Kõikides laoboksides on 16A võimsusega peakaitse
Laoruumide kõrgused on 3,4m, 4,4m ja 6,4m
Bürooruumide kõrgus on 2,7m
TÕSTUKSED on mootoriga, akendega, distantsilt avatavad.
Igas boksis on wifi-ruuter, hoonesse tuleb VALGUSKAABEL.
Kinnistul on 99 auto parkimiskohta, samuti jalgrattaparkla. Parkimine vabadel kohtadel.
Lisainfo
Büroodes on sisseehitatud wc/dush ning on olemas köögivalmidus.
Kuulutuses märgitud hinnale lisandub käibemaks.
Vastame meeleldi tekkinud küsimustele kirja- või telefoni teel!
Radari tee 7 maja ehitus algab novembris 2025 ja maja valmib mai/juuni 2026.
Müüdav äripind koosneb:
Büroo nr. 8 (2. korrusel ruum nr. 208) 50,0m², lae kõrgus 2,7m hind: 74 000.- € + km
Asukoht
Radari 7 ärimaja asub suurepärases asukohas – Mõigu Tehnopargis – logistilisel tuiksoonel, Tartu maantee ja Tallinna linna piiril.
Tallinna lennujaam: 5 min
Tallinna ringtee: 7 min
Tallinna kesklinn: 10 min
Maja
Maja on r/b konstruktsiooniga : rb/ postid-talad-vahelae paneelid.
Välisfassaadi materjal on 160 mm SW paneel, majas on hübriidküte (gaas + õhk-vesi soojuspumbad), kõik ruumid on varustatud soojustagastusega ventilatsiooniga, see tagab madalad kasutuskulud.
Hoone projekteerimisel on silmas peetud kõiki olulisi ehituslikke kriteeriume ja nõudeid, mis tagavad korrektse ehitusprotsessi ning läbimõeldud lahendustega kvaliteetse hoone valmimise.
Hoonekompleksis on:
21 laoboksi suurusega 30m² … 300m²
18 büroopinda suurusega 30m²… 160m²
3 multifunktsionaalset ruumi (saalid) erinevateks tegevusteks
Hoone kogupindala on ca 4330m².
Meie hoonet iseloomustavad:
Logistiline mugavus nii siseruumides kui ka kinnistul. Ruumide planeering on funktsionaalne, kinnistul on piisav manööverdamisruum igas gabariidis sõidukitega liiklemiseks ja vajalik kogus parkimiskohti.
Optimaalse suurusega lao- ja büroopinnad ning läbimõeldud ruumilahendused võimaldavad mahutada maksimaalse koguse kaupa, töökohti või seadmeid.
Kaasaegsed tehnoloogilised lahendused ja kvaliteetsed materjalid/seadmed tagavad hoone tehnosüsteemide töökindluse ning madalad kasutuskulud.
Hoone tehniline info
LIGIPÄÄS hoonesse on tagatud 24/7. Uste lukustussüsteem toimib elektrooniliste puutevõtmetega. Uksed on avatavad ka distantsilt läbi fonosüsteemi.
Kõik lao- ja bürooruumid on varustatud SIGNALISATSIOONIGA. Igas boksis on sisekaamera ja lisaks on kinnistul VALVEKAAMERAD hoone parklas ja perimeetril.
Majas on HÜBRIIDKÜTE (gaasikatel ja õhk-vesi soojuspumbad). Laobokside küte on lahendatud reguleeritavate soojavee kalorifeeridega, büroodes radiaatoritega.
Hoone on varustatud PÄIKESEPANEELIDEGA ning arvestuslik energiklass on A
SOOJUSTAGASTUSEGA VENTILATSIOON kõikides ruumides.
Igal äripinnal on oma elektrikilp ja -mõõdik.
Kõikides laoboksides on 16A võimsusega peakaitse
Laoruumide kõrgused on 3,4m, 4,4m ja 6,4m
Bürooruumide kõrgus on 2,7m
TÕSTUKSED on mootoriga, akendega, distantsilt avatavad.
Igas boksis on wifi-ruuter, hoonesse tuleb VALGUSKAABEL.
Kinnistul on 99 auto parkimiskohta, samuti jalgrattaparkla. Parkimine vabadel kohtadel.
Lisainfo
Büroodes on sisseehitatud wc/dush ning on olemas köögivalmidus.
Kuulutuses märgitud hinnale lisandub käibemaks.
Vastame meeleldi tekkinud küsimustele kirja- või telefoni teel!
















