100% ärimaa koos kaubandushoonega asub teede ristumiskohal Peningi Mõisa vastas. Tallinna kesklinnast 30 km. 70-ndatel ehitatud Peningi Kauplus on täna
peale väikest vaheaega töös kohvik -kauplusena.
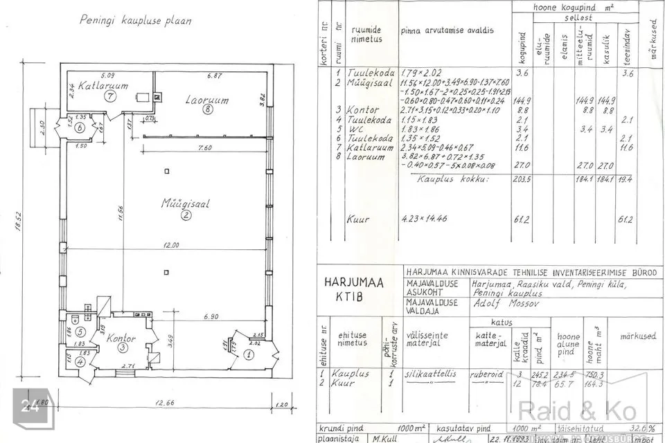
Ehitise nimetus kauplus, peamine kasutusotstarve ehitisregistris kaubandushoone.
Kinnistul on lisaks kaupluse hoonele, ehitisregistris
registreeritud abihoone nimetusega kuur, suletud pind 61,2 m2.
Ehitised vajavad uuenduskuuri.
Kaupluse aknad hiljuti vahetatud, plastik 2x klaaspakett.
Küte on puuküttega kesküttekatla ja radiaatorite baasil.
Küttepuude kulu ca 15-20 m2 aastas.
Kanalisatsioon ja vesi tsentraalne, teenusepakkuja Raven OÜ.
Prügivedu Keskonnateenused AS.
Elektrikulu 100 - 160 eur/kuus. Poena tegutsemise ajal on olnud märts-september 180-215 eur, oktoober-veebruar 300-350 eur.
Elektriliitumine 25A.
Olemas arved ja lisainformatsioon google drive lingiga.
Palun võtke ühendust ja vaatame selle staažika äripinna võimalused üle.
peale väikest vaheaega töös kohvik -kauplusena.
Ehitise nimetus kauplus, peamine kasutusotstarve ehitisregistris kaubandushoone.
Kinnistul on lisaks kaupluse hoonele, ehitisregistris
registreeritud abihoone nimetusega kuur, suletud pind 61,2 m2.
Ehitised vajavad uuenduskuuri.
Kaupluse aknad hiljuti vahetatud, plastik 2x klaaspakett.
Küte on puuküttega kesküttekatla ja radiaatorite baasil.
Küttepuude kulu ca 15-20 m2 aastas.
Kanalisatsioon ja vesi tsentraalne, teenusepakkuja Raven OÜ.
Prügivedu Keskonnateenused AS.
Elektrikulu 100 - 160 eur/kuus. Poena tegutsemise ajal on olnud märts-september 180-215 eur, oktoober-veebruar 300-350 eur.
Elektriliitumine 25A.
Olemas arved ja lisainformatsioon google drive lingiga.
Palun võtke ühendust ja vaatame selle staažika äripinna võimalused üle.






























