Müüa kinnisvara Jõõpre külas Aisa tee 1 - Külakeskuse hoone põhikorrusel asuvad endised kaupluseruumid
Omadused:
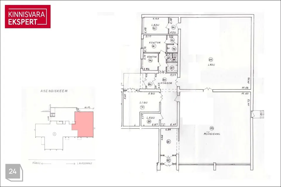
•Asukoht: Jõõpre küla, Aisa tee 1
•Pindala: 390,3 m²
•Korrus: I korrus
•Elektrisüsteem: 50A, 3 faasi
•Küte: Elektriküte
•Vesi ja kanalisatsioon: Olemas
•Sissepääsud: Eest ja tagant
Ruumijaotus:
•Müügisaal: 136 m²
•Ladu: 135 m²
•Ülejäänud äri- ja abiruumid
Seisukord:
•Ruumid seisnud pikalt tühjana
•Vajavad remonti
Lisainfo:
•Kasutusotstarve: Sobib mitmeteks ärivõimalusteks, alustades kaubandusest kuni teeninduse ja muu äritegevuseni.
•Võimalused: Ideaalne neile, kes otsivad ruumikat äripinda või soovivad elu- ja äriruumid ühendada.
****
KINNISVARAEKSPERT tegutseb Eesti turul alates 1993. aastast. Meie Bürood asuvad Tallinnas ja Pärnus ning teenindame teid üle Eesti. Koostööpartnerite Nord Prime Capital ja Alliance Group UAB kaudu oleme esindatud ka Lätis ning Leedus.
Pakume maaklerteenust, hindamist ja kinnisvaraalast nõustamisteenust nii era- kui ka ärisektoris.
Kinnisvaraekspert teeb tihedat koostööd maailma suurimate kinnisvarafirmade hulka kuuluva ettevõttega Cushman & Wakefield. Meie koostöösidemed ulatuvad peale Balti riikide ja Põhjamaade pea kõikidesse maailmajagudesse.
Lisainfo ja teenuste tellimine:
Tallinnas: +372 *******
Pärnus: +372 *******
Rohkem infot leiad www.kinnisvaraekspert.ee
***
Omadused:
•Asukoht: Jõõpre küla, Aisa tee 1
•Pindala: 390,3 m²
•Korrus: I korrus
•Elektrisüsteem: 50A, 3 faasi
•Küte: Elektriküte
•Vesi ja kanalisatsioon: Olemas
•Sissepääsud: Eest ja tagant
Ruumijaotus:
•Müügisaal: 136 m²
•Ladu: 135 m²
•Ülejäänud äri- ja abiruumid
Seisukord:
•Ruumid seisnud pikalt tühjana
•Vajavad remonti
Lisainfo:
•Kasutusotstarve: Sobib mitmeteks ärivõimalusteks, alustades kaubandusest kuni teeninduse ja muu äritegevuseni.
•Võimalused: Ideaalne neile, kes otsivad ruumikat äripinda või soovivad elu- ja äriruumid ühendada.
****
KINNISVARAEKSPERT tegutseb Eesti turul alates 1993. aastast. Meie Bürood asuvad Tallinnas ja Pärnus ning teenindame teid üle Eesti. Koostööpartnerite Nord Prime Capital ja Alliance Group UAB kaudu oleme esindatud ka Lätis ning Leedus.
Pakume maaklerteenust, hindamist ja kinnisvaraalast nõustamisteenust nii era- kui ka ärisektoris.
Kinnisvaraekspert teeb tihedat koostööd maailma suurimate kinnisvarafirmade hulka kuuluva ettevõttega Cushman & Wakefield. Meie koostöösidemed ulatuvad peale Balti riikide ja Põhjamaade pea kõikidesse maailmajagudesse.
Lisainfo ja teenuste tellimine:
Tallinnas: +372 *******
Pärnus: +372 *******
Rohkem infot leiad www.kinnisvaraekspert.ee
***














