Tallinn-Keila maantee ääres, aadressil Männiku tee 11, Kumna, on müüa äri- ja tootmishoone, mille suletud netopind 768 m². Olemas on luba ehituse laiendamiseks kuni 1031.4 m² mis on kantud ka ehitusregistrisse.
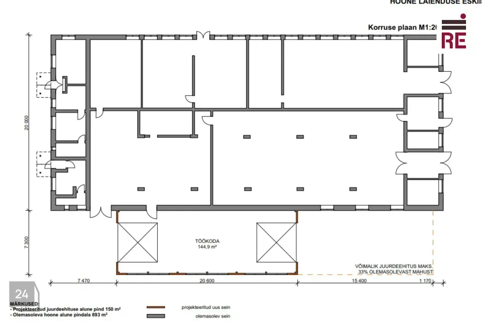
Hoones on olemas kontori- ja olmeblokk ning korralik töökoda ja laoruumid. Teisel korrusel asuvad lisaruumid, mida saab kasutada ladustamiseks.
Kinnistul on kehtiv detailplaneering ning lisaks olemasolevale hoonele on ehitusõigus veel 1432,3 m² suurusele hoonele.
Peakaitse 80A.
Vesi – puurkaevust.
Kanalisatsioon – lokaalne.
Lisaks on ka kõrvalkinnistu Männiku tee 13 mille suurus on 10 623 m². See kinnistu on tühi ning sellele kehtib detailplaneering ja mõtteline osa ligipääsu tagavast kinnistust Männiku tee L4
Müügihinnale lisandub käibemaks.
Lisainfo saamiseks võtke meiega ühendust – huvi korral lepime kokku põhjalikuma objekti tutvustamise.
RE Kinnisvara AS on tegutsenud 1995. aastast, olles üks vanimaid Eesti kinnisvaraettevõtteid.
Pakume kinnisvaraga seotud täisteenust:
- äri- ja elamispindade maaklerteenus
- kinnisvara hindamine laenu tagatiseks, sh kohtutele, finantsaruandluseks jne.
- äri- ja elukondlike arendusprojektide müügikorraldus
- kinnisvaraturu ja -projektide analüüs ja konsultatsioon
- kinnisvara seadustamine
Teeme koostööd kõigi Eesti pankade ja finantsasutustega. Meie eksperthinnangud on aktsepteeritud kõigi Eestis tegutsevate krediidiasutuste poolt.
Tutvu lähemalt re.ee.
RE Kinnisvara AS – PARIM OSA KINNISVARAST
Helista 66 88 666 või saada e-mail ***@***.ee
https://facebook.com/re.kinnisvara
https://www.instagram.com/rekinnisvara/
https://ee.linkedin.com/company/re-kinnisvara
Hoones on olemas kontori- ja olmeblokk ning korralik töökoda ja laoruumid. Teisel korrusel asuvad lisaruumid, mida saab kasutada ladustamiseks.
Kinnistul on kehtiv detailplaneering ning lisaks olemasolevale hoonele on ehitusõigus veel 1432,3 m² suurusele hoonele.
Peakaitse 80A.
Vesi – puurkaevust.
Kanalisatsioon – lokaalne.
Lisaks on ka kõrvalkinnistu Männiku tee 13 mille suurus on 10 623 m². See kinnistu on tühi ning sellele kehtib detailplaneering ja mõtteline osa ligipääsu tagavast kinnistust Männiku tee L4
Müügihinnale lisandub käibemaks.
Lisainfo saamiseks võtke meiega ühendust – huvi korral lepime kokku põhjalikuma objekti tutvustamise.
RE Kinnisvara AS on tegutsenud 1995. aastast, olles üks vanimaid Eesti kinnisvaraettevõtteid.
Pakume kinnisvaraga seotud täisteenust:
- äri- ja elamispindade maaklerteenus
- kinnisvara hindamine laenu tagatiseks, sh kohtutele, finantsaruandluseks jne.
- äri- ja elukondlike arendusprojektide müügikorraldus
- kinnisvaraturu ja -projektide analüüs ja konsultatsioon
- kinnisvara seadustamine
Teeme koostööd kõigi Eesti pankade ja finantsasutustega. Meie eksperthinnangud on aktsepteeritud kõigi Eestis tegutsevate krediidiasutuste poolt.
Tutvu lähemalt re.ee.
RE Kinnisvara AS – PARIM OSA KINNISVARAST
Helista 66 88 666 või saada e-mail ***@***.ee
https://facebook.com/re.kinnisvara
https://www.instagram.com/rekinnisvara/
https://ee.linkedin.com/company/re-kinnisvara






















