Продается часть дома с четырьмя комнатами, требующая ремонта, в районе Таммелинна, общей жилой площадью 64,1 м². Дополнительно имеются гараж площадью 18 м² и сарай площадью 20 м². Часть дома находится в долевой собственности между двумя владельцами. На жилье и участок имеется действующий порядок использования.
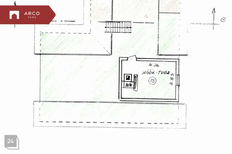
По планировке на первом этаже расположены прихожая, коридор, помещение для туалета, кухня и три комнаты, одна из которых проходная. На втором этаже находится одна комната и есть возможность обустройства дополнительных помещений. В настоящее время отопление осуществляется печным способом, на кухне имеется плита. Точное состояние отопительных приборов неизвестно.
Поблизости расположены магазин Veeriku Selver, детский сад Мaarjамыйса и школа Veeriku.
Если вы проявляете интерес к данной части дома, свяжитесь с нами, и мы сможем все осмотреть на месте.
По планировке на первом этаже расположены прихожая, коридор, помещение для туалета, кухня и три комнаты, одна из которых проходная. На втором этаже находится одна комната и есть возможность обустройства дополнительных помещений. В настоящее время отопление осуществляется печным способом, на кухне имеется плита. Точное состояние отопительных приборов неизвестно.
Поблизости расположены магазин Veeriku Selver, детский сад Мaarjамыйса и школа Veeriku.
Если вы проявляете интерес к данной части дома, свяжитесь с нами, и мы сможем все осмотреть на месте.






























