Pakkumises innovatiivse ehituslahendusega madalenergia elementmaja.
See hubane ja maitsekas heledates toonides eramu asub Tallinna linna vahetus läheduses, Nõmme piirini vaid 1km!
Kinnistu paikneb vaikses eramajade tsoonis.
MAJA ÜLDANDMED
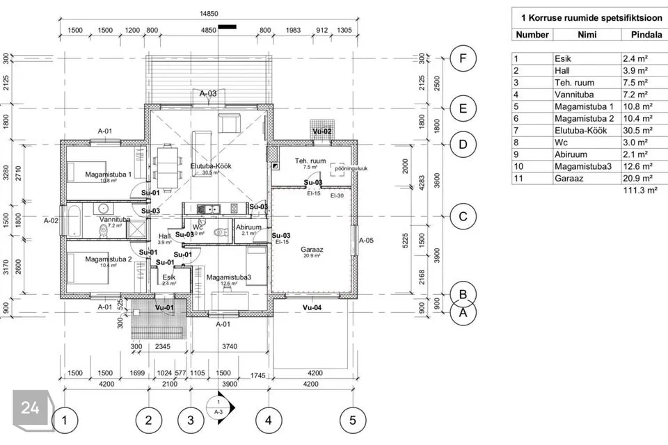
Üldpind 111.3 m²
Kõrgus 6,1 m
Korruseid 1
Tubasid 4
Garaaž 20,9 m²
Kinnistu 922 m²
Maja on ülimugava läbimõeldud planeeringuga.
3 magamistoal ei ole ühtegi ühist seina, avatud elutuba-köök 30,5 m², 2 wc-d, vannituba (dušši ja vanniga).
Köögi kõrval asub abiruum pesumasina ja kuivati jaoks, soe garaaž, tehnoruum 6,9 m² (pääsuga maja taha hoovi) ja suur terrass.
ERAMU
Konstruktiivne osa:
• Eramu välisseinte ehituselemendid ( http://www.timbet.eu/ ) valmistatakse kombineerituna betoon, puit ja polüuretaanvaht. Parima ehituskvaliteedi tagab tehase sisetingimuses toimuv tootmisprotsess. Polüuretaanvahu (PUR) näol soojustusega on tegemist hetkel parima turul olev soojusisolatsiooni materialiga, mis annab pasiivmajale omase U-väärtuse=0,09W/m²K.
• Katuslagi on ehitatud puitkandekonstruktsioonil ja soojustatud puistevillaga (60cm).
• Katus on rajatud puit fermidele ja kaetud Ruukki Classic valtsprofiil terasplekiga.
• Paigaldatud vihmaveesüsteem.
• Eramule on paigaldatud kolmekordse klaaspaketiga PVC aknad (väljast toonitud kuldne tamm), terrassiuksed ja klaasavaga soojustatud välisuks.
• Välisviimistluseks on kasutatud puitlaudist
• Viimistletud puitkonstruktsioonile rajatud terrass, millel on valguskatus, terrassi põrandaks on sügavimmutatud puitlaudis.
• Küttelahendusena on paigaldatud efektiivne NIBE 8kw õhk-vesi soojuspump, mis soojendab põrandakütte veetorustiku ja tarbevee soovitud temperatuurini.
• Majas on soojustagastusega sundventilatsioon. Elutoas konditsioneer.
• Garaazile ja tehnilisele ruumile on paigaldatud tulekindlad vaheuksed.
• Garaazil on lamell-tüüpi tõstuks, mis on varustatud elektrilise ajamiga.
Siseviimistlus:
• Seinte siseviimistluseks on värvitud seinad heledates toonides
• Kardinad on Kangas & Nööp eritellimusel
• Eramu tubade põrandad on kaetud naturaalse tammepuitparketiga ja niisked ruumid heledal toonil keraamilise põrandaplaadiga
KÖÖK-ELUTUBA
• Viigardi mööblisalongi eritellimusköök. Nerostein kvartsist tasapind ja köögitagus
• Juhitavad kardinad elutoas
• Juhitavad rulood (garderoob, kontor)
• Juhitav konditsioneeri kontroller
• Apple HomeKit keskseade
TURVASÜSTEEM
• Ajax kaugelt juhitav tark turvassüsteem toas
• Targad suitsuandurid
• Kontaktisensorid
• Terrassivalve 1x
• Liikumisandurid 4x. Sõrmistikud 2x
• SOS nupp 2x
• Perimeetrivalve 2x
KAAMERAD
• Nest välikaamerad 2x
• Nest sisekaamera 2
• Unifi Protect Uksekell 2x (väraval ja uksel)
KINNISTU
• Aeda paigaldatud sissesõidu teele ja ümber maja Unikivi sillutis.
• Kogu kinnistu kaunilt haljastatud ning õhtuhämaruses kogu oma aed on ka valgustatud
• Philips Hue targad välivalgustid 21x
• Philips Hue liikumisandurid 2x
• Targad räästakastivalgustid
• Gardena maaalune kastmissüsteem, muru ja peenrad (13 kastikut)
• Mobiilist juhitav kastmine 7 tsooni + 2 niiskusandurit
• Husqvarna Automower 315x robotniiduk
ÜMBRUSKOND
Kinnistud asuvad vaikses ja turvalises Nõmmeserva elamurajoonis. Kõik teed on asfalteeritud ja paigaldatud tänavavalgustus.
Kaugus Tallinna (Nõmme) piirist 1 km, Laagri keskusesse 1,7 km.
Laagris asuvad kauplused, apteek, perearstikeskus, raamatukogu, 4 lasteaeda, Laagri Kool ja spordikompleks.
Bussipeatus 1.2 km
Nõlvaku lasteaed 0,6 km
Laagri kooli 1,7 km
Kinnistute lähedal Pääsküla raba koos terviseradadega jalutuskäikudeks ja sportimiseks, nii suvel kui talvel.
Maja müüakse ideaalse paketina, sisutatult enamuse pildil oleva mööbliga.
Ning varustatud nii kodutehnikaga, kui ka kõige nõudlikumale maitsele vastava kvaliteetse aiatehnikaga ja- tööriistadega.
Majale on väljastatud kasutusluba!
Tõsise huvi korral küsige täpset infot maaklerilt.
Suurepärane elukoht inimestele, kes hindavad loodust ja linna lähedust!
JAGA MINU KONTAKTI KÕIGILE, KES VAJAVAD KINNISVARANÕU!
- - - - - - - - - -
Telli hindamine UUS MAA Kinnisvarabüroolt ***@***.ee
ning saad:
- Eksperthinnangu kuni 20% soodsamalt kui võtad koduga seotud laenu Swedbankist
- Pankadest parimad kodulaenutingimused
- Kiireima, kvaliteetseima ning usaldusväärseima hindamisteenuse Eestis
UUS MAA KINNISVARABÜROO EKSPERTHINNANGUID AKTSEPTEERIVAD KÕIK FINANTSASUTUSED.
- - - - - - - - - -
Liitu Uus Maa uudiskirjaga ja saa homset kinnisvarainfot juba täna!
https://www.uusmaa.ee/uudiskirjagaliitumine/
- - - - - - - - - -
Kodu aitab osta Swedbank.
Pakkumise saamiseks kasuta koodi UUSMAA ja Sind teenindatakse eelisjärjekorras.
Võtame ühendust 1 tööpäeva jooksul.
Uus Maa kliendile soodsam lepingutasu. Küsi täpsemat infot maaklerilt.
Finantsteenuseid pakub Swedbank AS. Tutvu tingimustega, pea nõu.
See hubane ja maitsekas heledates toonides eramu asub Tallinna linna vahetus läheduses, Nõmme piirini vaid 1km!
Kinnistu paikneb vaikses eramajade tsoonis.
MAJA ÜLDANDMED
Üldpind 111.3 m²
Kõrgus 6,1 m
Korruseid 1
Tubasid 4
Garaaž 20,9 m²
Kinnistu 922 m²
Maja on ülimugava läbimõeldud planeeringuga.
3 magamistoal ei ole ühtegi ühist seina, avatud elutuba-köök 30,5 m², 2 wc-d, vannituba (dušši ja vanniga).
Köögi kõrval asub abiruum pesumasina ja kuivati jaoks, soe garaaž, tehnoruum 6,9 m² (pääsuga maja taha hoovi) ja suur terrass.
ERAMU
Konstruktiivne osa:
• Eramu välisseinte ehituselemendid ( http://www.timbet.eu/ ) valmistatakse kombineerituna betoon, puit ja polüuretaanvaht. Parima ehituskvaliteedi tagab tehase sisetingimuses toimuv tootmisprotsess. Polüuretaanvahu (PUR) näol soojustusega on tegemist hetkel parima turul olev soojusisolatsiooni materialiga, mis annab pasiivmajale omase U-väärtuse=0,09W/m²K.
• Katuslagi on ehitatud puitkandekonstruktsioonil ja soojustatud puistevillaga (60cm).
• Katus on rajatud puit fermidele ja kaetud Ruukki Classic valtsprofiil terasplekiga.
• Paigaldatud vihmaveesüsteem.
• Eramule on paigaldatud kolmekordse klaaspaketiga PVC aknad (väljast toonitud kuldne tamm), terrassiuksed ja klaasavaga soojustatud välisuks.
• Välisviimistluseks on kasutatud puitlaudist
• Viimistletud puitkonstruktsioonile rajatud terrass, millel on valguskatus, terrassi põrandaks on sügavimmutatud puitlaudis.
• Küttelahendusena on paigaldatud efektiivne NIBE 8kw õhk-vesi soojuspump, mis soojendab põrandakütte veetorustiku ja tarbevee soovitud temperatuurini.
• Majas on soojustagastusega sundventilatsioon. Elutoas konditsioneer.
• Garaazile ja tehnilisele ruumile on paigaldatud tulekindlad vaheuksed.
• Garaazil on lamell-tüüpi tõstuks, mis on varustatud elektrilise ajamiga.
Siseviimistlus:
• Seinte siseviimistluseks on värvitud seinad heledates toonides
• Kardinad on Kangas & Nööp eritellimusel
• Eramu tubade põrandad on kaetud naturaalse tammepuitparketiga ja niisked ruumid heledal toonil keraamilise põrandaplaadiga
KÖÖK-ELUTUBA
• Viigardi mööblisalongi eritellimusköök. Nerostein kvartsist tasapind ja köögitagus
• Juhitavad kardinad elutoas
• Juhitavad rulood (garderoob, kontor)
• Juhitav konditsioneeri kontroller
• Apple HomeKit keskseade
TURVASÜSTEEM
• Ajax kaugelt juhitav tark turvassüsteem toas
• Targad suitsuandurid
• Kontaktisensorid
• Terrassivalve 1x
• Liikumisandurid 4x. Sõrmistikud 2x
• SOS nupp 2x
• Perimeetrivalve 2x
KAAMERAD
• Nest välikaamerad 2x
• Nest sisekaamera 2
• Unifi Protect Uksekell 2x (väraval ja uksel)
KINNISTU
• Aeda paigaldatud sissesõidu teele ja ümber maja Unikivi sillutis.
• Kogu kinnistu kaunilt haljastatud ning õhtuhämaruses kogu oma aed on ka valgustatud
• Philips Hue targad välivalgustid 21x
• Philips Hue liikumisandurid 2x
• Targad räästakastivalgustid
• Gardena maaalune kastmissüsteem, muru ja peenrad (13 kastikut)
• Mobiilist juhitav kastmine 7 tsooni + 2 niiskusandurit
• Husqvarna Automower 315x robotniiduk
ÜMBRUSKOND
Kinnistud asuvad vaikses ja turvalises Nõmmeserva elamurajoonis. Kõik teed on asfalteeritud ja paigaldatud tänavavalgustus.
Kaugus Tallinna (Nõmme) piirist 1 km, Laagri keskusesse 1,7 km.
Laagris asuvad kauplused, apteek, perearstikeskus, raamatukogu, 4 lasteaeda, Laagri Kool ja spordikompleks.
Bussipeatus 1.2 km
Nõlvaku lasteaed 0,6 km
Laagri kooli 1,7 km
Kinnistute lähedal Pääsküla raba koos terviseradadega jalutuskäikudeks ja sportimiseks, nii suvel kui talvel.
Maja müüakse ideaalse paketina, sisutatult enamuse pildil oleva mööbliga.
Ning varustatud nii kodutehnikaga, kui ka kõige nõudlikumale maitsele vastava kvaliteetse aiatehnikaga ja- tööriistadega.
Majale on väljastatud kasutusluba!
Tõsise huvi korral küsige täpset infot maaklerilt.
Suurepärane elukoht inimestele, kes hindavad loodust ja linna lähedust!
JAGA MINU KONTAKTI KÕIGILE, KES VAJAVAD KINNISVARANÕU!
- - - - - - - - - -
Telli hindamine UUS MAA Kinnisvarabüroolt ***@***.ee
ning saad:
- Eksperthinnangu kuni 20% soodsamalt kui võtad koduga seotud laenu Swedbankist
- Pankadest parimad kodulaenutingimused
- Kiireima, kvaliteetseima ning usaldusväärseima hindamisteenuse Eestis
UUS MAA KINNISVARABÜROO EKSPERTHINNANGUID AKTSEPTEERIVAD KÕIK FINANTSASUTUSED.
- - - - - - - - - -
Liitu Uus Maa uudiskirjaga ja saa homset kinnisvarainfot juba täna!
https://www.uusmaa.ee/uudiskirjagaliitumine/
- - - - - - - - - -
Kodu aitab osta Swedbank.
Pakkumise saamiseks kasuta koodi UUSMAA ja Sind teenindatakse eelisjärjekorras.
Võtame ühendust 1 tööpäeva jooksul.
Uus Maa kliendile soodsam lepingutasu. Küsi täpsemat infot maaklerilt.
Finantsteenuseid pakub Swedbank AS. Tutvu tingimustega, pea nõu.












































