OLEMAS HINDAMISAKT seisuga september 2024 seisuga väärtusele 287 000€.
Tere tulemast avastama oma uut unistuste kodu Palmses, vaid 80 km kaugusel Tallinnast. Tunni aja autosõidu kaugusel mööda Tallinn-Narva nelja realist kiiret maanteed. See värske ja kõrgkvaliteetse viimistlusega maja pakub tõelist põhjamaist ehituskvaliteeti. Avar ja kaasaegne neljatoaline Skandinaavia stiilis maja Palmse külas, suurel krundil, ideaalne rahuliku elustiili ja tulevikutegijate kasvatamiseks turvalises keskkonnas. Elamu pakub kvaliteetset elukeskkonda, moodsaid mugavusi ning lähedust nii haridusasutustele kui ka kultuurisündmustele.
Suurepärane võimalus kaugtööks inspireerivas keskkonnas. Lapsed saavad nautida lähedal asuvat lasteaeda kus ka kõige väiksemad sõimerühma ealised on oodatud. Täiuslik valik neile, kes otsivad kvaliteeti ja stiili igas detailis. Tule ja armu oma uude kodu Palmses, kus luksus kohtub loodusega!
ELAMU
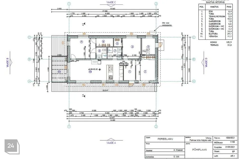
Suurel kinnistul asub august 2022 valminud uus elamu, ehitusaluse pinnaga 130,2m², millest eluruumi pind 105,9m². Maja on kolme magamistoaga, millest kahel magamistoal on oma garderoob. Pea magamistuba on oma dušši-tualeti ja mahuka garderoobiga. Elutuba avatud köögiga on mõnusa seltskondliku suhtlemist / koos kokkamist võimaldava köögisaare alaga. Köögimööblis on normaalmõõdus külmik, indukstioon pliit pliidi sisese õhupuhastajaga, ahi ja nõudepesumasin. Elutoas on paigaldatud puukütte kamin. Elutoa kõrval lõuna ja lääne suunaline 33,m² terrass. Terassile pääs puitalumiinium lükandliug avaneva akna kaudu.
Majas on kolm magamistuba, avar elutuba avatud köögiga, millele lisab funktsionaalsust köögisaar. Elutuba on varustatud kaminaga ja suurte akendega, mis avanevad lõuna ja lääne suunas asuvale 33 m² terrassile.
Ehitusala võimaldab ka kinnistule lisaks ehitada kõrvalhoone. Kuhu on hea võimalus teha saun ja garaaž.
KOMMUNIKATSIOONID
Majas on ökonoomne õhk-vesi küte, põrandas veekandjal torud, B energiaklass. Majal on madala U arvuga (Uw=0.90) puit-alumiinium aknad. Kõik puit-alumiinium aknad on avatavad kahte asendisse mugavaks tuulutamiseks ja pesemiseks. Olemas signalisatsioon. Krundil on oma reoveepuhasti. Vesi tuleb kuue kinnistu kohta ühisest puurkaevust. Olemas on valguskaabel. Heaks mobiilileviks on ka piirkonnas oma mobiilimast.
VALDUSE ÜLEANDMINE
Maja on valmis. Majale on väljastatud kasutusluba jaanuar 2023. Maja antakse üle kohe notaris. Pildid on reaalsed, ja kõik mis pildil jääb ostjale, ja sisaldub ostu-müügi hinnas.
Müügihind sisaldab käibemaksu.
GARANTII
Garantii 2 aastat valduse saamisest.
ÜMBRUSKOND
Palmses on hea võimalus tervisespordiks ja koeraga jalutamiseks. Majast 1,5km kaugusel paikneb Võsu Kooli Võsupere lasteaiarühm, ja raamatukogu. Majast mõne minuti kaugusel asub Võsu Kooli Võsupere lasteaiarühm ja raamatukogu. Lähimad poed leiate Võsu keskusest, adrinast või Loksalt. Samuti on võimalik kasutada e-Selveri üle-eestilist kaubatoimetamisteenust.
Haridusasutused nagu Võsu Kool, Vihasoo Lasteaed-Algkool, Loksa Gümnaasium ja Kadrina Keskkool asuvad samuti läheduses. Võsul on saadaval ka põhilised teenused nagu apteek, postkontor ja tankla.
Kultuurisündmustest osa saamiseks on võimalik külastada Võhma Seltsimaja, Võsu rannaklubi, Joaveski rahvamaja, Läsna Rahvamaja või Käsmu rahvamaja, mis kõik asuvad lähedal.
Tere tulemast tutvuma enda uue koduga.
Tere tulemast avastama oma uut unistuste kodu Palmses, vaid 80 km kaugusel Tallinnast. Tunni aja autosõidu kaugusel mööda Tallinn-Narva nelja realist kiiret maanteed. See värske ja kõrgkvaliteetse viimistlusega maja pakub tõelist põhjamaist ehituskvaliteeti. Avar ja kaasaegne neljatoaline Skandinaavia stiilis maja Palmse külas, suurel krundil, ideaalne rahuliku elustiili ja tulevikutegijate kasvatamiseks turvalises keskkonnas. Elamu pakub kvaliteetset elukeskkonda, moodsaid mugavusi ning lähedust nii haridusasutustele kui ka kultuurisündmustele.
Suurepärane võimalus kaugtööks inspireerivas keskkonnas. Lapsed saavad nautida lähedal asuvat lasteaeda kus ka kõige väiksemad sõimerühma ealised on oodatud. Täiuslik valik neile, kes otsivad kvaliteeti ja stiili igas detailis. Tule ja armu oma uude kodu Palmses, kus luksus kohtub loodusega!
ELAMU
Suurel kinnistul asub august 2022 valminud uus elamu, ehitusaluse pinnaga 130,2m², millest eluruumi pind 105,9m². Maja on kolme magamistoaga, millest kahel magamistoal on oma garderoob. Pea magamistuba on oma dušši-tualeti ja mahuka garderoobiga. Elutuba avatud köögiga on mõnusa seltskondliku suhtlemist / koos kokkamist võimaldava köögisaare alaga. Köögimööblis on normaalmõõdus külmik, indukstioon pliit pliidi sisese õhupuhastajaga, ahi ja nõudepesumasin. Elutoas on paigaldatud puukütte kamin. Elutoa kõrval lõuna ja lääne suunaline 33,m² terrass. Terassile pääs puitalumiinium lükandliug avaneva akna kaudu.
Majas on kolm magamistuba, avar elutuba avatud köögiga, millele lisab funktsionaalsust köögisaar. Elutuba on varustatud kaminaga ja suurte akendega, mis avanevad lõuna ja lääne suunas asuvale 33 m² terrassile.
Ehitusala võimaldab ka kinnistule lisaks ehitada kõrvalhoone. Kuhu on hea võimalus teha saun ja garaaž.
KOMMUNIKATSIOONID
Majas on ökonoomne õhk-vesi küte, põrandas veekandjal torud, B energiaklass. Majal on madala U arvuga (Uw=0.90) puit-alumiinium aknad. Kõik puit-alumiinium aknad on avatavad kahte asendisse mugavaks tuulutamiseks ja pesemiseks. Olemas signalisatsioon. Krundil on oma reoveepuhasti. Vesi tuleb kuue kinnistu kohta ühisest puurkaevust. Olemas on valguskaabel. Heaks mobiilileviks on ka piirkonnas oma mobiilimast.
VALDUSE ÜLEANDMINE
Maja on valmis. Majale on väljastatud kasutusluba jaanuar 2023. Maja antakse üle kohe notaris. Pildid on reaalsed, ja kõik mis pildil jääb ostjale, ja sisaldub ostu-müügi hinnas.
Müügihind sisaldab käibemaksu.
GARANTII
Garantii 2 aastat valduse saamisest.
ÜMBRUSKOND
Palmses on hea võimalus tervisespordiks ja koeraga jalutamiseks. Majast 1,5km kaugusel paikneb Võsu Kooli Võsupere lasteaiarühm, ja raamatukogu. Majast mõne minuti kaugusel asub Võsu Kooli Võsupere lasteaiarühm ja raamatukogu. Lähimad poed leiate Võsu keskusest, adrinast või Loksalt. Samuti on võimalik kasutada e-Selveri üle-eestilist kaubatoimetamisteenust.
Haridusasutused nagu Võsu Kool, Vihasoo Lasteaed-Algkool, Loksa Gümnaasium ja Kadrina Keskkool asuvad samuti läheduses. Võsul on saadaval ka põhilised teenused nagu apteek, postkontor ja tankla.
Kultuurisündmustest osa saamiseks on võimalik külastada Võhma Seltsimaja, Võsu rannaklubi, Joaveski rahvamaja, Läsna Rahvamaja või Käsmu rahvamaja, mis kõik asuvad lähedal.
Tere tulemast tutvuma enda uue koduga.

























