MÜÜGILE TULI 5 TOALINE KÕRGETE LAGEDEGA MAJA KEHRAS!!!
MAJA
Kõrgete lagedega (3m) maja rahulikus ja rohelises eramute piirkonnas. Hubane ja valgusküllane nelja magamistoaga pereelamu. Maja valmis 2023. aastal. Maja on ehitatud avara planeeringuga, maja kõrvale ja taha rajatud terrass suurusega 33 m2 mis on kaetud süvaimmutatud laudisega.
Maja koosseisu kuulub: Esik, 4 magamistuba, WC-vannituba sauna ja duššiga, külaliste WC, tehnoruuruum mida saab kasutada ka panipaigana, elutuba-köök, terrass. Maja ümbrus on korrastatud ja haljastus tehtud.
VENTILATSIOON
Hoonel on soojusvahetiga ventilatsioonisüsteem, kus on väljatõmbed niisketest ruumidest ja sissepuhked eluruumidest. Seadme enda asukoht on tehnoruumis. Köögi kubu ei ole ühendatud ventilatsiooni süsteemi, vaid on eraldiseisev süsteem.
KÜTTESÜSTEEM
Ökonoomne ja kaasaegne vesipõrandaküte, maasoojuspumba baasil, mis tagab majale madalad küttekulud.
KONSTRUKTSIOONID JA MATERJALID
Kivikarkassmaja on rajatud madalvundamendile. Konstruktsioonid: kivikarkass, välisviimistlus: krohv ja kvaliteetne värv.
SISEVIIMISTLUS
Majas on kasutatud naturaalseid materjale. Põrandaid katab naturaalne ühelipiline tammeparkett. Tubades on kasutatud heledaid värvitoone. Koridori põrandat ja sanitaarruume katab keraamiline plaat.
Kõik siseuksed Põltsamaa uksetehasest.
KOMMUNIKATSIOONID
Majale on tehtud elektriliitumine, fiiberoptiline interneti ühendus, samuti tsentraalse vee- ja kanalisatsioonisüsteemiga.
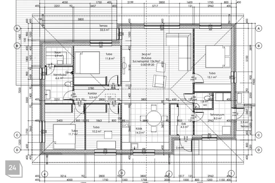
PLANEERING
Elamu on ühe korruseline ristküliku-kujulise põhjaplaaniga viilkatusega hoone. Sissekäik on projekteeritud juurdepääsuga tänava poolt. Peasissepääsust pääseb esikusse, kust edasi köök-elutuppa, nelja magamistuppa ja vannituppa ja sauna. Pääs terrassile elutoast, ühest magamistoast ja saunast. Tehnoruumi pääseb õuest ja esikust.
KINNISTU
Krundi pind peale ehitustööd on haljastatud muruga, lisaks rajatud sillutiskivi tänavalt eramu välisukse juurde kuhu mahub parkima kuni 4 autot. Maja kõrvale on võimalik ehitada lisaks garaaž või kõrvalhoone.
ASUKOHT
Ideaalne asukoht lastega peredele. Paikneb eemal suurematest teedest, mistõttu on kinnistul vaikne ja rahulik. Lähedal asuvad Kehra keskus, lasteaed ja kool. Kehra on logistiliselt heas asukohas, Narva maantee tagab kiire ühenduse Tallinnaga. Pealinna 35-minutiline autosõit, Tallinna kesklinna 41km. Vajadusel saab Tallinnasse rongiga, Kehra rongipeatus asub kinnistust 14 minutilise jalutuskäigu kaugusel.
Lähim lasteaed:
1.1 km Anija Valla Lasteaiad
Lähim kool:
890 m Kehra Gümnaasium
ÜMBRUS
Kogu piirkonda uuendatakse iga aastaga ja lisatakse lisaväärtusi, antud piirkond on muutunud populaarseks just noorperede seas. Alevikus asuvad gümnaasium, lasteaed, spordikeskus discgolf park ja kauplused. Lisaväärtust annavad jalgpalli-kergejõustikustaadion ja mitmed muud sportimise võimalused.
Kui tunnete, et see maja võib olla koduks teie perele siis helistage ning lepime sobiva aja vaatamiseks!
MAJA
Kõrgete lagedega (3m) maja rahulikus ja rohelises eramute piirkonnas. Hubane ja valgusküllane nelja magamistoaga pereelamu. Maja valmis 2023. aastal. Maja on ehitatud avara planeeringuga, maja kõrvale ja taha rajatud terrass suurusega 33 m2 mis on kaetud süvaimmutatud laudisega.
Maja koosseisu kuulub: Esik, 4 magamistuba, WC-vannituba sauna ja duššiga, külaliste WC, tehnoruuruum mida saab kasutada ka panipaigana, elutuba-köök, terrass. Maja ümbrus on korrastatud ja haljastus tehtud.
VENTILATSIOON
Hoonel on soojusvahetiga ventilatsioonisüsteem, kus on väljatõmbed niisketest ruumidest ja sissepuhked eluruumidest. Seadme enda asukoht on tehnoruumis. Köögi kubu ei ole ühendatud ventilatsiooni süsteemi, vaid on eraldiseisev süsteem.
KÜTTESÜSTEEM
Ökonoomne ja kaasaegne vesipõrandaküte, maasoojuspumba baasil, mis tagab majale madalad küttekulud.
KONSTRUKTSIOONID JA MATERJALID
Kivikarkassmaja on rajatud madalvundamendile. Konstruktsioonid: kivikarkass, välisviimistlus: krohv ja kvaliteetne värv.
SISEVIIMISTLUS
Majas on kasutatud naturaalseid materjale. Põrandaid katab naturaalne ühelipiline tammeparkett. Tubades on kasutatud heledaid värvitoone. Koridori põrandat ja sanitaarruume katab keraamiline plaat.
Kõik siseuksed Põltsamaa uksetehasest.
KOMMUNIKATSIOONID
Majale on tehtud elektriliitumine, fiiberoptiline interneti ühendus, samuti tsentraalse vee- ja kanalisatsioonisüsteemiga.
PLANEERING
Elamu on ühe korruseline ristküliku-kujulise põhjaplaaniga viilkatusega hoone. Sissekäik on projekteeritud juurdepääsuga tänava poolt. Peasissepääsust pääseb esikusse, kust edasi köök-elutuppa, nelja magamistuppa ja vannituppa ja sauna. Pääs terrassile elutoast, ühest magamistoast ja saunast. Tehnoruumi pääseb õuest ja esikust.
KINNISTU
Krundi pind peale ehitustööd on haljastatud muruga, lisaks rajatud sillutiskivi tänavalt eramu välisukse juurde kuhu mahub parkima kuni 4 autot. Maja kõrvale on võimalik ehitada lisaks garaaž või kõrvalhoone.
ASUKOHT
Ideaalne asukoht lastega peredele. Paikneb eemal suurematest teedest, mistõttu on kinnistul vaikne ja rahulik. Lähedal asuvad Kehra keskus, lasteaed ja kool. Kehra on logistiliselt heas asukohas, Narva maantee tagab kiire ühenduse Tallinnaga. Pealinna 35-minutiline autosõit, Tallinna kesklinna 41km. Vajadusel saab Tallinnasse rongiga, Kehra rongipeatus asub kinnistust 14 minutilise jalutuskäigu kaugusel.
Lähim lasteaed:
1.1 km Anija Valla Lasteaiad
Lähim kool:
890 m Kehra Gümnaasium
ÜMBRUS
Kogu piirkonda uuendatakse iga aastaga ja lisatakse lisaväärtusi, antud piirkond on muutunud populaarseks just noorperede seas. Alevikus asuvad gümnaasium, lasteaed, spordikeskus discgolf park ja kauplused. Lisaväärtust annavad jalgpalli-kergejõustikustaadion ja mitmed muud sportimise võimalused.
Kui tunnete, et see maja võib olla koduks teie perele siis helistage ning lepime sobiva aja vaatamiseks!









































