Tutvustame teile tuliuut üksikelamut ja abihoonet (kuur/autode varjualune) Viimsi ühes hinnatuimas piirkonnas. Kasutusluba väljastatud 2024. aasta lõpus. Projekti autor on tunnustatud arhitekt Ülle Maiste, kes on loonud kodu, mis on disainitud spetsiaalselt pere vajadusi silmas pidades.
Kinnistut kaunistab maaliline karpkaladega tiik – ideaalne koht rahu ja ilu nautimiseks.
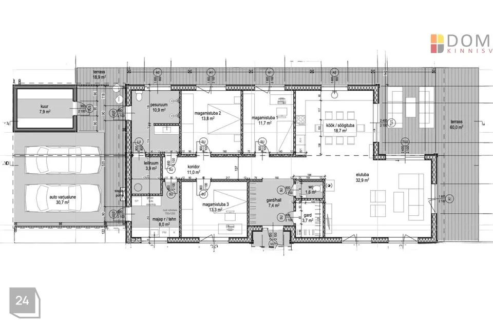
Maja ja planeering
Eramu paikneb 1344 m² suurusel kinnistul ning selle ehitusalune pind on 203 m².
Köetav pind: 136,9 m² (eluruumi pind: 128,9 m²).
Abihoone ehitusalune pind: 56,3 m² (sh kuur: 7,9 m², elekter olemas).
Maja lõuna- ja lääneküljel avarad terrassid.
Krunti ümbritseb kolmest küljest aed, auto- ja jalgvärav.
Kodu südameks on 51,6 m² suurune avar ja valgusküllane kaminaga elutuba koos köögiga, kust avaneb valgusküllane vaade läbi kolmest küljest paiknevate akende.
Lisaks:
3 magamistuba, igast toast pääs terrassile või õue.
Avar pesuruum ja saun.
Tehnoruum ja majapidamisruum.
Esik koos garderoobiga ning eraldi WC.
Tehnilised andmed ja energiatõhusus
Kütteallikas: õhk-vesi soojuspump vesipõrandaküttega (iga toa temperatuur eraldi reguleeritav).
Täiendav õhksoojuspump elutoas jahutamiseks ning hubane kamin.
Põrandakatted: kiviplaadid esikus ja elutoas-köögis; tubades kulumis- , kriimustus- ja niiskuskindel LVT vinüülparkett.
Soojustagastusega ventilatsioon tagab energiasäästu ja värske õhu igal ajal.
Asukoht ja elukeskkond
Ideaalne asukoht peredele, kes hindavad mugavust ja looduslähedust:
Püünsi Kool – ca 1,5 km.
Rohuneeme kauplus – ca 1 km.
Bussipeatus – vaid 400 m (liiguvad nii linnaliinid kui ka kohalikud siseliinid).
See on ideaalne perekodu, mis ühendab kauni disaini, energiasäästliku tehnoloogia ja rahuliku elukeskkonna. Avar planeering ja kvaliteetsed materjalid teevad sellest kodust unistuste elukoha igale perele.
Võta ühendust ja tule vaatama oma tulevast kodu!
Pangad pakuvad Domus Kinnisvara klientidele eluasemelaenu lepingutasu soodustusi. Küsi lisainfot Domus Kinnisvara maaklerilt või hindajalt.
Müü ja hinda meiega! Teeme kinnisvara müügi Sinu jaoks sujuvaks ja pingevabaks.
Kinnistut kaunistab maaliline karpkaladega tiik – ideaalne koht rahu ja ilu nautimiseks.
Maja ja planeering
Eramu paikneb 1344 m² suurusel kinnistul ning selle ehitusalune pind on 203 m².
Köetav pind: 136,9 m² (eluruumi pind: 128,9 m²).
Abihoone ehitusalune pind: 56,3 m² (sh kuur: 7,9 m², elekter olemas).
Maja lõuna- ja lääneküljel avarad terrassid.
Krunti ümbritseb kolmest küljest aed, auto- ja jalgvärav.
Kodu südameks on 51,6 m² suurune avar ja valgusküllane kaminaga elutuba koos köögiga, kust avaneb valgusküllane vaade läbi kolmest küljest paiknevate akende.
Lisaks:
3 magamistuba, igast toast pääs terrassile või õue.
Avar pesuruum ja saun.
Tehnoruum ja majapidamisruum.
Esik koos garderoobiga ning eraldi WC.
Tehnilised andmed ja energiatõhusus
Kütteallikas: õhk-vesi soojuspump vesipõrandaküttega (iga toa temperatuur eraldi reguleeritav).
Täiendav õhksoojuspump elutoas jahutamiseks ning hubane kamin.
Põrandakatted: kiviplaadid esikus ja elutoas-köögis; tubades kulumis- , kriimustus- ja niiskuskindel LVT vinüülparkett.
Soojustagastusega ventilatsioon tagab energiasäästu ja värske õhu igal ajal.
Asukoht ja elukeskkond
Ideaalne asukoht peredele, kes hindavad mugavust ja looduslähedust:
Püünsi Kool – ca 1,5 km.
Rohuneeme kauplus – ca 1 km.
Bussipeatus – vaid 400 m (liiguvad nii linnaliinid kui ka kohalikud siseliinid).
See on ideaalne perekodu, mis ühendab kauni disaini, energiasäästliku tehnoloogia ja rahuliku elukeskkonna. Avar planeering ja kvaliteetsed materjalid teevad sellest kodust unistuste elukoha igale perele.
Võta ühendust ja tule vaatama oma tulevast kodu!
Pangad pakuvad Domus Kinnisvara klientidele eluasemelaenu lepingutasu soodustusi. Küsi lisainfot Domus Kinnisvara maaklerilt või hindajalt.
Müü ja hinda meiega! Teeme kinnisvara müügi Sinu jaoks sujuvaks ja pingevabaks.



















































