Kui Sa hindad privaatsust, aegumatut disaini ja kvaliteeti, siis see pakkumine on just Sulle. Kakumäe ranna lähedal ja Tiskre oja kaldal on müüki tulnud funkstiilis monoliitbetoonist eramu.
Maja asukoht on kõigest pooleteise kilomeetri kaugusel Kakumäe rannast. Eramu paistab silma oma ainulaadse arhitektuurse lähenemise poolest, mis peegeldab modernsuse ja luksuse täiuslikku sümbioosi. Eramu asetseb privaatsel 3 800 m² suurusel kinnistul, pakkudes privaatsust, vaikust ja looduslähedast elukeskkonda, olles samal ajal piisavalt lähedal nii kesklinnast kui kõigest, mis mugavaks eluks vajalik.
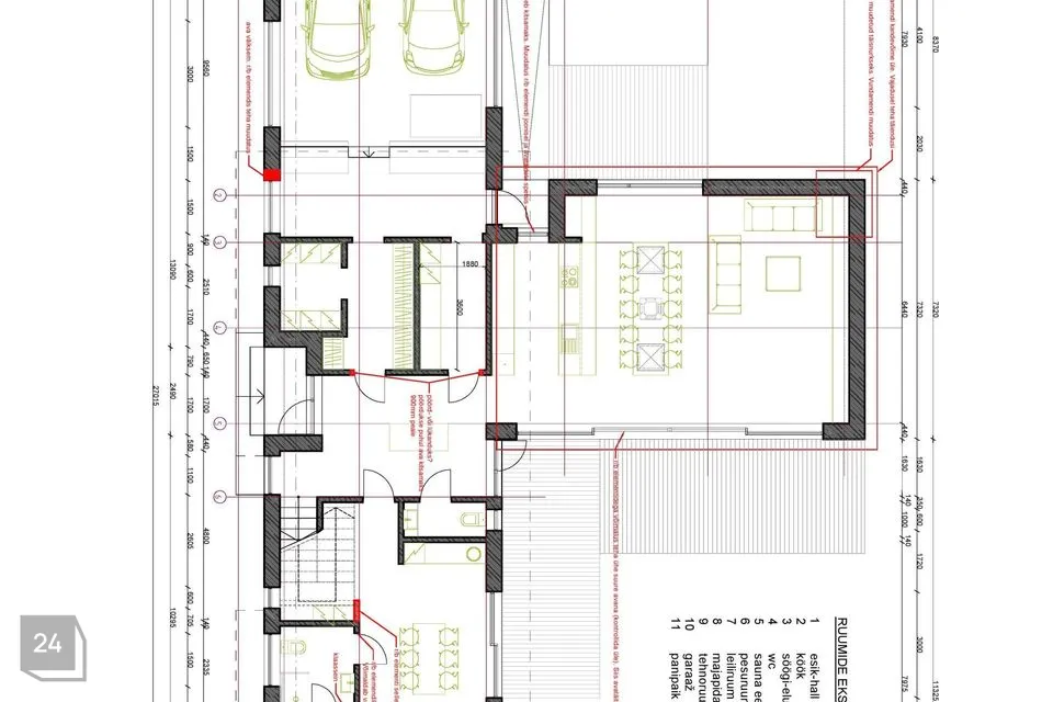
PLANEERING
Juba sisse astudes tervitab sind valgusküllane fuajee, kust edasi pääseb maja erinevatesse tiibadesse. Maja esimesel korrusel paikneb avar elutuba koos köögi-ja söögitoa osaga, luksuslik sauna- ja lõõgastusala, mahukas walk-in garderoob, praktiline majapidamisruum, tehnoruum ning garaaž kahele autole.
Maast laeni aknad täidavad ruumid loomuliku valgusega ning võimaldavad välisel loodusel loomulikul viisil olla osa maja sisemusest. Elutoa sisehoovipoolne osa avaneb privaatsele terrassile – ideaalne paik suviseks olemiseks või õhtusöökideks sõpradega. Samuti pääseb privaatsele terrassile saunast.
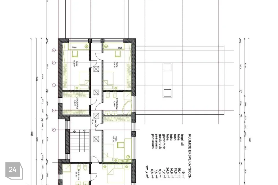
Maja teisel korrusel on põhimagamistuba koos walk-in garderoobi ja privaatse vannitoaga. Lisaks on veel 3 magamistuba, suur vannituba ning praktiline panipaik/garderoob. Maja on kavandatud perele, kes hindab ruumi ja privaatsust.
Fotodel on sisearhitekti nägemus siseviimistlusest. Sarnast projekti on võimalik tellida. Maja müüakse möbleerimata kujul.
SISEVIIMISTLUS
Kogu majas on kasutatud ainult looduslikke, kvaliteetseid materjale: looduslik kivi, klaas, betoon ja väärispuit. Kõik see loob ajatu tunde, mis ei allu moevooludele. Uuel omanikul on võimalus valida siseuksed, põrandakatted ja plaadid – et saaksid oma tulevase kodu just enda maitse järgi sisustada.
TEHNOSÜSTEEMID
Tehnoloogiline nutikus igas detailis
• Maaküte – energiasäästlik ja stabiilne sisekliima
• Soojustagastusega ventilatsioon – puhas õhk ja madal energiakulu
• Jahutus – kogu majas on jahutussüsteem
• Targa maja süsteem – kogu maja juhtimine käib mugavalt ühest kohast
ASUKOHT
Tegemist on vaikse ja turvalise piirkonnaga, eemal suure koormusega teedest. Kinnistu asukoht on väga mugavalt Kakumäe ja Vismeistri keskuste piiril. Paariminutilise autosõidutee kaugusel on suur valik kaupluseid, restorane, 5 minutilise autosõidu kaugusel on neli lastehoidu, lähimad koolid on Rocca al Mare kool ja Tabasalu Põhikool ja Gümnaasium. Ühistranspordipeatus nii Tabasalu kui kesklinna suunal on ca 600 m kaugusel. Kesklinna jõuab ca 20 minutiga.
Kui tunned, et sellest võiks saada Sinu järgmine Kodu, võta kindlasti ühendust.
Lii Salusaar
5344 ****
***@***.ee
LUXUM – Luxury Living by Uus Maa
LUXUM on pühendunud kõige eksklusiivsema ja unikaalsema kinnisvara müügile Eestis. Meie 30-aastane kogemus, luksuskinnisvarale spetsialiseerunud maaklerid, ulatuslik kontaktivõrgustik ja värske turuinfo annavad meile võimaluse leida teie kinnisvarale sobiva ostja või teile sellise kodu, mida soovinud olete. Kui soovite osta, müüa või üürida preemiumklassi kinnisvara, võtke julgelt minuga ühendust!
JAGA MINU KONTAKTI KÕIGILE, KES VAJAVAD KINNISVARANÕU!
- - - - - - - - - -
Telli hindamine UUS MAA Kinnisvarabüroolt https://uusmaa.ee/teenused/hindamine/
ning saad:
- Eksperthinnangu kuni 20% soodsamalt kui võtad koduga seotud laenu Swedbankist
- Pankadest parimad kodulaenutingimused
- Kiire, kvaliteetse ning usaldusväärse hindamisteenuse Eestis
UUS MAA KINNISVARABÜROO EKSPERTHINNANGUID AKTSEPTEERIVAD KÕIK FINANTSASUTUSED.
- - - - - - - - - -
Liitu Uus Maa uudiskirjaga ja saa homset kinnisvarainfot juba täna!
https://www.uusmaa.ee/uudiskirjagaliitumine/
- - - - - - - - - -
Kodu aitab osta Swedbank.
Pakkumise saamiseks kasuta koodi UUSMAA ja Sind teenindatakse eelisjärjekorras.
Võtame ühendust 1 tööpäeva jooksul.
Uus Maa kliendile soodsam lepingutasu. Küsi täpsemat infot maaklerilt.
Finantsteenuseid pakub Swedbank AS. Tutvu tingimustega, pea nõu.
Maja asukoht on kõigest pooleteise kilomeetri kaugusel Kakumäe rannast. Eramu paistab silma oma ainulaadse arhitektuurse lähenemise poolest, mis peegeldab modernsuse ja luksuse täiuslikku sümbioosi. Eramu asetseb privaatsel 3 800 m² suurusel kinnistul, pakkudes privaatsust, vaikust ja looduslähedast elukeskkonda, olles samal ajal piisavalt lähedal nii kesklinnast kui kõigest, mis mugavaks eluks vajalik.
PLANEERING
Juba sisse astudes tervitab sind valgusküllane fuajee, kust edasi pääseb maja erinevatesse tiibadesse. Maja esimesel korrusel paikneb avar elutuba koos köögi-ja söögitoa osaga, luksuslik sauna- ja lõõgastusala, mahukas walk-in garderoob, praktiline majapidamisruum, tehnoruum ning garaaž kahele autole.
Maast laeni aknad täidavad ruumid loomuliku valgusega ning võimaldavad välisel loodusel loomulikul viisil olla osa maja sisemusest. Elutoa sisehoovipoolne osa avaneb privaatsele terrassile – ideaalne paik suviseks olemiseks või õhtusöökideks sõpradega. Samuti pääseb privaatsele terrassile saunast.
Maja teisel korrusel on põhimagamistuba koos walk-in garderoobi ja privaatse vannitoaga. Lisaks on veel 3 magamistuba, suur vannituba ning praktiline panipaik/garderoob. Maja on kavandatud perele, kes hindab ruumi ja privaatsust.
Fotodel on sisearhitekti nägemus siseviimistlusest. Sarnast projekti on võimalik tellida. Maja müüakse möbleerimata kujul.
SISEVIIMISTLUS
Kogu majas on kasutatud ainult looduslikke, kvaliteetseid materjale: looduslik kivi, klaas, betoon ja väärispuit. Kõik see loob ajatu tunde, mis ei allu moevooludele. Uuel omanikul on võimalus valida siseuksed, põrandakatted ja plaadid – et saaksid oma tulevase kodu just enda maitse järgi sisustada.
TEHNOSÜSTEEMID
Tehnoloogiline nutikus igas detailis
• Maaküte – energiasäästlik ja stabiilne sisekliima
• Soojustagastusega ventilatsioon – puhas õhk ja madal energiakulu
• Jahutus – kogu majas on jahutussüsteem
• Targa maja süsteem – kogu maja juhtimine käib mugavalt ühest kohast
ASUKOHT
Tegemist on vaikse ja turvalise piirkonnaga, eemal suure koormusega teedest. Kinnistu asukoht on väga mugavalt Kakumäe ja Vismeistri keskuste piiril. Paariminutilise autosõidutee kaugusel on suur valik kaupluseid, restorane, 5 minutilise autosõidu kaugusel on neli lastehoidu, lähimad koolid on Rocca al Mare kool ja Tabasalu Põhikool ja Gümnaasium. Ühistranspordipeatus nii Tabasalu kui kesklinna suunal on ca 600 m kaugusel. Kesklinna jõuab ca 20 minutiga.
Kui tunned, et sellest võiks saada Sinu järgmine Kodu, võta kindlasti ühendust.
Lii Salusaar
5344 ****
***@***.ee
LUXUM – Luxury Living by Uus Maa
LUXUM on pühendunud kõige eksklusiivsema ja unikaalsema kinnisvara müügile Eestis. Meie 30-aastane kogemus, luksuskinnisvarale spetsialiseerunud maaklerid, ulatuslik kontaktivõrgustik ja värske turuinfo annavad meile võimaluse leida teie kinnisvarale sobiva ostja või teile sellise kodu, mida soovinud olete. Kui soovite osta, müüa või üürida preemiumklassi kinnisvara, võtke julgelt minuga ühendust!
JAGA MINU KONTAKTI KÕIGILE, KES VAJAVAD KINNISVARANÕU!
- - - - - - - - - -
Telli hindamine UUS MAA Kinnisvarabüroolt https://uusmaa.ee/teenused/hindamine/
ning saad:
- Eksperthinnangu kuni 20% soodsamalt kui võtad koduga seotud laenu Swedbankist
- Pankadest parimad kodulaenutingimused
- Kiire, kvaliteetse ning usaldusväärse hindamisteenuse Eestis
UUS MAA KINNISVARABÜROO EKSPERTHINNANGUID AKTSEPTEERIVAD KÕIK FINANTSASUTUSED.
- - - - - - - - - -
Liitu Uus Maa uudiskirjaga ja saa homset kinnisvarainfot juba täna!
https://www.uusmaa.ee/uudiskirjagaliitumine/
- - - - - - - - - -
Kodu aitab osta Swedbank.
Pakkumise saamiseks kasuta koodi UUSMAA ja Sind teenindatakse eelisjärjekorras.
Võtame ühendust 1 tööpäeva jooksul.
Uus Maa kliendile soodsam lepingutasu. Küsi täpsemat infot maaklerilt.
Finantsteenuseid pakub Swedbank AS. Tutvu tingimustega, pea nõu.



















