Meil on põhjust tähistada ja uue etapi valmimise auks pokaali tõsta – elagu Kõrvekaare ja Kõrveringi tänavad!
Elamurajoonis on uus etapp lõpule jõudmas ning kommunikatsioonid olemas ka selles etapis - juba nüüd saad alustada oma uue kodu ehitusloa taotlemist ja kopa maasse lüüa! Et oma rõõmu jagada, siis varajase SOOLALEIVA KINGITUSENA SAAB OSTJA KAASA 1000 EURO SUURUSE KINKEKAARDI!
Müügihinnas sisaldub elektriliitumine võimsusega 3 x 6 amprit, tsentraalse vee- ja kanalisatsioonivõrguga liitumine. Tänav on asfalteeritud. Rajatud on ka jalgteed ning Kõrvekaare tänavale paigaldatakse ka tänavavalgustus.
KINNISTU
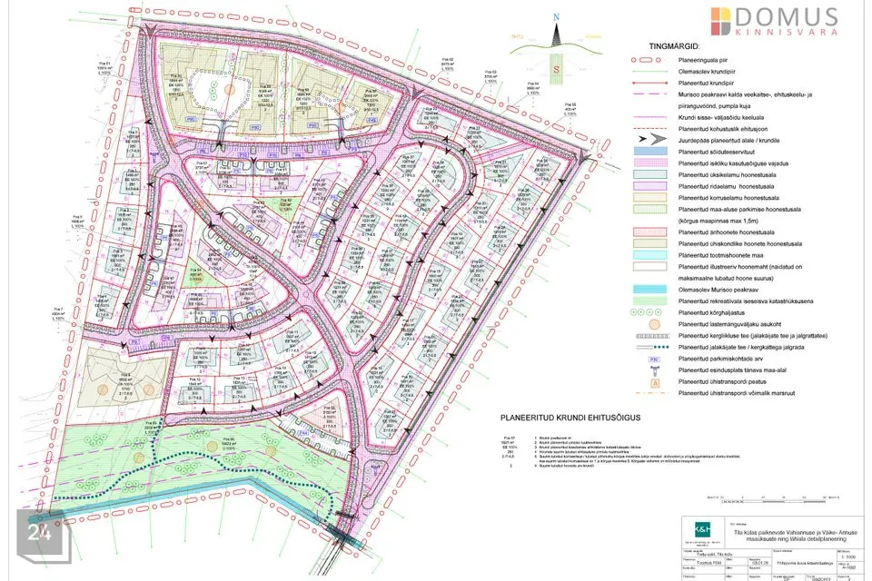
Kinnistu asub Kõrveringi ja Kõrvekaare tänava ristumiskohas ning sealt pääseb mugavalt Kooli tänavale. Kinnistut ühest küljest üksikelamu kinnistu ning kolme külge planeeritav tänav. Üle Kõrvekaare tänava on planeeritud kortermajad ning veidi kaugemal rõõmustab silma vahva ridaelamute kompleks.
EHITUSÕIGUS JA ARHIDEKTUURINÕUDED
Krundi ostja saab endale kahekordse elamu ehitada. Katusetüübiks on eestlastele meelepärane räästaga viilkatus (katusekalle 25-40 kraadi), mille põhimahu katuse harjajoon on paralleelne tänavaga. Sokli kõrguseks täidetud maapinnast on 30-50 sentimeetrit. Kõrveringi 10 (detailplaneeringus märgistusega POS 23) suurim ehitusalune pind on 250 m². Mahule võib lisada varimüüre, varjualuseid ja katuseterrasse. Välisviimistluses kasutada järgmisi materjale: kivivoodrit, krohvi, puitu. Ca 35% välisseinast (arvestamata klaasitud alasid) võib viimistleda mõne kvaliteetsema materjaliga nagu näiteks looduskivi, puit, keraamika vms.
Hoone põhivärviks peaks olema hele pastelne, väiksemad detailid nagu aknaraamid, tuulekastid (räästad), sokkel jne. värvida aktsentidena tumedamas pastelses toonis, mis muudab hoone ilmekamaks ja toob erinevad kontuurid paremini esile. Katuse lubatud värvitoonid on pastelne hall, pruun ja must.
Haljastust peaks rajama minimaalselt 60% ulatuses kogu krundi pindalast. Kunstipäraste aedade kujundamisel peaks meeles pidama, et pinnas on niiske ja seepärast sobivad sinna niiskuslembelised puittaimed nagu näiteks pooppuu, hõberemmalegas, raagremmelgas, siberi kontpuu, punapaju. Krundi piiridele võib rajada piirdeid kõrgusega kuni 1,5 meetrit. Tänavapoolsed piirded peavad olema läbipaistvad kuid külgmiste piiretena võib kasutada võrkaia lahendusi koos hekkide mahuga. Planeeritud gaasivarustust piirkonda ei tule ning planeeringualal on lubatud kasutada lokaalkütet. Kohalik omavalitsus lubab paigaldada ka päikesepaneele katusele ning maakütet (nii kontuur kui puuraugud).
Müügis olevale kinnistule on lubatud ehitada lisaks põhihoonele ka abihoone, mille suurim lubatud korruselisus on üks ja maksimaalne kõrgus võib olla 5 meetrit. Detailplaneeringu kohaselt ei kuulu abihoonete hulka prügikogumismaja. Nii abihoone kui prügikogumismaja võib rajada lisaks põhihoonele väljaspoole hoonestustala, kui hoonestaja järgib muid seadusega ettenähtud kriteeriume. Soovituslik on ehitada naabriga kahe peale üks abihoone ja prügikogumismaja krundi piirile tingimusega, et hoone on ühtse väljanägemisega mõlemal krundil.
Detailplaneeringu kohta lisainfot leiad siit: http://gis.tartuvald.ee/dokumendid/Detailplaneeringud/DP_2007_17/
NB: gaasitrassi elamurajooni ei ehitata.
IDEE
Tahad kiiremini unistuste täitumiseni jõuda? Küsi elementmaja ehitaja kohta, kes saaks Sulle unistuste kodu ehitada Annuse Elamurajoonis!
ARENDUS JA PIIRKOND
Piirkond on hinnatud eelkõige oma kompaktsuse ja mugava ühenduse pärast Tartu linnaga. Lapsevanemad võivad rahuliku südamega ka algklasside mudilased iseseisvalt kooliteele saata kuna kool on lähedal ning Kooli tänaval on eraldi jalakäijate ala. Lasteaed asub kohe kooli kõrval -lühike jalutuskäik värskes hommikuõhus on nii mõnelegi lapsevanemale teretulnud kuigi ka autoga ligipääs on võimalikult mugavalt lahendatud. Kõige lähim pood on Kõrveküla keskuses, kus asuvad ka vallamaja, postkontor, pakiautomaat, spordihoone, ujumiskohad jms. Värsked uudised Tartu vallast toimetab valla elanikuni Tartu Valla Kuukiri. Tartu vald on kaasaegne ja pidevas arengus olev kohalik omavalitsus, mis asub kohe Tartu linna külje all - seega on Kõrveringi tänava elanikele loodav mugav elukeskkond hea valik ka neile, kes Tartus tööl käivad või kultuurielamusi sealt maitsta soovivad.
Ühe detailplaneeringuga on kokku planeeritud 66 krunti. Krundid on kavandatud eesmärgiga luua hubane elamurajoon, kus erineva sihtotstarbega krundid moodustavad omaette grupid.
Piirkonda on planeeritud valdavalt 1-2 korruselised viilkatusega hooned. Detailplaneeringu kohaselt peaks sinna tulema lisaks eramutele ka üks ärifunktsiooniga ehitis kohalike elanike teenindamiseks, ühiskondliku kasutusega hoone ja rekreatiivalad. Planeeringuala põhjapoolsesse ossa on kavandatud ka väiksemat tüüpi korterelamute kvartal ja keskossa ridaelamute kvartalid. Detailplaneeringu kohaselt on Murisoo peakraavi äärde kavandatud jalgrada, mis tuleb ühendada kraavi vasakule kaldale juba varem planeeritud jalgrajaga ning ühendada need sildadega, et tekiks võimalus liikuda ringidena tervisesporti tehes, koeraga või ilma koerata jalutades. Tänava maa-alale jäävad osadesse kohtadesse on planeeritud rohelised skväärid ehk kohad, kuhu soovitatakse rajada dekoratiivsemat haljastust või mõni skulptuur – see võiks olla koht tänavaruumis, kus inimene saab istepingil jalga puhata ja teiste piirkonna elanikega vestlust arendada.
LISAINFO
Müügilepingu sõlmimisega seotud notaritasu ja riigilõivu tasub ostja.
Uudista ka arenduse kodulehte aadressil https://www.annuse.domus.ee/
Lepi aeg kokku kohtumiseks, et saaksin Sulle anda põhjalikuma ülevaate!
Müü või hinda meiega! Saada päring ***@***.ee ja teeme Sulle hea pakkumise.
Elamurajoonis on uus etapp lõpule jõudmas ning kommunikatsioonid olemas ka selles etapis - juba nüüd saad alustada oma uue kodu ehitusloa taotlemist ja kopa maasse lüüa! Et oma rõõmu jagada, siis varajase SOOLALEIVA KINGITUSENA SAAB OSTJA KAASA 1000 EURO SUURUSE KINKEKAARDI!
Müügihinnas sisaldub elektriliitumine võimsusega 3 x 6 amprit, tsentraalse vee- ja kanalisatsioonivõrguga liitumine. Tänav on asfalteeritud. Rajatud on ka jalgteed ning Kõrvekaare tänavale paigaldatakse ka tänavavalgustus.
KINNISTU
Kinnistu asub Kõrveringi ja Kõrvekaare tänava ristumiskohas ning sealt pääseb mugavalt Kooli tänavale. Kinnistut ühest küljest üksikelamu kinnistu ning kolme külge planeeritav tänav. Üle Kõrvekaare tänava on planeeritud kortermajad ning veidi kaugemal rõõmustab silma vahva ridaelamute kompleks.
EHITUSÕIGUS JA ARHIDEKTUURINÕUDED
Krundi ostja saab endale kahekordse elamu ehitada. Katusetüübiks on eestlastele meelepärane räästaga viilkatus (katusekalle 25-40 kraadi), mille põhimahu katuse harjajoon on paralleelne tänavaga. Sokli kõrguseks täidetud maapinnast on 30-50 sentimeetrit. Kõrveringi 10 (detailplaneeringus märgistusega POS 23) suurim ehitusalune pind on 250 m². Mahule võib lisada varimüüre, varjualuseid ja katuseterrasse. Välisviimistluses kasutada järgmisi materjale: kivivoodrit, krohvi, puitu. Ca 35% välisseinast (arvestamata klaasitud alasid) võib viimistleda mõne kvaliteetsema materjaliga nagu näiteks looduskivi, puit, keraamika vms.
Hoone põhivärviks peaks olema hele pastelne, väiksemad detailid nagu aknaraamid, tuulekastid (räästad), sokkel jne. värvida aktsentidena tumedamas pastelses toonis, mis muudab hoone ilmekamaks ja toob erinevad kontuurid paremini esile. Katuse lubatud värvitoonid on pastelne hall, pruun ja must.
Haljastust peaks rajama minimaalselt 60% ulatuses kogu krundi pindalast. Kunstipäraste aedade kujundamisel peaks meeles pidama, et pinnas on niiske ja seepärast sobivad sinna niiskuslembelised puittaimed nagu näiteks pooppuu, hõberemmalegas, raagremmelgas, siberi kontpuu, punapaju. Krundi piiridele võib rajada piirdeid kõrgusega kuni 1,5 meetrit. Tänavapoolsed piirded peavad olema läbipaistvad kuid külgmiste piiretena võib kasutada võrkaia lahendusi koos hekkide mahuga. Planeeritud gaasivarustust piirkonda ei tule ning planeeringualal on lubatud kasutada lokaalkütet. Kohalik omavalitsus lubab paigaldada ka päikesepaneele katusele ning maakütet (nii kontuur kui puuraugud).
Müügis olevale kinnistule on lubatud ehitada lisaks põhihoonele ka abihoone, mille suurim lubatud korruselisus on üks ja maksimaalne kõrgus võib olla 5 meetrit. Detailplaneeringu kohaselt ei kuulu abihoonete hulka prügikogumismaja. Nii abihoone kui prügikogumismaja võib rajada lisaks põhihoonele väljaspoole hoonestustala, kui hoonestaja järgib muid seadusega ettenähtud kriteeriume. Soovituslik on ehitada naabriga kahe peale üks abihoone ja prügikogumismaja krundi piirile tingimusega, et hoone on ühtse väljanägemisega mõlemal krundil.
Detailplaneeringu kohta lisainfot leiad siit: http://gis.tartuvald.ee/dokumendid/Detailplaneeringud/DP_2007_17/
NB: gaasitrassi elamurajooni ei ehitata.
IDEE
Tahad kiiremini unistuste täitumiseni jõuda? Küsi elementmaja ehitaja kohta, kes saaks Sulle unistuste kodu ehitada Annuse Elamurajoonis!
ARENDUS JA PIIRKOND
Piirkond on hinnatud eelkõige oma kompaktsuse ja mugava ühenduse pärast Tartu linnaga. Lapsevanemad võivad rahuliku südamega ka algklasside mudilased iseseisvalt kooliteele saata kuna kool on lähedal ning Kooli tänaval on eraldi jalakäijate ala. Lasteaed asub kohe kooli kõrval -lühike jalutuskäik värskes hommikuõhus on nii mõnelegi lapsevanemale teretulnud kuigi ka autoga ligipääs on võimalikult mugavalt lahendatud. Kõige lähim pood on Kõrveküla keskuses, kus asuvad ka vallamaja, postkontor, pakiautomaat, spordihoone, ujumiskohad jms. Värsked uudised Tartu vallast toimetab valla elanikuni Tartu Valla Kuukiri. Tartu vald on kaasaegne ja pidevas arengus olev kohalik omavalitsus, mis asub kohe Tartu linna külje all - seega on Kõrveringi tänava elanikele loodav mugav elukeskkond hea valik ka neile, kes Tartus tööl käivad või kultuurielamusi sealt maitsta soovivad.
Ühe detailplaneeringuga on kokku planeeritud 66 krunti. Krundid on kavandatud eesmärgiga luua hubane elamurajoon, kus erineva sihtotstarbega krundid moodustavad omaette grupid.
Piirkonda on planeeritud valdavalt 1-2 korruselised viilkatusega hooned. Detailplaneeringu kohaselt peaks sinna tulema lisaks eramutele ka üks ärifunktsiooniga ehitis kohalike elanike teenindamiseks, ühiskondliku kasutusega hoone ja rekreatiivalad. Planeeringuala põhjapoolsesse ossa on kavandatud ka väiksemat tüüpi korterelamute kvartal ja keskossa ridaelamute kvartalid. Detailplaneeringu kohaselt on Murisoo peakraavi äärde kavandatud jalgrada, mis tuleb ühendada kraavi vasakule kaldale juba varem planeeritud jalgrajaga ning ühendada need sildadega, et tekiks võimalus liikuda ringidena tervisesporti tehes, koeraga või ilma koerata jalutades. Tänava maa-alale jäävad osadesse kohtadesse on planeeritud rohelised skväärid ehk kohad, kuhu soovitatakse rajada dekoratiivsemat haljastust või mõni skulptuur – see võiks olla koht tänavaruumis, kus inimene saab istepingil jalga puhata ja teiste piirkonna elanikega vestlust arendada.
LISAINFO
Müügilepingu sõlmimisega seotud notaritasu ja riigilõivu tasub ostja.
Uudista ka arenduse kodulehte aadressil https://www.annuse.domus.ee/
Lepi aeg kokku kohtumiseks, et saaksin Sulle anda põhjalikuma ülevaate!
Müü või hinda meiega! Saada päring ***@***.ee ja teeme Sulle hea pakkumise.

















