649 m² elamumaa kinnistu Tiskre tee 3b, Tallinn – ehita oma kodu vaiksele tänavale mida mööda jõuad mereni välja!
Vismeistri on hinnatud rahuliku elukeskkonna, loodusläheduse ja linna mugavuste kombinatsiooni pooles. Just sellesse piirkonda on müüki tulnud 649 m² elamumaa aadressil Tiskre tee 3b. See krunt pakub võimalust nii eramu arendajale – kes hindab kindlat ehitusõigust ja kiiret arendusvalmidust – kui ka perele, kes soovib luua endale kodu rahulikus mereäärses keskkonnas. Kinnistul asub lagunenud aiamaja.
EHITUSÕIGUS
Krundil kehtivad projekteerimistingimused, mis lubavad ehitada kuni 195 m² suuruse suletud brutopinnaga üksikelamu (kuni 2 maapealset korrust + võimaliku keldrikorruse). Lisaväärtusena on olemas ka eelprojekti näidisdokumentatsioon tulevase eramu tarbeks – see on suurepärane stardipakett, mis annab ettekujutuse võimalikust majaplaanist ning aitab säästa aega ja ressursse uue kodu loomisel.
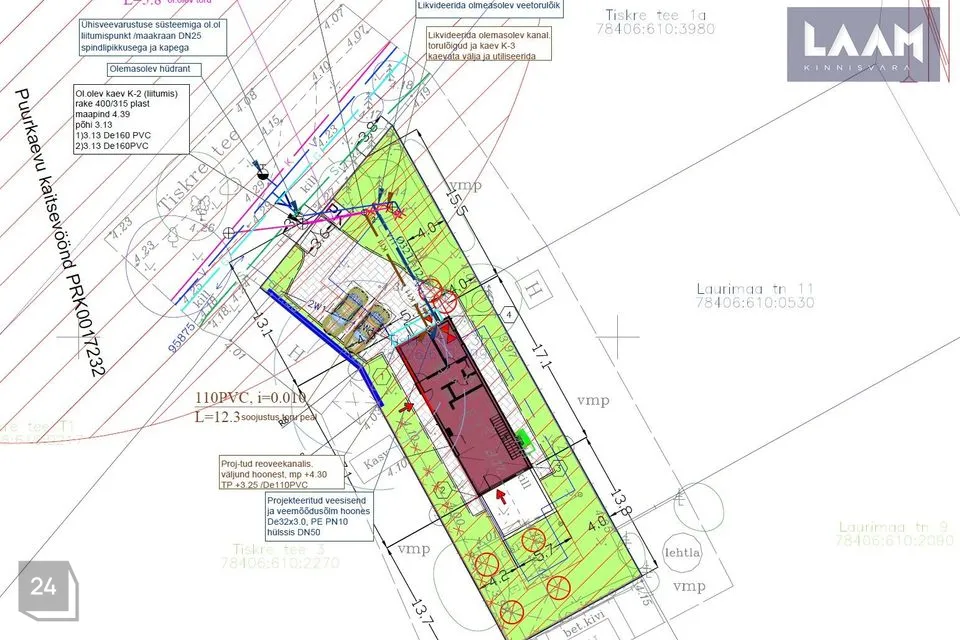
KOMMUNIKATSIOONID OLEMAS
Krundile on juba toodud vajalikud kommunikatsioonid, mis säästab uuel omanikul nii aega kui raha. Olemas on liitumine elektrivõrguga (3-faasiline, 25 A võimsusega). Samuti asuvad tsentraalse vee- ja kanalisatsioonivõrgu liitumiskaevud kohe kinnistu piiril – saad mugavalt ühendada tulevase maja trassidega, ilma et peaksid muretsema kulukate lisaühenduste pärast. (Kõik liitumispunktid on välja ehitatud, mistõttu puuduvad peidetud lisakulud infrastruktuuri rajamiseks.)
LOODUS
649 m² suurune kinnistu on ümbritsetud aiaga ning haljastatud ilusate kõrgete kuuskedega, mis pakuvad nii privaatsust kui ka looduse ilu. Tegu on vaiksel tänaval asuva krundiga, kus liiguvad vaid kohalikud elanikud. Ümbruskond on turvaline ning peresõbralik: naabruses on eriilmelise arhitektuuriga eramud ning elavad toredad pered, kes hindavad piirkonna privaatsust ja kogukondlikku õhkkonda. Arhitektuurne mitmekesisus ümbruses lisab elukeskkonnale väärtust ja iseloomu, muutes iga kodu selles piirkonnas unikaalseks.
Lisaks kodusele rohelusele ootavad sind vaid mõne minuti kaugusel ka imelised võimalused vaba aja veetmiseks looduses. Tiskre rand (Kakumäe rand) koos kauni liivarannaga jääb siit tõepoolest lühikese jalutuskäigu kaugusele – suvisel ajal saad nautida rannamõnusid ning võrratuid päikeseloojanguid mere ääres. Samuti kulgevad lähikonnas kergliiklusteed ja terviserajad, mis kutsuvad jalutama, jooksma või rattaga sõitma, pakkudes tegevust aastaringselt tervele perele. See on ideaalne asukoht inimesele, kes hindab looduslähedust ja samas kõiki linnalähedase elu mugavusi.
ÄRA LASE SEL VÕIMALUSEL KÄEST!
Tiskre tee 3b kinnistu on valmis uueks peatükiks – siin saad ellu viia nii arendusprojekti kui ka oma pere unistuste kodu. Tule veendu ise selle koha võludes ning kindlusta endale kvaliteetne elukeskkond meri ja rohelus vaid sammude kaugusel.
NOTARITASUD
Ostja ja müüja jagavad Notari tasu ca 750 € pooleks.
Ostja tasub riigilõivu ca 250 €.
Vismeistri on hinnatud rahuliku elukeskkonna, loodusläheduse ja linna mugavuste kombinatsiooni pooles. Just sellesse piirkonda on müüki tulnud 649 m² elamumaa aadressil Tiskre tee 3b. See krunt pakub võimalust nii eramu arendajale – kes hindab kindlat ehitusõigust ja kiiret arendusvalmidust – kui ka perele, kes soovib luua endale kodu rahulikus mereäärses keskkonnas. Kinnistul asub lagunenud aiamaja.
EHITUSÕIGUS
Krundil kehtivad projekteerimistingimused, mis lubavad ehitada kuni 195 m² suuruse suletud brutopinnaga üksikelamu (kuni 2 maapealset korrust + võimaliku keldrikorruse). Lisaväärtusena on olemas ka eelprojekti näidisdokumentatsioon tulevase eramu tarbeks – see on suurepärane stardipakett, mis annab ettekujutuse võimalikust majaplaanist ning aitab säästa aega ja ressursse uue kodu loomisel.
KOMMUNIKATSIOONID OLEMAS
Krundile on juba toodud vajalikud kommunikatsioonid, mis säästab uuel omanikul nii aega kui raha. Olemas on liitumine elektrivõrguga (3-faasiline, 25 A võimsusega). Samuti asuvad tsentraalse vee- ja kanalisatsioonivõrgu liitumiskaevud kohe kinnistu piiril – saad mugavalt ühendada tulevase maja trassidega, ilma et peaksid muretsema kulukate lisaühenduste pärast. (Kõik liitumispunktid on välja ehitatud, mistõttu puuduvad peidetud lisakulud infrastruktuuri rajamiseks.)
LOODUS
649 m² suurune kinnistu on ümbritsetud aiaga ning haljastatud ilusate kõrgete kuuskedega, mis pakuvad nii privaatsust kui ka looduse ilu. Tegu on vaiksel tänaval asuva krundiga, kus liiguvad vaid kohalikud elanikud. Ümbruskond on turvaline ning peresõbralik: naabruses on eriilmelise arhitektuuriga eramud ning elavad toredad pered, kes hindavad piirkonna privaatsust ja kogukondlikku õhkkonda. Arhitektuurne mitmekesisus ümbruses lisab elukeskkonnale väärtust ja iseloomu, muutes iga kodu selles piirkonnas unikaalseks.
Lisaks kodusele rohelusele ootavad sind vaid mõne minuti kaugusel ka imelised võimalused vaba aja veetmiseks looduses. Tiskre rand (Kakumäe rand) koos kauni liivarannaga jääb siit tõepoolest lühikese jalutuskäigu kaugusele – suvisel ajal saad nautida rannamõnusid ning võrratuid päikeseloojanguid mere ääres. Samuti kulgevad lähikonnas kergliiklusteed ja terviserajad, mis kutsuvad jalutama, jooksma või rattaga sõitma, pakkudes tegevust aastaringselt tervele perele. See on ideaalne asukoht inimesele, kes hindab looduslähedust ja samas kõiki linnalähedase elu mugavusi.
ÄRA LASE SEL VÕIMALUSEL KÄEST!
Tiskre tee 3b kinnistu on valmis uueks peatükiks – siin saad ellu viia nii arendusprojekti kui ka oma pere unistuste kodu. Tule veendu ise selle koha võludes ning kindlusta endale kvaliteetne elukeskkond meri ja rohelus vaid sammude kaugusel.
NOTARITASUD
Ostja ja müüja jagavad Notari tasu ca 750 € pooleks.
Ostja tasub riigilõivu ca 250 €.













