// Действующее разрешение на строительство, архитектурный проект имеется – современный и гармонирующий с природой жилой дом //
Посмотри визуализацию проекта: ninja-stuudio.ee/projektid/elamu-lohusalus
Приходи со мной на видеоэкскурсию: https://youtube.com/shorts/WvKFUCpdw44
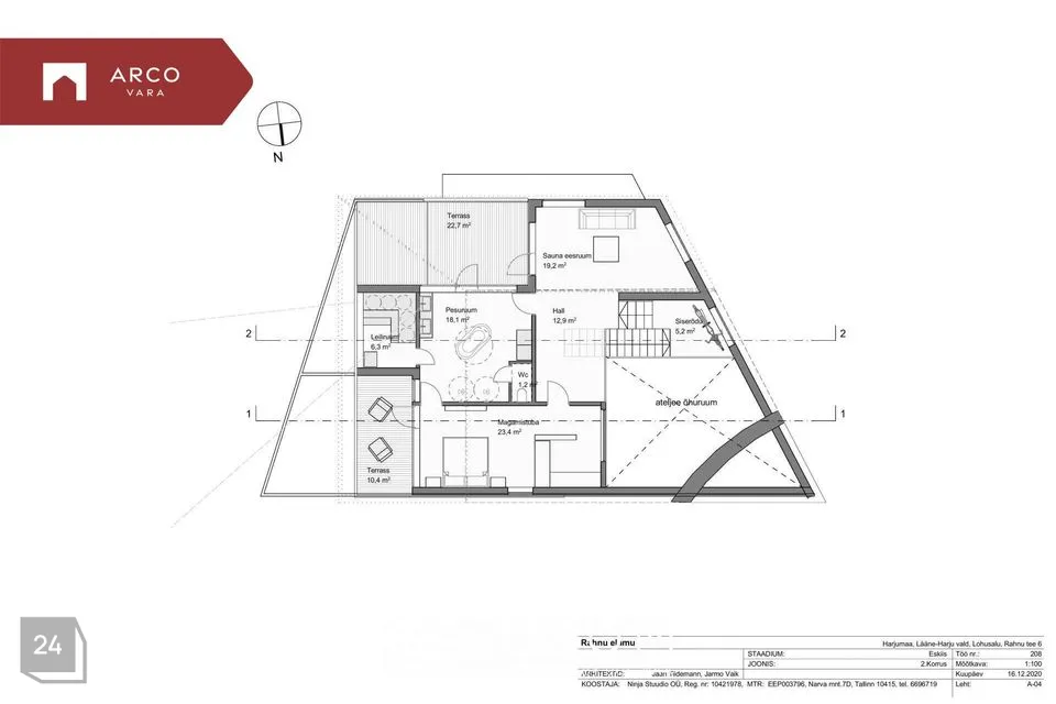
УЧАСТОК Rahnu tee 6 – это приватный участок под жилую застройку площадью 894 м² в конце тупиковой улицы, всего в 140 м от моря. Участок частично граничит с естественной зеленой зоной, что обеспечивает тишину и приватность – идеально для тех, кто ценит баланс между природой и качественной жилой средой. На участок выдано действующее разрешение на строительство, а также имеется проект 2-этажного дома с закрытой площадью нетто 218,8 м² от архитекторов Яана Тийдеманна и Ярмо Вайка (Ninja Stuudio OÜ).
РАЗРЕШЕНИЕ НА СТРОИТЕЛЬСТВО И ПРОЕКТ Разрешение на строительство № 211****/16954, выдано 20.05.2021 Уведомление о начале строительства подано в тот же день – разрешение действительно до завершения дома Современная архитектура, гармонирующая с природой, высота здания 7,9 м
Энергетическое решение: тепловой насос, печь, камин, плита Способ отопления: локальное отопление, местное отопление
КОММУНИКАЦИИ Электричество: точка подключения имеется, плата за подключение внесена (16A, 3 фазы) Вода: централизованная, подключение на границе участка Канализация: локальная (например, септик или биоочиститель) Техническая документация: все проекты по отдельным разделам имеются (включая электрические и вентиляционные пояснения)
ОКРЕСТНОСТИ И ДОСТУП Имеется публичный подъездной путь Песчаный пляж Лохусалу в 2 минутах пешком Центр Арво Пярта, Лауласмаа СПА, порт Лохусалу – все в короткой автомобильной доступности Автобусная остановка "Лохусалу" в 7 минутах пешком Таллинн в 35–40 минутах езды на автомобиле (через дорогу Лауласмаа)
ПОДХОДИТ Для будущего дома, летнего дома или инвестиций – при проектировании учтено как круглогодичное проживание, так и рекреационное использование. Подходит людям, которые ищут спокойную, высококачественную и близкую к природе среду обитания у моря.
Узнал себя? Давай посмотрим.
Приходи со мной на видеоэкскурсию: https://youtube.com/shorts/WvKFUCpdw44
УЧАСТОК Rahnu tee 6 – это приватный участок под жилую застройку площадью 894 м² в конце тупиковой улицы, всего в 140 м от моря. Участок частично граничит с естественной зеленой зоной, что обеспечивает тишину и приватность – идеально для тех, кто ценит баланс между природой и качественной жилой средой. На участок выдано действующее разрешение на строительство, а также имеется проект 2-этажного дома с закрытой площадью нетто 218,8 м² от архитекторов Яана Тийдеманна и Ярмо Вайка (Ninja Stuudio OÜ).
РАЗРЕШЕНИЕ НА СТРОИТЕЛЬСТВО И ПРОЕКТ Разрешение на строительство № 211****/16954, выдано 20.05.2021 Уведомление о начале строительства подано в тот же день – разрешение действительно до завершения дома Современная архитектура, гармонирующая с природой, высота здания 7,9 м
Энергетическое решение: тепловой насос, печь, камин, плита Способ отопления: локальное отопление, местное отопление
КОММУНИКАЦИИ Электричество: точка подключения имеется, плата за подключение внесена (16A, 3 фазы) Вода: централизованная, подключение на границе участка Канализация: локальная (например, септик или биоочиститель) Техническая документация: все проекты по отдельным разделам имеются (включая электрические и вентиляционные пояснения)
ОКРЕСТНОСТИ И ДОСТУП Имеется публичный подъездной путь Песчаный пляж Лохусалу в 2 минутах пешком Центр Арво Пярта, Лауласмаа СПА, порт Лохусалу – все в короткой автомобильной доступности Автобусная остановка "Лохусалу" в 7 минутах пешком Таллинн в 35–40 минутах езды на автомобиле (через дорогу Лауласмаа)
ПОДХОДИТ Для будущего дома, летнего дома или инвестиций – при проектировании учтено как круглогодичное проживание, так и рекреационное использование. Подходит людям, которые ищут спокойную, высококачественную и близкую к природе среду обитания у моря.
Узнал себя? Давай посмотрим.

















