
Rehe tn 5, Astangu, Haabersti
Tallinn, Harju maakond
Jõulud uues kodus! Majapidamisruumiga suur kahetoaline korter!
Tule & tutvu oma uue potentsiaalse koduga Hõbemetsa elurajoonis!
Kui otsid kodu, kus on rohkelt avarust ja ruumi, siis see korter on Sulle!
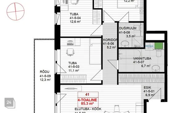
KORTER
Sinu uus kodu koosneb esikust, väga avarast köök-elutoast, magamistoast, praktilisest majapidamisruumist ning
Korter
2
4
62m²
207 000 €
3333,33 €/m2






