Kui Sa oled silma peal hoidnud Raadiraja Kvartali uusarendusel, kuid pole siiamaani veel korteritega tutvuma jõudnud, siis tundub, et nüüd võiks olla küll õige aeg!
Raadiraja Kvartali kolmas maja, Raadiraja 16 on valmis!
Arendaja ja köögimööbli tootja Arens on paigaldanud kolmele korterile ka juba köögid – see tähendab, et Sul jääb ära köögi planeerimisega kaasnev peavalu ja mitmekuine ootamine. Lisaks on köök juba pangalaenu sees!
Raadiraja 16 köökidega korterid on järgmised:
Korter 6, I korrus, 2 tuba, 37,1 m² (kõrged laed), terrass 12 m² – hind 151 200 €
Korter 12, II korrus, 3 tuba, 51,2 m², rõdu 8,2 m² – hind 181 300 €
Korter 19, III korrus, 2 tuba, 37,1 m², rõdu 8,2 m² – hind 151 800 €
Ja see pole veel kõik! Kõikidele vabade korterite rõdudele on paigaldatud klaasid, et muuta rõdud ilmastikukindlaks ja aastaringselt kasutatavaks. Klaasid on hõlpsasti "kokku pakitavad".
Raadiraja 16 maja kodusid saad täna oma silmaga vaadata ja käega katsuda! Ei mingit "paberi pealt ostmist"!
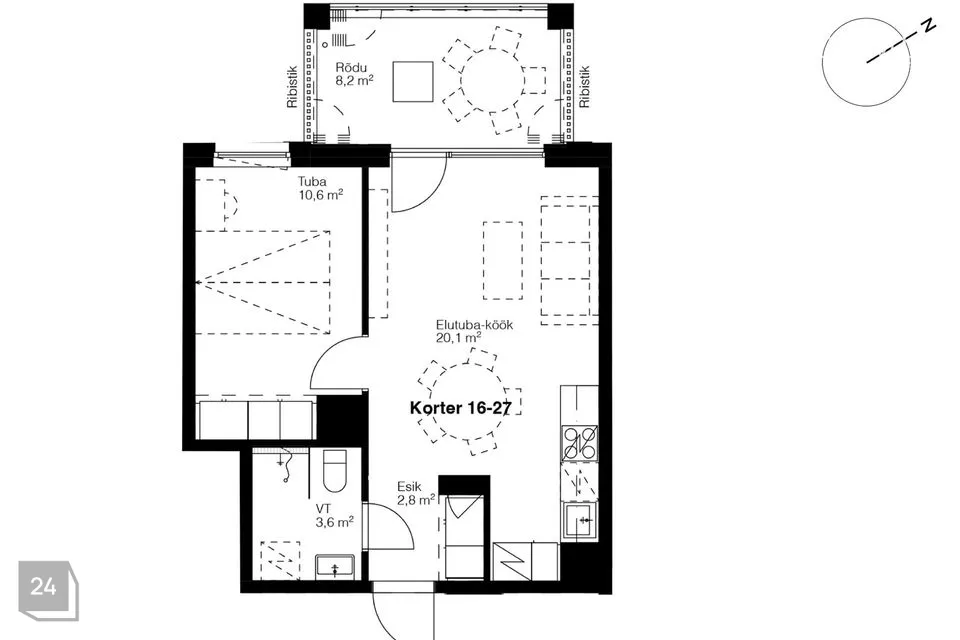
Raadiraja 16 majas ootab Sind privaatsel viimasel korrusel 2-toaline kodu, numbriga 27. Kodu koosneb esikust, avatud köögiga elutoast, magamistoast ning wc´st/duširuumist. 8.2 m² suurusele rõdule mahub vabalt Su isiklik botaanikaaed, kodukontor, võrkkiik ja isegi kass. Et saaksid rõdu kasutada aastaringselt on arendaja paigaldanud rõdule klaasid.
Korteri vaated avanevad sisehoovi, kuhu on paigutatud puhkealad täiskasvanutele ning mänguväljakud pere pisematele.
POLE RAADIRAJA KODUDEST VAREM VEEL MIDAGI KUULNUD? LOE PALUN EDASI!
2024 aasta suvel alustati Tartus Eesti Rahva Muuseumi ja Raadi mõisapargi naabruses, uue kaheksa kortermajaga Raadiraja elamukvartali rajamist. Kuigi juriidiliselt asuvad Raadiraja Kodud Tartu vallas, on linna piir loetud sammude kaugusel.
Siin kohtuvad loodus, kaasaegsed kodud ja Sina !
Raadiraja Kodusid iseloomustab:
* A energiaklass, päikesepaneelid, keskküte
* Igal korteril on jahutuse valmidus, jahutussseadme saab juurde tellida lisatasu eest.
* esimese korruse korteritel personaalsed välialad ja/või terrassid, teistel korteritel rõdud
* autovabad koduõued
* atraktiivsed laste mänguväljakud
* väliruumi puhkealad (pingid, piknikumööbel, lauatenniselaud)
* panipaigad, jalgrattahoidla
* kogukonna pakiautomaadid (https://picapac.com/)
* trepivaba ligipääs hoonesse
* majas on lift
* murukatused
* looduskeskne asukoht
* hea ühendus Tartu linnaga
Raadiraja kortermajade vahele on kavandatud mõnusad autovabad koduõued, kus pere pisemad saavad hoovis mänguväljakutel turvaliselt lustida.
Mänguplatsid moodustavad suure liivakasti, kuhu on pikitud erinevaid atraktsioone - kõige efektsemaks ja pilkupüüdvamaks atraktsiooniks saab olema lennuk. Lisaks on laste lõbuks kiik, karussell, ronila jpm.
Suts suuremad saavad aga naabriga pinksi taguda, piknikku pidada või siis varjualuse all maailmaasju arutada.
Kaunis haljastus loob silmailu erinevatel aastaaegadel- maksimaalses mahus säilitatakse olemasolevat haljastust ning lisaks kavandatakse kõrghaljastust, põõsaid, kõrrelisi, niidumuru- ja murualasid.
AGA ASUKOHT?
Raadiraja kortermajad on paigutatud kahe haljasala vahele. Läheduses asub Raadi looduskaitseala. Loetud sammude kaugusel on Tartu linna piir ja vahetusläheduses asub Tartu Roosi discgolfipark.
Bussipeatused Raadiraja ja Eesti Rahva Muuseum, mida teenindab linnaliin nr 7 (Tõrvandi-Raeplats-Kõrveküla ja vastupidi), on jalutuskäigu kaugusel. Äsja avatud Muuseumi tee pikendus on loonud uued ja paremad ühendusvõimalused Annelinnaga.
Kõrveküla-Tartu maantee ääres on avatud Tartu valla suurim supermarket. Lisaks toidukaupadele on esindatud ka spordiklubi, apteek ja lemmikloomapood.
2025 aasta sügisel avati Raadi hariduskeskus.
Pangad pakuvad Domus Kinnisvara klientidele eluasemelaenu lepingutasu soodustusi. Küsi lisainfot Domus Kinnisvara maaklerilt või hindajalt.
Müü ja hinda meiega! Teeme kinnisvara müügi Sinu jaoks sujuvaks ja pingevabaks.





























