A unique 5-bedroom rooftop apartment in the Jakobi 28 residential and commercial building has come up for sale.
BUILDING
Energy efficiency and comfortable living are the priorities in the construction of this 4-storey concrete building. Completed in 2020, the building was designed by Ivo Rebane. Merilen Mentaal is the architect of the roof terrace.
The structure and interior design of both the building and the apartments are well thought-out and functional. The building has a security door with a padlock, and entry to the apartments is by means of a modern and secure code lock.
On the 1st floor of the building there is a laundry room, a drying room and a bicycle parking. There is a lift.
PLANNING AND FINISHING
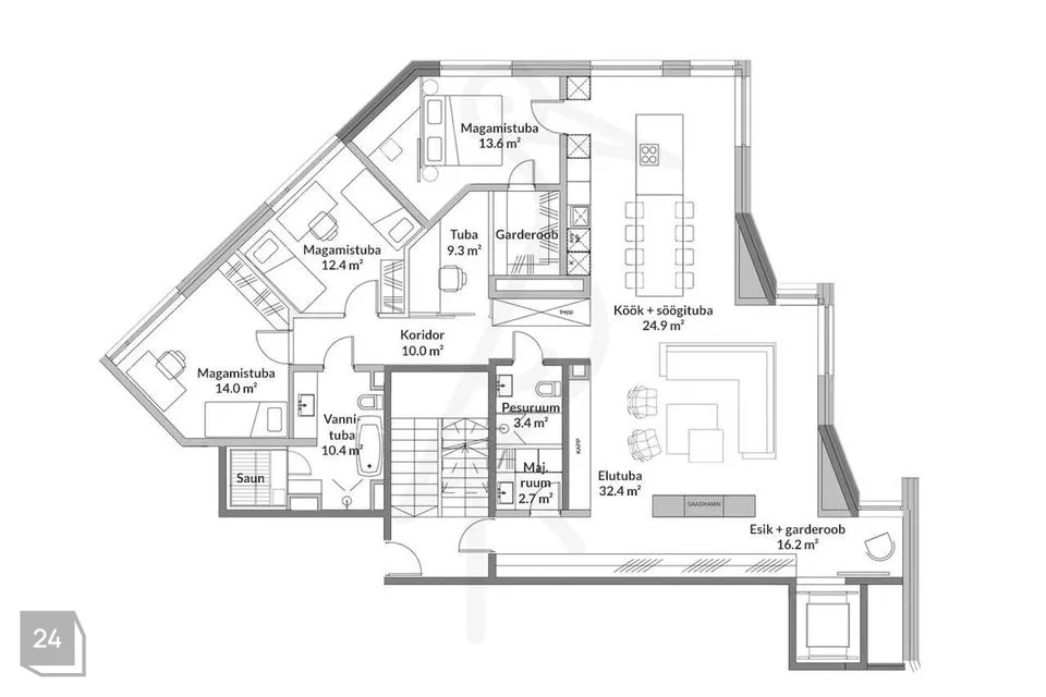
The 149 m2 penthouse consists of a spacious living room and kitchen, 3 bedrooms, 2 bathrooms, an office and a spacious utility room. One of the bedrooms also has a walk-in wardrobe and a bathroom.
From the living room, a staircase leads to the charming 107 m2 roof terrace, adorned with carefully selected landscaping. The floors are covered with high quality thermo wood.
The terrace is complemented by a 26 m2 glasshouse with an outdoor kitchen, where you can spend time even in bad weather. In addition to family dinners and other gatherings, the home cinema system on the terrace also offers the possibility to organise cosy movie nights in all weathers.
The calm colour palette used throughout the interior creates a luxurious and elegant overall look.
Modern solutions meet timeless design in the interior. Sophisticated details enliven the spacious rooms, complemented by neutral tones and quality materials. The end result is a clean and cosy feel.
INTERIOR
The breathtaking penthouse is designed with the utmost refinement and elegance. Set high above the cityscape, the residence is adorned with rich furnishings, creating an exclusive atmosphere.
The functional ArcLinea kitchen furniture is integrated with high quality De Dietrich appliances: dishwasher, induction hob, oven, fridge, cooker hood and coffee machine.
The bathrooms are fitted with high-end appliances, including an oval stone bath and a magnolia wood sauna.
The apartment has a bio-fireplace for added cosiness and style.
There are integrated wardrobes in the hall and bedroom.
HEATING AND VENTILATION
The house has a B energy label and is heated by a room-controlled central heating system with underfloor heating. The apartment also has thermally controlled ventilation.
PARKING
The apartment has 2 parking spaces in the underground garage.
LOCATION
The Jakobi 28 apartment building is located in a highly sought-after area. The city centre, with its fast-paced pace of life, offers a variety of opportunities to visit major shopping centres, restaurants, theatres and cinemas.
Stockmann, Viru Centre, Ülemiste Centre, T1 Centre and all major grocery stores are in the immediate vicinity. The location of the apartment building offers its residents as many options as possible to organise their time and daily activities.
In addition, the surrounding area offers plenty of sporting opportunities for professional athletes and amateurs alike, with top-level sports clubs nearby: MyFitness, HC Gym and Gym Ülemiste.
The Tallinn Bus Station with several connections is located just 200 m from the front door.
In case of interest, please contact us to arrange a suitable time to visit the apartment.
BUILDING
Energy efficiency and comfortable living are the priorities in the construction of this 4-storey concrete building. Completed in 2020, the building was designed by Ivo Rebane. Merilen Mentaal is the architect of the roof terrace.
The structure and interior design of both the building and the apartments are well thought-out and functional. The building has a security door with a padlock, and entry to the apartments is by means of a modern and secure code lock.
On the 1st floor of the building there is a laundry room, a drying room and a bicycle parking. There is a lift.
PLANNING AND FINISHING
The 149 m2 penthouse consists of a spacious living room and kitchen, 3 bedrooms, 2 bathrooms, an office and a spacious utility room. One of the bedrooms also has a walk-in wardrobe and a bathroom.
From the living room, a staircase leads to the charming 107 m2 roof terrace, adorned with carefully selected landscaping. The floors are covered with high quality thermo wood.
The terrace is complemented by a 26 m2 glasshouse with an outdoor kitchen, where you can spend time even in bad weather. In addition to family dinners and other gatherings, the home cinema system on the terrace also offers the possibility to organise cosy movie nights in all weathers.
The calm colour palette used throughout the interior creates a luxurious and elegant overall look.
Modern solutions meet timeless design in the interior. Sophisticated details enliven the spacious rooms, complemented by neutral tones and quality materials. The end result is a clean and cosy feel.
INTERIOR
The breathtaking penthouse is designed with the utmost refinement and elegance. Set high above the cityscape, the residence is adorned with rich furnishings, creating an exclusive atmosphere.
The functional ArcLinea kitchen furniture is integrated with high quality De Dietrich appliances: dishwasher, induction hob, oven, fridge, cooker hood and coffee machine.
The bathrooms are fitted with high-end appliances, including an oval stone bath and a magnolia wood sauna.
The apartment has a bio-fireplace for added cosiness and style.
There are integrated wardrobes in the hall and bedroom.
HEATING AND VENTILATION
The house has a B energy label and is heated by a room-controlled central heating system with underfloor heating. The apartment also has thermally controlled ventilation.
PARKING
The apartment has 2 parking spaces in the underground garage.
LOCATION
The Jakobi 28 apartment building is located in a highly sought-after area. The city centre, with its fast-paced pace of life, offers a variety of opportunities to visit major shopping centres, restaurants, theatres and cinemas.
Stockmann, Viru Centre, Ülemiste Centre, T1 Centre and all major grocery stores are in the immediate vicinity. The location of the apartment building offers its residents as many options as possible to organise their time and daily activities.
In addition, the surrounding area offers plenty of sporting opportunities for professional athletes and amateurs alike, with top-level sports clubs nearby: MyFitness, HC Gym and Gym Ülemiste.
The Tallinn Bus Station with several connections is located just 200 m from the front door.
In case of interest, please contact us to arrange a suitable time to visit the apartment.














































