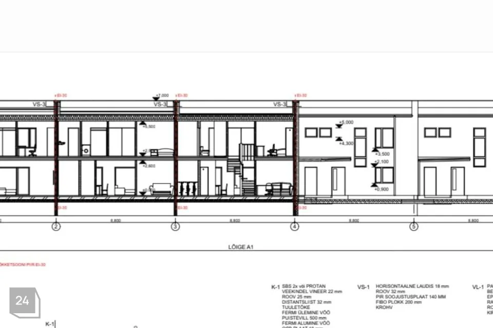
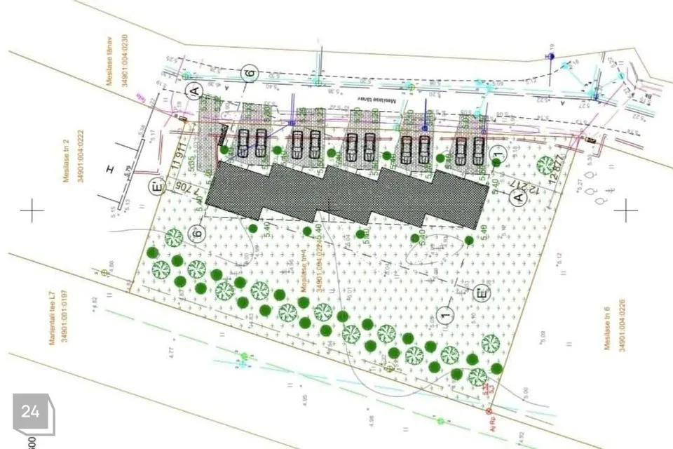
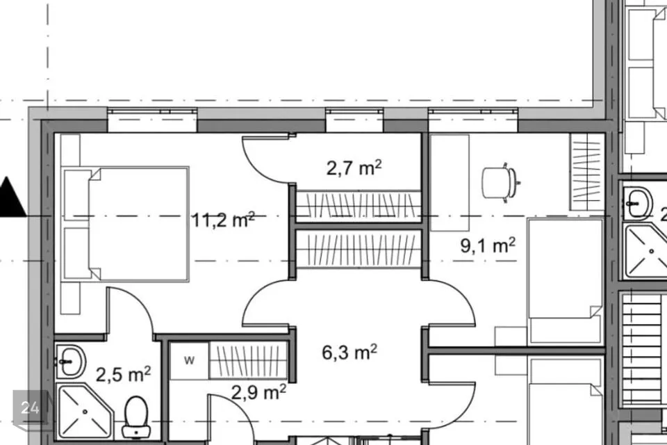
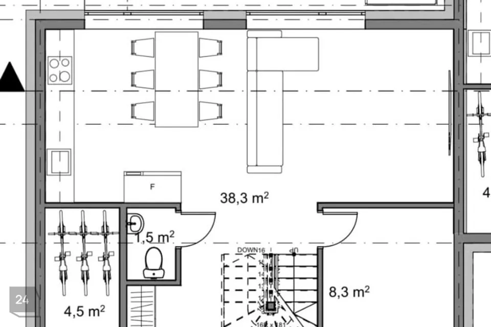
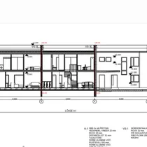
Mesilase 4 ehitus algab juunis 2025. Valmimistähtaeg 2026 aasta teine pool. Ehitatakse ridamaja, milles asub 5 kaasaegset ridaelamuboksi. Boksid on planeeritud nii, et oleks ruumi elada ja tunda ennast hästi. Esimesel korrusel on avar ca 30m2 elutuba-köök, kust pääseb terrassile. Lisaks veel üks tuba, mida saab kasutada kontorina, külalistetoana või magamistoana. Teisel korrusel asub kolm magamistuba ja saunaga suurem vannituba. Mõlemal korrusel on wc, olemas on ka õuest omaette sissepääsuga panipaik. Värske õhu tagab kaasaegne ventilatsioonisüsteem.















