Tere tulemast Kastani Kolmnurka, silmapaistvasse 5-korruselisse ärihoonesse, mis kerkib Tartu kesklinna piirile. Hoone on tõeline pilgupüüdja ja läbimõeldud igas detailis - funktsionaalsus, mugavus ning kaasaegsus on ühendatud kolmnurkse disaini ja tumeda klaasfassaadiga. Hoone ette on planeeritud silmapaistev esiväljak, kus on võimalik kolleegidega aega veeta või vabas õhus koosolekuid pidada.
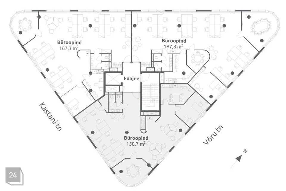
Kastani Kolmnurgas saab kokku olema ca. 2 200 m2 üüritavat pinda, millest ligi 1 450 m2 moodustavad büroopinnad. Büroopinnad asuvad kolmandast kuni viienda korruseni ja võimaldavad luua erinevaid praktilisi ruume, mis vastavad just teie ettevõtte vajadustele. Hoone kolmnurkne disain võimaldab teil luua ruumikaid koosolekuruume või privaatsemaid kabinette, mis tagavad ergonoomilise ja produktiivse töökeskkonna.
3. korruse 150,7 m2 suurune büroopind mahutab kokku orienteeruvalt 16 töökohta. Pakume varajastel üürihuvilistel võimalust kaasa rääkida ruumide planeeringutes. Üürnikule anname üle valmis kontori ning üürihind sisaldab standardset planeeringut ja siseviimistluslahendust. Üürihinnale lisanduvad kõrvalkulud ja käibemaks.
Lisaväärtust loovad hoone teisel korrusel paiknevad luksuslikud külaliskorterid, mida saab üürida nii lühiajaliselt kui ka pikemaks ajaks.
Kastani Kolmnurk asub Tartu linnas olulise ja silmapaistva koha peal Võru ja Kastani tn ristmikul, kuhu jõudmine on nauditavalt mugav ja lihtne nii ühistranspordi, jalgratta kui elektriliikuriga. Kui te siiski eelistate autoga liiklemist, siis külalised saavad parkida maapealses kaetud parklas ja töötajad maa-aluses köetud parklas.
Kesklinn on ainult 15 min jalutuskäigu kaugusel. Paari minutilise jalutuskäigu kaugusel asub nii ühistranspordi peatus kui ka Tartu rattaringluse punkt. Üürikese jalutuskäigu kaugusele on mitmed toidupoed ja söögikohad, sealhulgas Aparaaditehas. Kastani Kolmnurga krundile on planeeritud ka Bolti tõukerataste laadimisjaam.
Kastani Kolmnurk on ideaalne koht neile, kes hindavad mugavust ja kaasaegsust ning soovivad pakkuda oma töötajatele unikaalset töökogemust, mis tagab maksimaalse produktiivsuse.
Võta minuga ühendust ja leiame teie ettevõttele parima lahenduse!
www.kastanikolmnurk.ee
Kastani Kolmnurgas saab kokku olema ca. 2 200 m2 üüritavat pinda, millest ligi 1 450 m2 moodustavad büroopinnad. Büroopinnad asuvad kolmandast kuni viienda korruseni ja võimaldavad luua erinevaid praktilisi ruume, mis vastavad just teie ettevõtte vajadustele. Hoone kolmnurkne disain võimaldab teil luua ruumikaid koosolekuruume või privaatsemaid kabinette, mis tagavad ergonoomilise ja produktiivse töökeskkonna.
3. korruse 150,7 m2 suurune büroopind mahutab kokku orienteeruvalt 16 töökohta. Pakume varajastel üürihuvilistel võimalust kaasa rääkida ruumide planeeringutes. Üürnikule anname üle valmis kontori ning üürihind sisaldab standardset planeeringut ja siseviimistluslahendust. Üürihinnale lisanduvad kõrvalkulud ja käibemaks.
Lisaväärtust loovad hoone teisel korrusel paiknevad luksuslikud külaliskorterid, mida saab üürida nii lühiajaliselt kui ka pikemaks ajaks.
Kastani Kolmnurk asub Tartu linnas olulise ja silmapaistva koha peal Võru ja Kastani tn ristmikul, kuhu jõudmine on nauditavalt mugav ja lihtne nii ühistranspordi, jalgratta kui elektriliikuriga. Kui te siiski eelistate autoga liiklemist, siis külalised saavad parkida maapealses kaetud parklas ja töötajad maa-aluses köetud parklas.
Kesklinn on ainult 15 min jalutuskäigu kaugusel. Paari minutilise jalutuskäigu kaugusel asub nii ühistranspordi peatus kui ka Tartu rattaringluse punkt. Üürikese jalutuskäigu kaugusele on mitmed toidupoed ja söögikohad, sealhulgas Aparaaditehas. Kastani Kolmnurga krundile on planeeritud ka Bolti tõukerataste laadimisjaam.
Kastani Kolmnurk on ideaalne koht neile, kes hindavad mugavust ja kaasaegsust ning soovivad pakkuda oma töötajatele unikaalset töökogemust, mis tagab maksimaalse produktiivsuse.
Võta minuga ühendust ja leiame teie ettevõttele parima lahenduse!
www.kastanikolmnurk.ee















