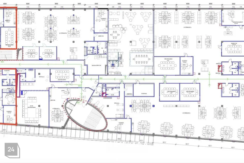
Üürile anda inspireeriva merevaatega büroo mõne aasta eest rekonstrueeritud Rocca Ärimajas. Pind on kõrge lae ja kolmes küljes suurte akendega. Büroo koosseisus on avatud tööala, kaks kabinetti, kaks nõupidamisruumi, kööginurk, panipaik ja tualetid.
Hoone on esinduslik ja hea sisekliimaga. Uuendatud on kõik tehnosüsteemid - ruumides on regluleeritav sisekliima, valve, fonolukk, üürnikele ligipääs 24/7 pääsukaardiga. Lisaväärtuseks on suur hubane terrass, kuhu on kõigil üürnikel ligipääs - see hea võimalus uute kontaktide ja suurepäraste äriideede tekkimiseks.
Rocca Ärimaja asukoht on erakordne - linna ühe suurima magistraali ääres, kuid samal ajal looduskaunis kohas. Kohe maja taga on Rocca al Mare - Stroomi promenaad, mis tagab mugava ligipääsu loodussõbralike liiklusvahenditega paljudest linnaosadest ning pakub võimalust vabas õhus merd imetleda ja mõtteid koguda. Mõneminutilise jalutuskäigu kaugusel on Rocca al Mare keskus, kus suur valik restorane ja kauplusi.
Büroohoone kõrval on rohkelt parkimiskohti nii töötajaile kui ka klientidele. Hoone fassaadil on suurepärane võimalus oma ettevõtte nime ekponeerimiseks.
KAUGUSED / SÕIDUAEG
• Rocca Al Mare keskus 0,9km / 2 min
• Kristiine keskus 3,7 km / 7 min
• Telliskivi loomelinnak 4,1 km / 7 min
• Viru Keskus 5,5 km / 10 min
• Lennujaam 11,6 km / 19 min
• Tallinna Sadam 6,9 km / 14 min
• Lasnamäe Centrum 13,6 km / 24 min
• Viimsi Keskus 16,7 km / 28 min
Üürihind 12 EUR/m2. Lisanduvad kõrvalkulud ja käibemaks.
Kui otsid inspireerivat bürood, võta ühendust ja tule vaatama!
NB! Hoones saab pakkuda ka väiksemat või suuremat pinda, küsi lisainfot!
Pakkumine on vahendustasuta.
Jaga minu kontakti kõigile, kes vajavad kinnisvaranõu!
Liitu meie uudiskirjaga ja saa homset kinnisvarainfot juba täna! Vaata https://arikinnisvara.uusmaa.ee
UUS MAA ÄRIKINNISVARA - aastakümned kogemust ja klientide usaldust, läbimõeldud täisteenus ja suurim arv eksperte: vahendamine, hindamine, haldamine, nõustamine ja investeerimine.
Hoone on esinduslik ja hea sisekliimaga. Uuendatud on kõik tehnosüsteemid - ruumides on regluleeritav sisekliima, valve, fonolukk, üürnikele ligipääs 24/7 pääsukaardiga. Lisaväärtuseks on suur hubane terrass, kuhu on kõigil üürnikel ligipääs - see hea võimalus uute kontaktide ja suurepäraste äriideede tekkimiseks.
Rocca Ärimaja asukoht on erakordne - linna ühe suurima magistraali ääres, kuid samal ajal looduskaunis kohas. Kohe maja taga on Rocca al Mare - Stroomi promenaad, mis tagab mugava ligipääsu loodussõbralike liiklusvahenditega paljudest linnaosadest ning pakub võimalust vabas õhus merd imetleda ja mõtteid koguda. Mõneminutilise jalutuskäigu kaugusel on Rocca al Mare keskus, kus suur valik restorane ja kauplusi.
Büroohoone kõrval on rohkelt parkimiskohti nii töötajaile kui ka klientidele. Hoone fassaadil on suurepärane võimalus oma ettevõtte nime ekponeerimiseks.
KAUGUSED / SÕIDUAEG
• Rocca Al Mare keskus 0,9km / 2 min
• Kristiine keskus 3,7 km / 7 min
• Telliskivi loomelinnak 4,1 km / 7 min
• Viru Keskus 5,5 km / 10 min
• Lennujaam 11,6 km / 19 min
• Tallinna Sadam 6,9 km / 14 min
• Lasnamäe Centrum 13,6 km / 24 min
• Viimsi Keskus 16,7 km / 28 min
Üürihind 12 EUR/m2. Lisanduvad kõrvalkulud ja käibemaks.
Kui otsid inspireerivat bürood, võta ühendust ja tule vaatama!
NB! Hoones saab pakkuda ka väiksemat või suuremat pinda, küsi lisainfot!
Pakkumine on vahendustasuta.
Jaga minu kontakti kõigile, kes vajavad kinnisvaranõu!
Liitu meie uudiskirjaga ja saa homset kinnisvarainfot juba täna! Vaata https://arikinnisvara.uusmaa.ee
UUS MAA ÄRIKINNISVARA - aastakümned kogemust ja klientide usaldust, läbimõeldud täisteenus ja suurim arv eksperte: vahendamine, hindamine, haldamine, nõustamine ja investeerimine.























