Üürile anda teise korruse lao- või tootmispind suurusega 1420 m². Pakutav pind asub aktiivses ärikvartalis Mustamäel aadressil Laki 26.
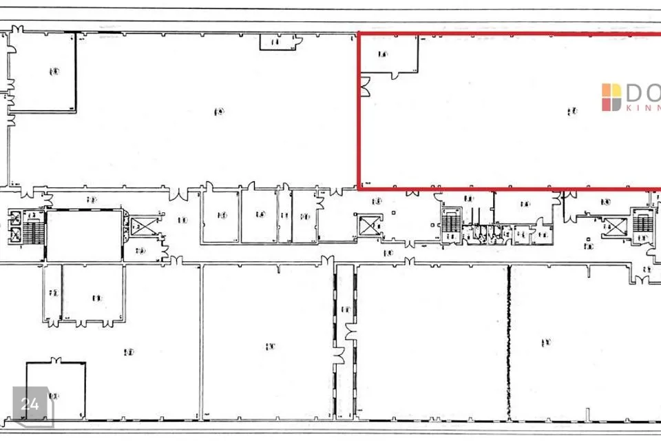
Lao/tootmisruumi kõrgus on ca 5 m. Kauba korruste vahel liigutamiseks on olemas mitu kaubalifti, millede tõstevõime on 3 tonni. Lisaks on pinnal olemas tõstuks, mille kaudu saab tõstuki abil suurema gabariidiga asju liigutada. Ruumi plaan on leitav piltide galeriist markeerituna punase joonega. Lisaks on samal korrusel võimalik juurde üürida erineva suurusega bürooruume.
Samas hoonekompleksis on pakkuda analoogne lao- või tootmispind suurusega 600 m².
Ruumides on keskküte. Soovi korral on hoone fassaadile võimalik paigaldada välireklaami. Ruumidesse on üürnikele ööpäevaringne ligipääs. Töötajatele ja klientidele on hoone ümber parkimine tasuta.
Hoone asub logistiliselt väga heas asukohas Laki tänaval, ligipääsud on olemas nii Laki tänava kui ka Kadaka tee poolt.
Üürihinnale lisanduvad kõrvalkulud ja käibemaks. Tagatisraha on kahe kuu üürisumma. Pakkumine on Teile vahendustasuta.
Huvi korral annan meeleldi lisainfot ja korraldan objekti külastuse.
Pangad pakuvad Domus Kinnisvara klientidele eluasemelaenu lepingutasu soodustusi. Küsi lisainfot Domus Kinnisvara maaklerilt või hindajalt.
Müü ja hinda meiega! Teeme kinnisvara müügi Sinu jaoks sujuvaks ja pingevabaks.
Lao/tootmisruumi kõrgus on ca 5 m. Kauba korruste vahel liigutamiseks on olemas mitu kaubalifti, millede tõstevõime on 3 tonni. Lisaks on pinnal olemas tõstuks, mille kaudu saab tõstuki abil suurema gabariidiga asju liigutada. Ruumi plaan on leitav piltide galeriist markeerituna punase joonega. Lisaks on samal korrusel võimalik juurde üürida erineva suurusega bürooruume.
Samas hoonekompleksis on pakkuda analoogne lao- või tootmispind suurusega 600 m².
Ruumides on keskküte. Soovi korral on hoone fassaadile võimalik paigaldada välireklaami. Ruumidesse on üürnikele ööpäevaringne ligipääs. Töötajatele ja klientidele on hoone ümber parkimine tasuta.
Hoone asub logistiliselt väga heas asukohas Laki tänaval, ligipääsud on olemas nii Laki tänava kui ka Kadaka tee poolt.
Üürihinnale lisanduvad kõrvalkulud ja käibemaks. Tagatisraha on kahe kuu üürisumma. Pakkumine on Teile vahendustasuta.
Huvi korral annan meeleldi lisainfot ja korraldan objekti külastuse.
Pangad pakuvad Domus Kinnisvara klientidele eluasemelaenu lepingutasu soodustusi. Küsi lisainfot Domus Kinnisvara maaklerilt või hindajalt.
Müü ja hinda meiega! Teeme kinnisvara müügi Sinu jaoks sujuvaks ja pingevabaks.























