2019. aastal valminud Maakri Kvartalis on saadaval suurepärase vaadetega büroopind.
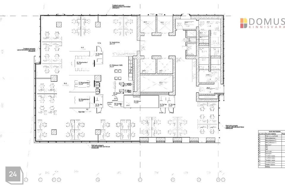
6. korrusel asuv büroos on 48 töökohaga avatud tööala, 3 nõupidamisteruumi, 4 kõneboksi, vastuvõtuala, puhkeruum/köögiala, serveriruum, panipaik ning olme- ja abiruumid.
Ruumide joonis on leitav pakkumise galeriist. Uuel üürnikul on võimalik soetada kontorimööblit.
Pinna plaan on nähtav pakkumise galeriis. Uuel üürnikul on võimalus soetada kontorimööblit.
Büroost avanevad suurepärased vaated linnale, tänu maast laeni klaasfassaadidele. 30-korruselises tornis on neli kiiret lifti, mis tagavad mugava liikumise.
Maakri Kvartal koosneb seitsmest hoonest: 30-korruseline kõrghoone, 10- ja 4-korruselised uued hooned ning neli rekonstrueeritud 20. sajandi algusest pärinevat arhitektuurimälestist.
Kvartalis on kokku ligi 36 000 m² brutopinda, sealhulgas umbes 21 500 m² üüritavat äripinda. Sellest 85% on mõeldud büroopindadeks, ülejäänud kauplusteks ja teeninduspindadeks.
Maakri Kvartalis on ka konverentsikeskus, kus saab üürida erineva suurusega ruume koosolekuteks ja üritusteks. Kvartalis on mitu söögikohta ja jalutuskäigu kaugusel veel mitmeid.
Kvartal on maa-aluse korruse kaudu ühendatud Rävala pst aluse EuroParkiga ja seeläbi ka naaberhoonetega, sealhulgas Stockmanni kaubamajaga, kus on 76 parkimiskohta. Tornimäe tänavalt sissesõiduga on lisaks 91 parkimiskohta. Ühistranspordiga on kvartalile hea ligipääs – läheduses peatuvad nii bussid kui trammid.
Pakkumised on vahendustasuta.
Huvi korral võtke ühendust ja leiame teile sobiva lahenduse!
Pangad pakuvad Domus Kinnisvara klientidele eluasemelaenu lepingutasu soodustusi. Küsi lisainfot Domus Kinnisvara maaklerilt või hindajalt.
Müü ja hinda meiega! Teeme kinnisvara müügi Sinu jaoks sujuvaks ja pingevabaks.
6. korrusel asuv büroos on 48 töökohaga avatud tööala, 3 nõupidamisteruumi, 4 kõneboksi, vastuvõtuala, puhkeruum/köögiala, serveriruum, panipaik ning olme- ja abiruumid.
Ruumide joonis on leitav pakkumise galeriist. Uuel üürnikul on võimalik soetada kontorimööblit.
Pinna plaan on nähtav pakkumise galeriis. Uuel üürnikul on võimalus soetada kontorimööblit.
Büroost avanevad suurepärased vaated linnale, tänu maast laeni klaasfassaadidele. 30-korruselises tornis on neli kiiret lifti, mis tagavad mugava liikumise.
Maakri Kvartal koosneb seitsmest hoonest: 30-korruseline kõrghoone, 10- ja 4-korruselised uued hooned ning neli rekonstrueeritud 20. sajandi algusest pärinevat arhitektuurimälestist.
Kvartalis on kokku ligi 36 000 m² brutopinda, sealhulgas umbes 21 500 m² üüritavat äripinda. Sellest 85% on mõeldud büroopindadeks, ülejäänud kauplusteks ja teeninduspindadeks.
Maakri Kvartalis on ka konverentsikeskus, kus saab üürida erineva suurusega ruume koosolekuteks ja üritusteks. Kvartalis on mitu söögikohta ja jalutuskäigu kaugusel veel mitmeid.
Kvartal on maa-aluse korruse kaudu ühendatud Rävala pst aluse EuroParkiga ja seeläbi ka naaberhoonetega, sealhulgas Stockmanni kaubamajaga, kus on 76 parkimiskohta. Tornimäe tänavalt sissesõiduga on lisaks 91 parkimiskohta. Ühistranspordiga on kvartalile hea ligipääs – läheduses peatuvad nii bussid kui trammid.
Pakkumised on vahendustasuta.
Huvi korral võtke ühendust ja leiame teile sobiva lahenduse!
Pangad pakuvad Domus Kinnisvara klientidele eluasemelaenu lepingutasu soodustusi. Küsi lisainfot Domus Kinnisvara maaklerilt või hindajalt.
Müü ja hinda meiega! Teeme kinnisvara müügi Sinu jaoks sujuvaks ja pingevabaks.















