Üürile anda 331,2 m² suurune kahetasandiline büroopind Osmussaare 8 ärimajas. See lahendus pakub rohkelt paindlikkust ja on loodud vastama kaasaegse ettevõtte nõudmistele.
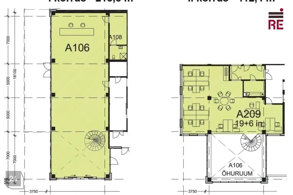
Esimesel korrusel (218,8 m²) asub kõrgete lagedega avar salong. See on ideaalne lahendus vastuvõtualaks, esitlusruumiks või avatud bürooks. Lisaks asuvad siin mugavaks töökorralduseks vajalik tualett ja duširuum. Pinnale on eraldi sissepääsud.
Teine korrus (112,4 m²) pakub avatud büroopinda, mida saate kohandada vastavalt oma meeskonna vajadustele.
Ruumid on koheselt sissekolimiseks valmis.
Ärihoone pakub kõiki tänapäevaseid mugavusi, mis tagavad sujuva töökorralduse:
Tipptasemel tehnoloogia: Hoones on lift, keskküte, tsentraalne jahutus- ja ventilatsioonisüsteem ning kaasaegsed side- ja kommunikatsioonisüsteemid.
Parkimine ja ligipääs: Maja ees on tasuta parkimine nii töötajatele kui ka külalistele.
Nähtavus: Ettevõtte brändi nähtavuse suurendamiseks on võimalik paigaldada reklaam hoone fassaadile.
Ligipääs: Büroole on tagatud ööpäevaringne ligipääs.
Büroopind asub Lasnamäe strateegilises asukohas, Peterburi tee ääres, mis tagab suurepärase nähtavuse ja mugava ligipääsu nii auto kui ka ühistranspordiga.
Üürihinnale lisanduvad kõrvalkulud ja käibemaks.
Pakkumine on Teile vahendustasuta.
Huvi korral annan lisainformatsiooni ja korraldan objekti külastuse.
Kõik pakkumised ei ole avalikud! Hoones on pakkuda vabasid äripindasid suuruses 10.0-339.2 m². Meil on infot kõikide hoones asuvate äripindade kohta. Võta ühendust ja leiame Teile sobiva lahenduse!
Tutvuge Osmussaare tn 8 hoone ja teiste pakkumistega: https://re.ee/kinnisvaraprojekt/aripinnad/buroopinnad-arihooned/osmussaare-8/
RE Kinnisvara AS on tegutsenud 1995. aastast, olles üks vanimaid Eesti kinnisvaraettevõtteid.
Pakume kinnisvaraga seotud täisteenust:
- äri- ja elamispindade maaklerteenus
- kinnisvara hindamine laenu tagatiseks, sh kohtutele, finantsaruandluseks jne.
- äri- ja elukondlike arendusprojektide müügikorraldus
- kinnisvaraturu ja -projektide analüüs ja konsultatsioon
- kinnisvara seadustamine
Teeme koostööd kõigi Eesti pankade ja finantsasutustega. Meie eksperthinnangud on aktsepteeritud kõigi Eestis tegutsevate krediidiasutuste poolt.
Tutvu lähemalt re.ee.
RE Kinnisvara AS – PARIM OSA KINNISVARAST
Helista 66 88 666 või saada e-mail ***@***.ee
https://facebook.com/re.kinnisvara
https://www.instagram.com/rekinnisvara/
https://ee.linkedin.com/company/re-kinnisvara
Esimesel korrusel (218,8 m²) asub kõrgete lagedega avar salong. See on ideaalne lahendus vastuvõtualaks, esitlusruumiks või avatud bürooks. Lisaks asuvad siin mugavaks töökorralduseks vajalik tualett ja duširuum. Pinnale on eraldi sissepääsud.
Teine korrus (112,4 m²) pakub avatud büroopinda, mida saate kohandada vastavalt oma meeskonna vajadustele.
Ruumid on koheselt sissekolimiseks valmis.
Ärihoone pakub kõiki tänapäevaseid mugavusi, mis tagavad sujuva töökorralduse:
Tipptasemel tehnoloogia: Hoones on lift, keskküte, tsentraalne jahutus- ja ventilatsioonisüsteem ning kaasaegsed side- ja kommunikatsioonisüsteemid.
Parkimine ja ligipääs: Maja ees on tasuta parkimine nii töötajatele kui ka külalistele.
Nähtavus: Ettevõtte brändi nähtavuse suurendamiseks on võimalik paigaldada reklaam hoone fassaadile.
Ligipääs: Büroole on tagatud ööpäevaringne ligipääs.
Büroopind asub Lasnamäe strateegilises asukohas, Peterburi tee ääres, mis tagab suurepärase nähtavuse ja mugava ligipääsu nii auto kui ka ühistranspordiga.
Üürihinnale lisanduvad kõrvalkulud ja käibemaks.
Pakkumine on Teile vahendustasuta.
Huvi korral annan lisainformatsiooni ja korraldan objekti külastuse.
Kõik pakkumised ei ole avalikud! Hoones on pakkuda vabasid äripindasid suuruses 10.0-339.2 m². Meil on infot kõikide hoones asuvate äripindade kohta. Võta ühendust ja leiame Teile sobiva lahenduse!
Tutvuge Osmussaare tn 8 hoone ja teiste pakkumistega: https://re.ee/kinnisvaraprojekt/aripinnad/buroopinnad-arihooned/osmussaare-8/
RE Kinnisvara AS on tegutsenud 1995. aastast, olles üks vanimaid Eesti kinnisvaraettevõtteid.
Pakume kinnisvaraga seotud täisteenust:
- äri- ja elamispindade maaklerteenus
- kinnisvara hindamine laenu tagatiseks, sh kohtutele, finantsaruandluseks jne.
- äri- ja elukondlike arendusprojektide müügikorraldus
- kinnisvaraturu ja -projektide analüüs ja konsultatsioon
- kinnisvara seadustamine
Teeme koostööd kõigi Eesti pankade ja finantsasutustega. Meie eksperthinnangud on aktsepteeritud kõigi Eestis tegutsevate krediidiasutuste poolt.
Tutvu lähemalt re.ee.
RE Kinnisvara AS – PARIM OSA KINNISVARAST
Helista 66 88 666 või saada e-mail ***@***.ee
https://facebook.com/re.kinnisvara
https://www.instagram.com/rekinnisvara/
https://ee.linkedin.com/company/re-kinnisvara

























