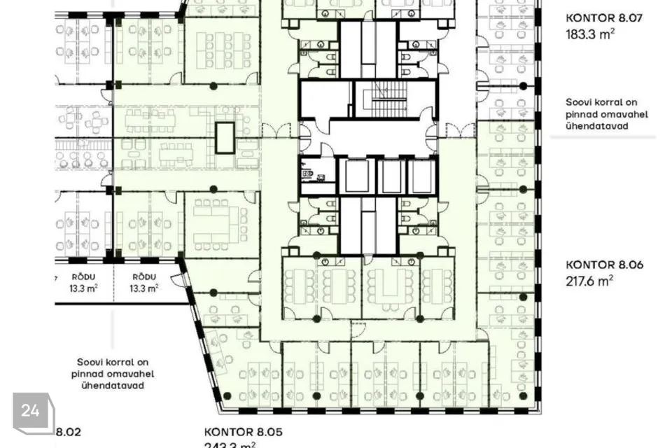
High-quality and versatile office space for rent on the 8th floor of Ülemiste City Masingu maja C-tower. The space is enhanced by a private balcony measuring 13.30 m², which offers a view of the city and creates an opportunity for relaxing moments in the fresh air. All rooms are bright, equipped with modern technical systems and designed to provide an ergonomic and inspiring working environment. The layout is flexible and allows for both open office and separate office solutions. The finishing and interior solutions of the office spaces are completed in cooperation with the tenant, taking into account specific needs and the brand's personality. This is an ideal choice for a company looking for a representative, energy-efficient and future-proof business environment in Tallinn's most developing district.
The final rental price depends on the tenant's wishes for the interior solution.
Ancillary costs and VAT are added to the rental price.
Design a working environment that grows with your ambitions.
Contact us and combine floors and office spaces according to your needs. It is still possible to make changes to the plan to create the ideal working environment for your company.
Natural elegance meets modern functionality
The interior of Masingu House is designed to inspire, support productivity and well-being. Natural and sustainable materials bring warmth and exclusivity to the rooms.
Oak veneer panels, breathable materials and carefully selected vegetation bring nature into the building.
Refined details: Brushed brass details and natural stone-inspired floors give the interior a modern and stylish accent.
Flexible solutions allow you to create an office that is as unique as your company. Design that serves a purpose and details that reflect care and inspiration.
Contact us today and we will introduce the offer in more detail!
Excellent location in Tallinn's best business district
Ülemiste City is the business district with the best accessibility in Tallinn. Masingu House is located near the airport and next to the future Rail Baltica terminal, in close proximity to important road junctions. This ensures excellent connections to both local and international destinations.
35 public transport connections - you can get to the campus by bus, train and, soon, again by tram.
Bikeep bicycle parking lots and Bolt stations allow for convenient and safe parking. Shower and changing rooms in the building make commuting to work by bike particularly convenient.
VIKTOR MASINGU MAJA
With an A-energy rating and over 20,000+ m², Masingu maja offers more than just office space – it is a unique place that encourages development. Meeting the highest environmental standards, the building combines functionality and flexibility, offering spaces according to the client's wishes from 180 m² to an entire tower.
By moving to Masingu maja, located in the heart of Ülemiste City, you open the door to exciting collaborations and innovation, powered by Ülemiste City – Estonia's third largest economic city after Tallinn and Tartu.
The final rental price depends on the tenant's wishes for the interior solution.
Ancillary costs and VAT are added to the rental price.
Design a working environment that grows with your ambitions.
Contact us and combine floors and office spaces according to your needs. It is still possible to make changes to the plan to create the ideal working environment for your company.
Natural elegance meets modern functionality
The interior of Masingu House is designed to inspire, support productivity and well-being. Natural and sustainable materials bring warmth and exclusivity to the rooms.
Oak veneer panels, breathable materials and carefully selected vegetation bring nature into the building.
Refined details: Brushed brass details and natural stone-inspired floors give the interior a modern and stylish accent.
Flexible solutions allow you to create an office that is as unique as your company. Design that serves a purpose and details that reflect care and inspiration.
Contact us today and we will introduce the offer in more detail!
Excellent location in Tallinn's best business district
Ülemiste City is the business district with the best accessibility in Tallinn. Masingu House is located near the airport and next to the future Rail Baltica terminal, in close proximity to important road junctions. This ensures excellent connections to both local and international destinations.
35 public transport connections - you can get to the campus by bus, train and, soon, again by tram.
Bikeep bicycle parking lots and Bolt stations allow for convenient and safe parking. Shower and changing rooms in the building make commuting to work by bike particularly convenient.
VIKTOR MASINGU MAJA
With an A-energy rating and over 20,000+ m², Masingu maja offers more than just office space – it is a unique place that encourages development. Meeting the highest environmental standards, the building combines functionality and flexibility, offering spaces according to the client's wishes from 180 m² to an entire tower.
By moving to Masingu maja, located in the heart of Ülemiste City, you open the door to exciting collaborations and innovation, powered by Ülemiste City – Estonia's third largest economic city after Tallinn and Tartu.





















