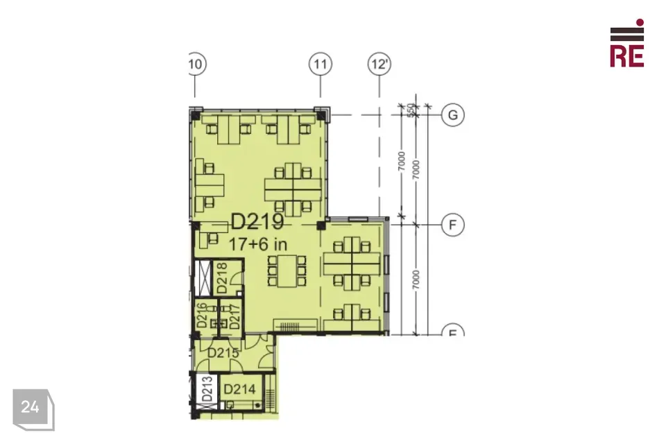
Üürile anda 147,6 m² suurune büroopind Osmussaare 8 ärihoones. Pind asub hoone teisel korrusel. Pinnal on avatud tööala, kaks eraldatud ruumi ning kööginurk ja tualett. Ruum on valmis koheseks sissekolimiseks.
Majas on lift, keskküte, tsentraalne jahutus- ja ventilatsioonisüsteem. Hoone on varustatud kaasaegsete kommunikatsiooni- ja sidesüsteemidega.
Maja ees on tasuta parkimine üürnikele ja külalistele.
Ruumidesse on ööpäevaringne ligipääs.
Maja fassaadile on võimalik paigaldada ettevõtte reklaam.
Tänu aktiivse liiklusega Peterburi teele, on tagatud hea ligipääs nii auto kui ka ühistranspordiga.
Üüri hinnale lisanduvad kõrvalkulud ja käibemaks.
Pakkumine on Teile vahendustasuta.
Huvi korral annan lisainformatsiooni ja korraldan objekti külastuse.
Kõik pakkumised ei ole avalikud! Hoones on pakkuda vabasid äripindasid suuruses 10.0-339.2 m². Meil on infot kõikide hoones asuvate äripindade kohta. Võta ühendust ja leiame Teile sobiva lahenduse!
Tutvuge Osmussaare tn 8 hoone ja teiste pakkumistega: https://re.ee/kinnisvaraprojekt/aripinnad/buroopinnad-arihooned/osmussaare-8/
RE Kinnisvara AS on tegutsenud 1995. aastast, olles üks vanimaid Eesti kinnisvaraettevõtteid.
Pakume kinnisvaraga seotud täisteenust:
- äri- ja elamispindade maaklerteenus
- kinnisvara hindamine laenu tagatiseks, sh kohtutele, finantsaruandluseks jne.
- äri- ja elukondlike arendusprojektide müügikorraldus
- kinnisvaraturu ja -projektide analüüs ja konsultatsioon
- kinnisvara seadustamine
Teeme koostööd kõigi Eesti pankade ja finantsasutustega. Meie eksperthinnangud on aktsepteeritud kõigi Eestis tegutsevate krediidiasutuste poolt.
Tutvu lähemalt re.ee.
RE Kinnisvara AS – PARIM OSA KINNISVARAST
Helista 66 88 666 või saada e-mail ***@***.ee
https://facebook.com/re.kinnisvara
https://www.instagram.com/rekinnisvara/
https://ee.linkedin.com/company/re-kinnisvara
Majas on lift, keskküte, tsentraalne jahutus- ja ventilatsioonisüsteem. Hoone on varustatud kaasaegsete kommunikatsiooni- ja sidesüsteemidega.
Maja ees on tasuta parkimine üürnikele ja külalistele.
Ruumidesse on ööpäevaringne ligipääs.
Maja fassaadile on võimalik paigaldada ettevõtte reklaam.
Tänu aktiivse liiklusega Peterburi teele, on tagatud hea ligipääs nii auto kui ka ühistranspordiga.
Üüri hinnale lisanduvad kõrvalkulud ja käibemaks.
Pakkumine on Teile vahendustasuta.
Huvi korral annan lisainformatsiooni ja korraldan objekti külastuse.
Kõik pakkumised ei ole avalikud! Hoones on pakkuda vabasid äripindasid suuruses 10.0-339.2 m². Meil on infot kõikide hoones asuvate äripindade kohta. Võta ühendust ja leiame Teile sobiva lahenduse!
Tutvuge Osmussaare tn 8 hoone ja teiste pakkumistega: https://re.ee/kinnisvaraprojekt/aripinnad/buroopinnad-arihooned/osmussaare-8/
RE Kinnisvara AS on tegutsenud 1995. aastast, olles üks vanimaid Eesti kinnisvaraettevõtteid.
Pakume kinnisvaraga seotud täisteenust:
- äri- ja elamispindade maaklerteenus
- kinnisvara hindamine laenu tagatiseks, sh kohtutele, finantsaruandluseks jne.
- äri- ja elukondlike arendusprojektide müügikorraldus
- kinnisvaraturu ja -projektide analüüs ja konsultatsioon
- kinnisvara seadustamine
Teeme koostööd kõigi Eesti pankade ja finantsasutustega. Meie eksperthinnangud on aktsepteeritud kõigi Eestis tegutsevate krediidiasutuste poolt.
Tutvu lähemalt re.ee.
RE Kinnisvara AS – PARIM OSA KINNISVARAST
Helista 66 88 666 või saada e-mail ***@***.ee
https://facebook.com/re.kinnisvara
https://www.instagram.com/rekinnisvara/
https://ee.linkedin.com/company/re-kinnisvara


















