Üürile anda vana tootmishoone Männikul, Silikaat Tehnopargis.
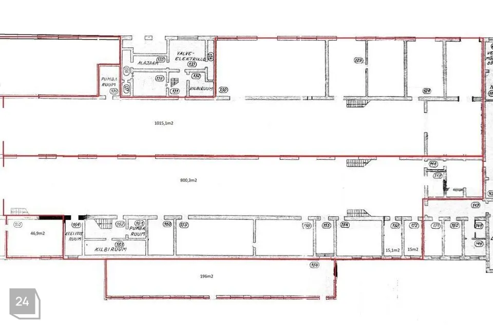
Tegemist on osaga endisest liivatootmishoonest.
Ruum paikneb hoone keskel. Juurdepääs on läbi üldkasutatava autokoridori.
630 m² pakutavast pinnast on kõrge laega lööv mõõtudega 70x9. Pealöövile lisanduvad külgedele avanevad väiksemad ruumid.
Sissepääsu väravad mõõtudega 2,4x2,7m.
Ruumid on renoveerimata. Küte puudub kuid tootmisprotsessis kasutati maagaasi ning sellele tuginedes on võimalik rajada küte.
Vanale tootmiskompleksile omaselt on pinnal palju elektrivõimsust.
Lisaks tootmispinnale on võimalik külgnevas administratiivhoones üürida bürood ja töötajate olemruume.
Hea meelega olen valmis tutvustama lähemalt Meie pakkumist ning pakutavat pinda.
Silikaat Grupp on Eesti kapitalil põhinev kontsern, mille omandis on üle 355 kinnistu üle Eesti.
Silikaat Grupi suurimad ja tuntumad kinnisvaraobjektid on Järve Keskus, kus asub Eesti ka suurim Selver (ja Aatrium Sisustuskaubamaja), Väike - Järve ärikeskus, Lepa Keskus, Silikaat Tehnopark, Järve Laod ja (nutihotell) Nothel.
Kõik vabad üüripinnad leiate lehelt arimaja.ee
Tegemist on osaga endisest liivatootmishoonest.
Ruum paikneb hoone keskel. Juurdepääs on läbi üldkasutatava autokoridori.
630 m² pakutavast pinnast on kõrge laega lööv mõõtudega 70x9. Pealöövile lisanduvad külgedele avanevad väiksemad ruumid.
Sissepääsu väravad mõõtudega 2,4x2,7m.
Ruumid on renoveerimata. Küte puudub kuid tootmisprotsessis kasutati maagaasi ning sellele tuginedes on võimalik rajada küte.
Vanale tootmiskompleksile omaselt on pinnal palju elektrivõimsust.
Lisaks tootmispinnale on võimalik külgnevas administratiivhoones üürida bürood ja töötajate olemruume.
Hea meelega olen valmis tutvustama lähemalt Meie pakkumist ning pakutavat pinda.
Silikaat Grupp on Eesti kapitalil põhinev kontsern, mille omandis on üle 355 kinnistu üle Eesti.
Silikaat Grupi suurimad ja tuntumad kinnisvaraobjektid on Järve Keskus, kus asub Eesti ka suurim Selver (ja Aatrium Sisustuskaubamaja), Väike - Järve ärikeskus, Lepa Keskus, Silikaat Tehnopark, Järve Laod ja (nutihotell) Nothel.
Kõik vabad üüripinnad leiate lehelt arimaja.ee










