Pakkuda üürile äripind Noblessneris, hoone on projekteeritud B-energiaklassi majana. Maja ehitajaks on Eesti mainekaim ehitusettevõte Merko.
Tegemist on viiest merepoolsest majast koosneva eksklusiivse kompleksi viimase valmiva hoonega, mille soodne asukoht annab suurepärase võimaluse kolida oma olemasolev äri või alustada uuega linna moodsaimas piirkonnas!
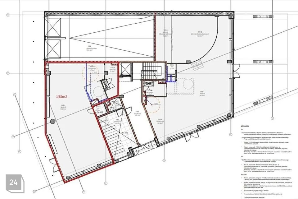
Multifunktsionaalne esimese korruse äripind sobib nii bürooks, esindus- või teeninduspinnaks, kui ka toitlustuseks (valmidus olemas ja elektrivõimsus piisav!). Toitlustuspinnana mahutab ca 45-55 istekohta (lisanduvad välikohad) sõltuvalt köögi suurusest ning kontseptsioonist! Pind on eraldi sissepääsuga.
Pinda iseloomustavad suured maast laeni vitriinaknad, mis tagavad suurepärase nähtavuse, kõrged laed (põrandast laeni 3,80 meetrit) ning kõik iseenesest mõistetavad tänapäevased tehnilised lahendused. Suurepärane juurdepääsetavus klientide jaoks – parkimine otse ukse ees! Reklaami paigaldamise võimalus maja fassaadile.
Pinnaga kaasneb 60 m2 päikesepoolse terrassi väljaehitamise võimalus! Terrass on osaliselt kaetud valgustatud laekonsooliga. Kogu pind koos terrassiga jääb väga nähtavasse kohta nii Kalaranna tänavalt, kui ka linnakus sees.
Parkimine on lahendatud kas soojas maa-aluses garaažis, tänaval asuvate parkimiskohtadega (kohe ukse ees) või kõrvalkinnistul asuvas avaras parklas.
Mõistlike kulusid tagab ka Utilitase kaugküte.
Soovi korral on võimalik üürida terve esimene korrus (139 + 192 m2) ning kontoriks kohandatavat merevaate ja saunaga korterit samas majas (110 m2), kokku 441 m2! Täiendavalt on saadaval väiksem 33 m2 1-toaline majutuseks või kontoriks sobilik äripind samas arenduses.
Peale Noblessneri sadamalinnaku enda hinnatud arhitektuuri, jahisadamat, merelähedust ning kiiret arengut asuvad läheduses populaarne merepromenaad Kultuurikilomeetriga, Kalamaja asum, Lennusadama meremuuseum, PROTO Avastustehas, Patarei Merekindluse kompleks ning naabrusease 2025. aastal kerkiv Keskkonnamaja Loodusmuuseumiga
Oodatud on tugeva taustaga pikaajalised üürnikud. Küsi julgesti täpsemat infot koos plaanidega ning anna oma mõtetest teada!
Võimalik ka lühiajaline üür.
Hinnale lisandub käibemaks ning kommunaalkulud.
Tegemist on viiest merepoolsest majast koosneva eksklusiivse kompleksi viimase valmiva hoonega, mille soodne asukoht annab suurepärase võimaluse kolida oma olemasolev äri või alustada uuega linna moodsaimas piirkonnas!
Multifunktsionaalne esimese korruse äripind sobib nii bürooks, esindus- või teeninduspinnaks, kui ka toitlustuseks (valmidus olemas ja elektrivõimsus piisav!). Toitlustuspinnana mahutab ca 45-55 istekohta (lisanduvad välikohad) sõltuvalt köögi suurusest ning kontseptsioonist! Pind on eraldi sissepääsuga.
Pinda iseloomustavad suured maast laeni vitriinaknad, mis tagavad suurepärase nähtavuse, kõrged laed (põrandast laeni 3,80 meetrit) ning kõik iseenesest mõistetavad tänapäevased tehnilised lahendused. Suurepärane juurdepääsetavus klientide jaoks – parkimine otse ukse ees! Reklaami paigaldamise võimalus maja fassaadile.
Pinnaga kaasneb 60 m2 päikesepoolse terrassi väljaehitamise võimalus! Terrass on osaliselt kaetud valgustatud laekonsooliga. Kogu pind koos terrassiga jääb väga nähtavasse kohta nii Kalaranna tänavalt, kui ka linnakus sees.
Parkimine on lahendatud kas soojas maa-aluses garaažis, tänaval asuvate parkimiskohtadega (kohe ukse ees) või kõrvalkinnistul asuvas avaras parklas.
Mõistlike kulusid tagab ka Utilitase kaugküte.
Soovi korral on võimalik üürida terve esimene korrus (139 + 192 m2) ning kontoriks kohandatavat merevaate ja saunaga korterit samas majas (110 m2), kokku 441 m2! Täiendavalt on saadaval väiksem 33 m2 1-toaline majutuseks või kontoriks sobilik äripind samas arenduses.
Peale Noblessneri sadamalinnaku enda hinnatud arhitektuuri, jahisadamat, merelähedust ning kiiret arengut asuvad läheduses populaarne merepromenaad Kultuurikilomeetriga, Kalamaja asum, Lennusadama meremuuseum, PROTO Avastustehas, Patarei Merekindluse kompleks ning naabrusease 2025. aastal kerkiv Keskkonnamaja Loodusmuuseumiga
Oodatud on tugeva taustaga pikaajalised üürnikud. Küsi julgesti täpsemat infot koos plaanidega ning anna oma mõtetest teada!
Võimalik ka lühiajaline üür.
Hinnale lisandub käibemaks ning kommunaalkulud.



































