For rent in a stockoffice-type commercial building completed in 2012, a space of 589 m² is available, where an office/sample hall and a warehouse/production are combined.
The commercial space is located in the Peetri hamlet in the immediate vicinity of Tartu Highway, at the beginning of Läike tee at Läike tee 1.
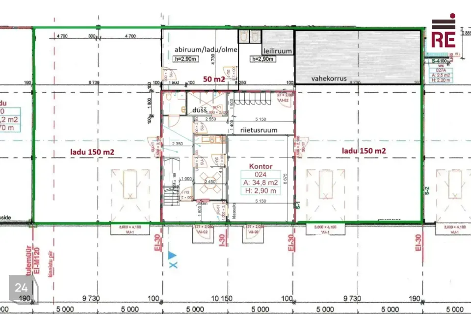
The space is divided as follows:
1st floor - warehouse/production rooms 2 x 150 m², office 35 m², meeting room 13 m², lounge with kitchenette 25 m², dressing room, shower room (3 showers), sauna with electric heater and two toilets. In the drawing, the 150 m² warehouse on the right has a built-in mezzanine of approx. 50 m², which can be left in free of charge if necessary.
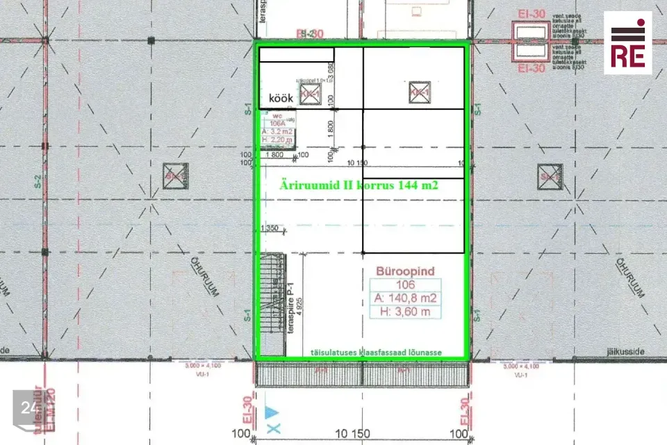
2nd floor - office of 144 m², with an open area, office, meeting room, kitchenette, storage room and toilet. Floor plans can be found in the image gallery.
Loading is via two lift doors with a ground-level passage door. The lift door dimensions are 3 m (width) x 4.1 m (height). The height of the production or warehouse space is 6.7 m.
Heating and cooling are solved using air heat pumps, the office and utility rooms have forced ventilation.
The building has good access for commercial vehicles, quick connection to the city center.
There is free parking for employees and customers at the building. The premises are accessible 24/7.
Outdoor advertising can be installed on the facade of the building.
There are several restaurants and Peetri Selver nearby.
The premises will be available in March 2025.
The rental price includes additional costs and VAT. The offer is free of commission. If you are interested, I will be happy to provide additional information and arrange a visit to the property.
You are welcome to view the premises.
RE Kinnisvara AS has been operating since 1995, being one of the oldest real estate companies in Estonia.
We offer a full range of real estate services:
- brokerage services for commercial and residential properties
- real estate valuation as collateral for loans, including for courts, financial reporting, etc.
- sales management of commercial and residential development projects
- analysis and consultation of the real estate market and projects
- real estate legalization
We cooperate with all Estonian banks and financial institutions. Our expert assessments are accepted by all credit institutions operating in Estonia.
Learn more at re.ee.
RE Kinnisvara AS – THE BEST PART OF REAL ESTATE
Call 66 88 666 or send an e-mail to ***@***.ee
https://facebook.com/re.kinnisvara
https://www.instagram.com/rekinnisvara/
https://ee.linkedin.com/company/re-kinnisvara
The commercial space is located in the Peetri hamlet in the immediate vicinity of Tartu Highway, at the beginning of Läike tee at Läike tee 1.
The space is divided as follows:
1st floor - warehouse/production rooms 2 x 150 m², office 35 m², meeting room 13 m², lounge with kitchenette 25 m², dressing room, shower room (3 showers), sauna with electric heater and two toilets. In the drawing, the 150 m² warehouse on the right has a built-in mezzanine of approx. 50 m², which can be left in free of charge if necessary.
2nd floor - office of 144 m², with an open area, office, meeting room, kitchenette, storage room and toilet. Floor plans can be found in the image gallery.
Loading is via two lift doors with a ground-level passage door. The lift door dimensions are 3 m (width) x 4.1 m (height). The height of the production or warehouse space is 6.7 m.
Heating and cooling are solved using air heat pumps, the office and utility rooms have forced ventilation.
The building has good access for commercial vehicles, quick connection to the city center.
There is free parking for employees and customers at the building. The premises are accessible 24/7.
Outdoor advertising can be installed on the facade of the building.
There are several restaurants and Peetri Selver nearby.
The premises will be available in March 2025.
The rental price includes additional costs and VAT. The offer is free of commission. If you are interested, I will be happy to provide additional information and arrange a visit to the property.
You are welcome to view the premises.
RE Kinnisvara AS has been operating since 1995, being one of the oldest real estate companies in Estonia.
We offer a full range of real estate services:
- brokerage services for commercial and residential properties
- real estate valuation as collateral for loans, including for courts, financial reporting, etc.
- sales management of commercial and residential development projects
- analysis and consultation of the real estate market and projects
- real estate legalization
We cooperate with all Estonian banks and financial institutions. Our expert assessments are accepted by all credit institutions operating in Estonia.
Learn more at re.ee.
RE Kinnisvara AS – THE BEST PART OF REAL ESTATE
Call 66 88 666 or send an e-mail to ***@***.ee
https://facebook.com/re.kinnisvara
https://www.instagram.com/rekinnisvara/
https://ee.linkedin.com/company/re-kinnisvara































