Commercial space for sale in the center of Viljandi/Old Town with a great location
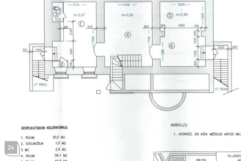
Tallinna 2A, building 1st floor and 0th floor.
The usable space on the 1st floor has an area of 127.6 m2.
The main door opens to the sales hall/reception area with an area of 43 m2, the room is spacious and bright.
3 offices are privately separated.
Toilet/shower room separately.
Storage areas + utility room.
Parking spaces in the yard, possible to design a terrace in front of the building.
Access to the 0th floor from three different doors.
High ceilings, stone walls/foundation.
The building is located on the main street of Viljandi, a busy street.
The courtyard offers privacy and convenient parking.























