Take advantage of an excellent opportunity to BUY a personal commercial space in the Radar 7 Business House, to be completed in March 2026! - www.radari7.ee
Construction of the Radari tee 7 building will start in July-August 2025 and the building will be completed in March 2026.
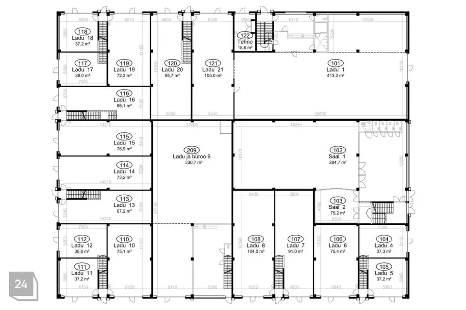
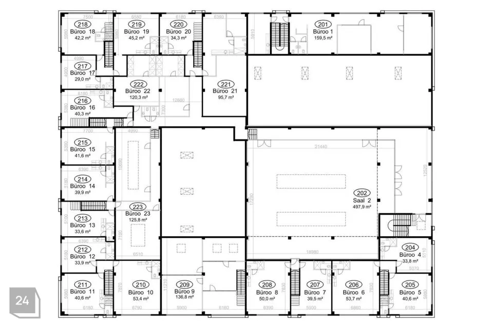
Commercial space for sale consists of: Warehouse No. 9 (1st floor, room No. 109a) 263 m², ceiling height 3.4 - 6.4m Office No. 9 (1st floor room No. 109b and 2nd floor rooms No. 209 a,b,c,d,e) total 205.0m², ceiling height 2.7m price
Location Radar 7 Business House is located in an excellent location – in Mõigu Technology Park – on a logistical artery, at the border of Tartu Highway and Tallinn city.
Tallinn Airport: 5 min Tallinn Ring Road: 7 min Tallinn City Center: 10 min
Building The building is made of r/b construction: rb/ posts-beams-intermediate floor panels. The exterior facade material is 160 mm SW panel, the building has hybrid heating (gas + air-water heat pumps), all rooms are equipped with heat recovery ventilation, which ensures low operating costs. During the design of the building, all important construction criteria and requirements have been considered, which ensure a correct construction process and the completion of a high-quality building with well-thought-out solutions.
The building complex includes: 21 warehouse boxes ranging from 30m² … 300m² 18 office spaces ranging from 30m²… 160m² 3 multi-functional rooms (halls) for various activities The total building area is approx. 4330m².
Our building is characterized by: Logistical convenience both inside and on the property. The room layout is functional, the property has sufficient maneuvering space for vehicles of all sizes and the necessary number of parking spaces.
Optimally sized warehouse and office spaces and well-thought-out spatial solutions allow for maximum capacity of goods, workplaces, or equipment.
Modern technological solutions and high-quality materials/equipment ensure the reliability of the building's technical systems and low operating costs.
Building Technical Information
ACCESS to the building is provided 24/7. The door locking system operates with electronic touch keys. Doors can also be opened remotely through a phone system.
All warehouse and office rooms are equipped with ALARM SYSTEMS. Each box has an internal camera and additionally, there are SURVEILLANCE CAMERAS in the building's parking lot and perimeter.
The building has HYBRID HEATING (gas boiler and air-water heat pumps). Warehouse box heating is solved with adjustable hot water unit heaters, offices with radiators. The building is equipped with SOLAR PANELS and the estimated energy class is A
HEAT RECOVERY VENTILATION in all rooms.
Each commercial space has its own electrical panel and meter. All warehouse boxes have a 16A main protection
Warehouse room heights are 3.4m, 4.4m and 6.4m Office room height is 2.7m
LOADING DOORS are motor-driven, with windows, remotely openable.
Each box has a wifi router, and a FIBER OPTIC CABLE will be brought into the building.
The property has 99 car parking spaces, as well as a bicycle parking area. Parking is on free spots.
Additional Information Offices have built-in toilet/shower and kitchen preparation is available.
VAT will be added to the price mentioned in the advertisement.
We will gladly answer any questions by email or phone!
Construction of the Radari tee 7 building will start in July-August 2025 and the building will be completed in March 2026.
Commercial space for sale consists of: Warehouse No. 9 (1st floor, room No. 109a) 263 m², ceiling height 3.4 - 6.4m Office No. 9 (1st floor room No. 109b and 2nd floor rooms No. 209 a,b,c,d,e) total 205.0m², ceiling height 2.7m price
Location Radar 7 Business House is located in an excellent location – in Mõigu Technology Park – on a logistical artery, at the border of Tartu Highway and Tallinn city.
Tallinn Airport: 5 min Tallinn Ring Road: 7 min Tallinn City Center: 10 min
Building The building is made of r/b construction: rb/ posts-beams-intermediate floor panels. The exterior facade material is 160 mm SW panel, the building has hybrid heating (gas + air-water heat pumps), all rooms are equipped with heat recovery ventilation, which ensures low operating costs. During the design of the building, all important construction criteria and requirements have been considered, which ensure a correct construction process and the completion of a high-quality building with well-thought-out solutions.
The building complex includes: 21 warehouse boxes ranging from 30m² … 300m² 18 office spaces ranging from 30m²… 160m² 3 multi-functional rooms (halls) for various activities The total building area is approx. 4330m².
Our building is characterized by: Logistical convenience both inside and on the property. The room layout is functional, the property has sufficient maneuvering space for vehicles of all sizes and the necessary number of parking spaces.
Optimally sized warehouse and office spaces and well-thought-out spatial solutions allow for maximum capacity of goods, workplaces, or equipment.
Modern technological solutions and high-quality materials/equipment ensure the reliability of the building's technical systems and low operating costs.
Building Technical Information
ACCESS to the building is provided 24/7. The door locking system operates with electronic touch keys. Doors can also be opened remotely through a phone system.
All warehouse and office rooms are equipped with ALARM SYSTEMS. Each box has an internal camera and additionally, there are SURVEILLANCE CAMERAS in the building's parking lot and perimeter.
The building has HYBRID HEATING (gas boiler and air-water heat pumps). Warehouse box heating is solved with adjustable hot water unit heaters, offices with radiators. The building is equipped with SOLAR PANELS and the estimated energy class is A
HEAT RECOVERY VENTILATION in all rooms.
Each commercial space has its own electrical panel and meter. All warehouse boxes have a 16A main protection
Warehouse room heights are 3.4m, 4.4m and 6.4m Office room height is 2.7m
LOADING DOORS are motor-driven, with windows, remotely openable.
Each box has a wifi router, and a FIBER OPTIC CABLE will be brought into the building.
The property has 99 car parking spaces, as well as a bicycle parking area. Parking is on free spots.
Additional Information Offices have built-in toilet/shower and kitchen preparation is available.
VAT will be added to the price mentioned in the advertisement.
We will gladly answer any questions by email or phone!
















