2005. aastal rekonstrueeritud 2-korruseline tootmishoone Linda keskuse kõrval.
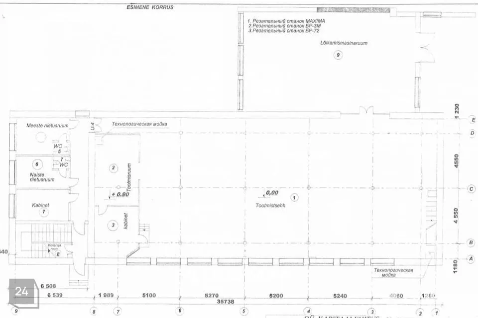
1.korrusel - saal 377 m², 120 m² garaažiustega (2,5x3 m) ruum ja kabinetid (22,8 m², 18,2 m²) ning wc-d riietusruumidega;
2.korrus - 2 saali kokku 370 m² m², kabinetid, wc ja duši- ja riietusruumid.
Küttesüsteem - Õhk-õhk soojuspump, tsentraalse keskkütte valmidus, elektriküte;
Elektrivarustus - 3x100 A, 220/380 V;
Veevarustus - tsentraalsest veetrassist;
Kanalisatsioon - tsentraalne
Hoone on igati sobilik nii tootmiseks (näiteks õmblustsehh) kui ka spordisaaliks või kauplus-laoks; ümberehitamisel sobilik ka majutuse pakkumiseks
Hea mugav ligipääs nii linnast kui Tallinn-Narva mnt-lt.
Busside lõpp-peatus (sõidusuundadega Ahtme, Jõhvi, Kohtla-Järve) asub hoone vahetus läheduses. Linda keskuses asuvad Omniva (jaotuspunkt), Onninen, Esvika jt
Müügihinnale lisandub käibemaks.
Jaga minu kontakti kõigile, kes vajavad kinnisvaranõu!
UUS MAA ÄRIKINNISVARA - aastakümned kogemust ja klientide usaldust, läbimõeldud täisteenus ja suurim arv eksperte: vahendamine, hindamine, haldamine, nõustamine ja investeerimine.
JAGA MINU KONTAKTI KÕIGILE, KES VAJAVAD KINNISVARANÕU!
- - - - - - - - - -
Telli hindamine UUS MAA Kinnisvarabüroolt https://uusmaa.ee/teenused/hindamine/
UUS MAA KINNISVARABÜROO EKSPERTHINNANGUID AKTSEPTEERIVAD KÕIK FINANTSASUTUSED.
- - - - - - - - - -
Liitu Uus Maa uudiskirjaga ja saa homset kinnisvarainfot juba täna!
https://www.uusmaa.ee/uudiskirjagaliitumine/
- - - - - - - - - -
Kodu aitab osta Swedbank.
Pakkumise saamiseks kasuta koodi UUSMAA ja Sind teenindatakse eelisjärjekorras.
Võtame ühendust 1 tööpäeva jooksul.
Uus Maa kliendile soodsam lepingutasu. Küsi täpsemat infot maaklerilt.
Finantsteenuseid pakub Swedbank AS. Tutvu tingimustega, pea nõu.
1.korrusel - saal 377 m², 120 m² garaažiustega (2,5x3 m) ruum ja kabinetid (22,8 m², 18,2 m²) ning wc-d riietusruumidega;
2.korrus - 2 saali kokku 370 m² m², kabinetid, wc ja duši- ja riietusruumid.
Küttesüsteem - Õhk-õhk soojuspump, tsentraalse keskkütte valmidus, elektriküte;
Elektrivarustus - 3x100 A, 220/380 V;
Veevarustus - tsentraalsest veetrassist;
Kanalisatsioon - tsentraalne
Hoone on igati sobilik nii tootmiseks (näiteks õmblustsehh) kui ka spordisaaliks või kauplus-laoks; ümberehitamisel sobilik ka majutuse pakkumiseks
Hea mugav ligipääs nii linnast kui Tallinn-Narva mnt-lt.
Busside lõpp-peatus (sõidusuundadega Ahtme, Jõhvi, Kohtla-Järve) asub hoone vahetus läheduses. Linda keskuses asuvad Omniva (jaotuspunkt), Onninen, Esvika jt
Müügihinnale lisandub käibemaks.
Jaga minu kontakti kõigile, kes vajavad kinnisvaranõu!
UUS MAA ÄRIKINNISVARA - aastakümned kogemust ja klientide usaldust, läbimõeldud täisteenus ja suurim arv eksperte: vahendamine, hindamine, haldamine, nõustamine ja investeerimine.
JAGA MINU KONTAKTI KÕIGILE, KES VAJAVAD KINNISVARANÕU!
- - - - - - - - - -
Telli hindamine UUS MAA Kinnisvarabüroolt https://uusmaa.ee/teenused/hindamine/
UUS MAA KINNISVARABÜROO EKSPERTHINNANGUID AKTSEPTEERIVAD KÕIK FINANTSASUTUSED.
- - - - - - - - - -
Liitu Uus Maa uudiskirjaga ja saa homset kinnisvarainfot juba täna!
https://www.uusmaa.ee/uudiskirjagaliitumine/
- - - - - - - - - -
Kodu aitab osta Swedbank.
Pakkumise saamiseks kasuta koodi UUSMAA ja Sind teenindatakse eelisjärjekorras.
Võtame ühendust 1 tööpäeva jooksul.
Uus Maa kliendile soodsam lepingutasu. Küsi täpsemat infot maaklerilt.
Finantsteenuseid pakub Swedbank AS. Tutvu tingimustega, pea nõu.






































