UUS TASE JA KÕRGUS OTSE KESKVÄLJAKUL!
Kohalik piirkonna maamärk, 15 minuti Tallinna kesklinnast.
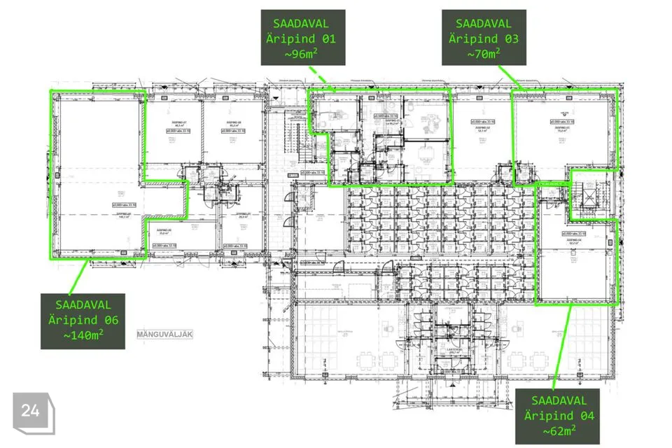
Aadressil Saha tee 8, Loo alevik kerkib piirkonna kõrgeim ja modernseim maamärk – äripindadega korterelamu, mis valmib 2026. aasta kevadel. Hoone esimesel korrusel on saadaval viimased vabad äripinnad, millele pääseb otse tänavalt. Ehituse ajal on võimalus kohandada äripinnad vastavalt Teie vajadustele ja soovidele.
Miks valida just see äripind?
• Paindlik pindala valik: suurused 51–177 m²
• Mitmekülgne kasutusvõimalus: sobib ideaalselt toitlustuseks, kaubanduseks või teeninduseks kui ka bürooks
• Ruumi planeerimise vabadus: kohendatav vastavalt vajadustele
• Tippasukoht: erakordne nähtavus ja tuntus Loo aleviku südames
• Suurepärane ligipääs: autoga, ühistranspordiga, kergliikuriga ja jalgsi
• Kaasaegsed tehnoloogiad: A-energiaklass ja madalad kõrvalkulud
• Valmimisaeg: kevad 2026
Loo alevik – kasvav ja atraktiivne ärikeskkond! Loo alevik on kiiresti arenev ja ettevõtlussõbralik piirkond, asudes vaid 13-minutilise autosõidu kaugusel Tallinna kesklinnast. Naabruses asub Tallinna suurim linnaosa – Lasnamäe. Aleviku mitmetuhandeline elanikest koosnev kogukond ning populaarsete külgnevate alade (Liivamäe, Lagedi) keskne asukoht tagab püsiva klientuuri. Lisaks pakub piirkond rohkelt tööstus-, logistika- ja tootmisettevõtteid, mille seas kaasaegsed kaubandus- ja teeninduspinnad seni puuduvad.
Hoonesse on juba tulemas: tervise- ja perearstikeskus, iluteenused, lastehoid
Hinnale lisandub käibemaks.
Huvi korral võta julgesti ühendust ja küsi lisa!
Vaata ka hoones paiknevaid kortereid: www.uusloo.ee
Kohalik piirkonna maamärk, 15 minuti Tallinna kesklinnast.
Aadressil Saha tee 8, Loo alevik kerkib piirkonna kõrgeim ja modernseim maamärk – äripindadega korterelamu, mis valmib 2026. aasta kevadel. Hoone esimesel korrusel on saadaval viimased vabad äripinnad, millele pääseb otse tänavalt. Ehituse ajal on võimalus kohandada äripinnad vastavalt Teie vajadustele ja soovidele.
Miks valida just see äripind?
• Paindlik pindala valik: suurused 51–177 m²
• Mitmekülgne kasutusvõimalus: sobib ideaalselt toitlustuseks, kaubanduseks või teeninduseks kui ka bürooks
• Ruumi planeerimise vabadus: kohendatav vastavalt vajadustele
• Tippasukoht: erakordne nähtavus ja tuntus Loo aleviku südames
• Suurepärane ligipääs: autoga, ühistranspordiga, kergliikuriga ja jalgsi
• Kaasaegsed tehnoloogiad: A-energiaklass ja madalad kõrvalkulud
• Valmimisaeg: kevad 2026
Loo alevik – kasvav ja atraktiivne ärikeskkond! Loo alevik on kiiresti arenev ja ettevõtlussõbralik piirkond, asudes vaid 13-minutilise autosõidu kaugusel Tallinna kesklinnast. Naabruses asub Tallinna suurim linnaosa – Lasnamäe. Aleviku mitmetuhandeline elanikest koosnev kogukond ning populaarsete külgnevate alade (Liivamäe, Lagedi) keskne asukoht tagab püsiva klientuuri. Lisaks pakub piirkond rohkelt tööstus-, logistika- ja tootmisettevõtteid, mille seas kaasaegsed kaubandus- ja teeninduspinnad seni puuduvad.
Hoonesse on juba tulemas: tervise- ja perearstikeskus, iluteenused, lastehoid
Hinnale lisandub käibemaks.
Huvi korral võta julgesti ühendust ja küsi lisa!
Vaata ka hoones paiknevaid kortereid: www.uusloo.ee














